Upplýsingar
Byggt 2025
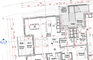
101,2 m²
3 herb.
1 baðherb.
2 svefnh.
Sérinngangur
Laus strax
Lýsing
Fasteignasalan TORG kynnir í sölu: NÝR ÁFANGI KOMINN Í SÖLU Eskiás 6. Sjá hér íbúð 101, 3ja herbergja íbúð skráð 101,2fm, með sérinngangi, fataherbergi, og verönd,. Íbúðin skilast fullbúin með parketi á gólfi! Íbúð 101 skiptist í forstofu, eldhús og stofu, 2 svefnherbergi og baðherbergi með þvottaaðstöðu. Sérgeymsla er innan íbúðarinnar og sameiginleg hjóla og vagnageymsla í sameign. Íbúðirnar afhendast fullfrágengnar án gólfefna, en votrými er flísalagt. Nánari upplýsingar veitir Ragnar Guðmundsson, fasteignasali í GSM: 844-6516, netfang ragnar@fstorg.is
Sækja söluyfirlit og skilalýsingu hér
Nánari upplýsingar: Um er að ræða nýbyggingu að Eskiás 6 í Garðabæ. Skilalýsing seljanda gildir en í henni kemur meðal annars fram: Íbúðirnar afhendast fullbúnar með vönduðum innréttingum, án gólfefna, en votrými eru flísalögð. Svalir eru út frá stofu íbúða á efri hæðum. Sérafnotasvæði er út af stofu með íbúðum á jarðhæð.
Bílastæði eru á lóð og gert er ráð fyrir nokkrum fjölda hleðslustæða. Allar íbúðir með aðgengi að inngarðinum sem býr til skjólsælan reit fyrir íbúa Eskiás. Íbúðirnar eru hannaðar til að hámarka náttúrulega birtu og nýtingu fermetra innan íbúða. Viðhaldslítil klæðning á húsum og lágmarkssameign tryggir hagkvæman rekstur íbúða. Eskiásinn er í miðju grónu hverfi með alla þjónustu í næsta nágreinni. Skólar, verslun og þjónusta eru allt í kring auk þess sem Garðabær hyggst byggja nýjan leikskóla á Lyngási fyrir neðan Eskiás.
Sjá nánari upplýsingar á Heimasíðu verkefnis: ESKIAS.IS
Innréttingar og hurðir: Innréttingar í eldhúsi verða af vandaðri gerð frá NOBILIA og fataskápar frá Trésmiðju GKS. Innihurðir verða hvítlakkaðar yfirfelldar hurðir (Jeld-Wen Moralt).
Baðherbergi/þvottahús: Baðherbergi/þvottahús eru forframleidd og hífð inn í hús samhliða uppsteypu húsanna. Söluaðili baðherbergjanna er Wilbergs/Bitter ehf. (Parki) og eru þau hönnuð af Boxen samkvæmt norskum stöðlum. Mikið er lagt upp úr vönduðum frágang og er allt efni og búnaður af þekktri og viðurkenndri gerð.
Heimilistæki: Eldhús skilast með blástursofni, spanhelluborði og innbyggðum ísskáp frá Whirlpool sem þjónustað er af Heimilistækjum. Vifta með kolasíu er í efri skápum yfir helluborði en þar sem að helluborð er staðsett á eyju eða tanga er einungis gert ráð fyrir möguleika á að bæta við viftu.
Hreinlætistæki: Öll hreinlætistæki eru að vandaðri gerð frá Grohe. Á baðherbergjum eru tækin krómlituð en í eldhúsi eru vaskur og blöndunartæki svört
Gólfefni: Íbúðum verður skilað með flotuðum gólfum án gólfefna nema á baðherbergjum/þvottahúsi þar sem að veggir og gólf eru flísalögð upp í loft.
Slökkvitæki og reykskynjari fylgja hverri íbúð. Dyrabjalla og póstkassi er við hvern sérinngang.
Frágangur utanhúss: Útveggir verða einangraðir að utan og klæddir með svartri álbáru, kopargrænum sléttum plötum (Alpolic FR 4mm) og jarðlituðum sementsplötum (Equitone). Allt klæðningarefni og undirkerfi klæðninga kemur frá Málmtækni. Svalahandrið eru úr stáli klætt lóðréttum bambus renningum. Útiljós og rafmagnstengill er á svölum.
Frágangur lóðar: Lóð verður skilað fullfrágenginni. Megin göngustígar verða ýmist hellulagðir eða steyptir og grassvæði þökulögð. Leiksvæði.
Rafbílahleðsla: Gert verður sérstaklega ráð fyrir fjölda rafhleðslustæða og möguleikum til að auka fjölda þeirra þegar þörf krefur.
Afhending íbúðanna: Gert er ráð fyrir að eignirnar verði afhentar í Jan/Feb 2025
Kaupendur greiða skipulagsgjald þ.e 0,3% af endanlegu brunabótamati þegar það verður innheimt.
Ath. innimyndir eru tölvuteiknaðar og eru til glöggvunar en sýna ekki endanlegan frágang eignarinnar, nánar um skil sjá skilalýsingu seljanda.
Nánari upplýsingar veitir Ragnar Guðmundsson, fasteignasali í GSM: 844-6516, netfang ragnar@fstorg.is
Sækja söluyfirlit og skilalýsingu hér
Nánari upplýsingar: Um er að ræða nýbyggingu að Eskiás 6 í Garðabæ. Skilalýsing seljanda gildir en í henni kemur meðal annars fram: Íbúðirnar afhendast fullbúnar með vönduðum innréttingum, án gólfefna, en votrými eru flísalögð. Svalir eru út frá stofu íbúða á efri hæðum. Sérafnotasvæði er út af stofu með íbúðum á jarðhæð.
Bílastæði eru á lóð og gert er ráð fyrir nokkrum fjölda hleðslustæða. Allar íbúðir með aðgengi að inngarðinum sem býr til skjólsælan reit fyrir íbúa Eskiás. Íbúðirnar eru hannaðar til að hámarka náttúrulega birtu og nýtingu fermetra innan íbúða. Viðhaldslítil klæðning á húsum og lágmarkssameign tryggir hagkvæman rekstur íbúða. Eskiásinn er í miðju grónu hverfi með alla þjónustu í næsta nágreinni. Skólar, verslun og þjónusta eru allt í kring auk þess sem Garðabær hyggst byggja nýjan leikskóla á Lyngási fyrir neðan Eskiás.
Sjá nánari upplýsingar á Heimasíðu verkefnis: ESKIAS.IS
Innréttingar og hurðir: Innréttingar í eldhúsi verða af vandaðri gerð frá NOBILIA og fataskápar frá Trésmiðju GKS. Innihurðir verða hvítlakkaðar yfirfelldar hurðir (Jeld-Wen Moralt).
Baðherbergi/þvottahús: Baðherbergi/þvottahús eru forframleidd og hífð inn í hús samhliða uppsteypu húsanna. Söluaðili baðherbergjanna er Wilbergs/Bitter ehf. (Parki) og eru þau hönnuð af Boxen samkvæmt norskum stöðlum. Mikið er lagt upp úr vönduðum frágang og er allt efni og búnaður af þekktri og viðurkenndri gerð.
Heimilistæki: Eldhús skilast með blástursofni, spanhelluborði og innbyggðum ísskáp frá Whirlpool sem þjónustað er af Heimilistækjum. Vifta með kolasíu er í efri skápum yfir helluborði en þar sem að helluborð er staðsett á eyju eða tanga er einungis gert ráð fyrir möguleika á að bæta við viftu.
Hreinlætistæki: Öll hreinlætistæki eru að vandaðri gerð frá Grohe. Á baðherbergjum eru tækin krómlituð en í eldhúsi eru vaskur og blöndunartæki svört
Gólfefni: Íbúðum verður skilað með flotuðum gólfum án gólfefna nema á baðherbergjum/þvottahúsi þar sem að veggir og gólf eru flísalögð upp í loft.
Slökkvitæki og reykskynjari fylgja hverri íbúð. Dyrabjalla og póstkassi er við hvern sérinngang.
Frágangur utanhúss: Útveggir verða einangraðir að utan og klæddir með svartri álbáru, kopargrænum sléttum plötum (Alpolic FR 4mm) og jarðlituðum sementsplötum (Equitone). Allt klæðningarefni og undirkerfi klæðninga kemur frá Málmtækni. Svalahandrið eru úr stáli klætt lóðréttum bambus renningum. Útiljós og rafmagnstengill er á svölum.
Frágangur lóðar: Lóð verður skilað fullfrágenginni. Megin göngustígar verða ýmist hellulagðir eða steyptir og grassvæði þökulögð. Leiksvæði.
Rafbílahleðsla: Gert verður sérstaklega ráð fyrir fjölda rafhleðslustæða og möguleikum til að auka fjölda þeirra þegar þörf krefur.
Afhending íbúðanna: Gert er ráð fyrir að eignirnar verði afhentar í Jan/Feb 2025
Kaupendur greiða skipulagsgjald þ.e 0,3% af endanlegu brunabótamati þegar það verður innheimt.
Ath. innimyndir eru tölvuteiknaðar og eru til glöggvunar en sýna ekki endanlegan frágang eignarinnar, nánar um skil sjá skilalýsingu seljanda.
Nánari upplýsingar veitir Ragnar Guðmundsson, fasteignasali í GSM: 844-6516, netfang ragnar@fstorg.is