Löggiltir fasteignasalar innan Félags fasteignasala:
Sigurður Maack Gunnarsson
Svanþór Einarsson
Theodór Emil Karlsson
Steingrímur Benediktsson
Vista
fjölbýlishús

Vefarastræti 44

270 Mosfellsbær

78.500.000 kr.

785.000 þ.kr./m2
Fasteignanúmer

F2366477

Fasteignamat

78.400.000 kr.

Brunabótamat

67.390.000 kr.

Áhvílandi

0 kr.

Arion banki – Reikna lán
Upplýsingar
Verðsaga
svg
Byggt 2018
svg
100 m²
svg
4 herb.
svg
1 baðherb.
svg
2 svefnh.
svg
Útsýni
svg
Sameiginl. inngangur
svg
Bílastæði
svg
Lyfta

Lýsing

** Hafðu samband og bókaðu tíma fyrir skoðun - Eignin getur verið laus til afhendingar við kaupsamning - Svanþór Einarsson, löggiltur fasteignasali -  svanthor@fastmos.is eða 698-8555 - Theodór Emil Karlsson, löggiltur fasteignasali - teddi@fastmos.is eða 690-8040 - Steingrímur Benediktsson, löggiltur fasteignasali - steingrimur@fastmos.is eða 862-9416 **

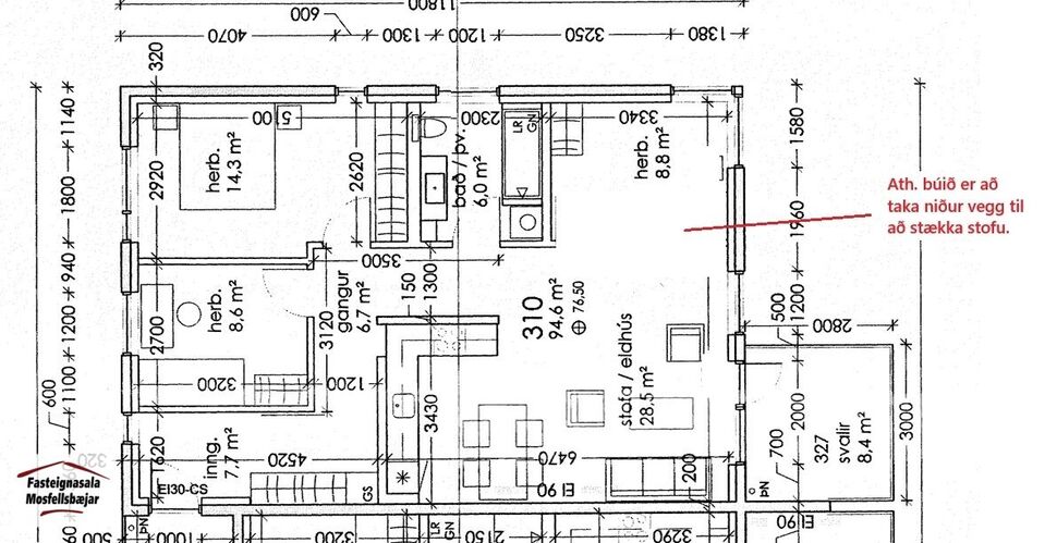
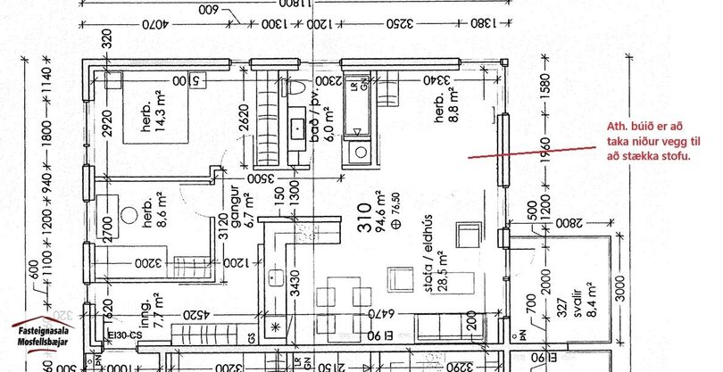
Fasteignasala Mosfellsbæjar kynnir: Falleg og vel skipulögð 100,0 m2, 3-4ra herbergja endaíbúð á efstu hæð með gluggum á þrjá vegu og glæsilegu útsýni, í lyftuhúsi ásamt stæði í bílageymslu við Vefarastræti 44 í Mosfellsbæ. Glæsilegt útsýni er frá eigninni. Birt stærð eignarinnar er 100,0 m2, þar af íbúð 94,8 m2 og geymsla 5,2 m2. Íbúðin skiptist í forstofu, gang, stofu, eldhús, baðharbergi og tvö svefnherbergi (hægt er að bæta við þriðja svefnherbergi). Bílastæði með hleðslustöð fyrir rafbíla í bílageymslu fylgir eigninni. Svalir í suðvesturátt með glæsilegu útsýni. Frábær staðsetning, rétt við Helgafellsskóla. Stutt í almenningssamgöngur og vinsæl útivistarsvæði.

Smelltu hér til að fá söluyfirlit sent strax.

Nánari lýsing:
Forstofa er rúmgóð með flísum á gólfi og fataskáp.
Gangur er með parketi á gólfi.
Stofa er í opnu björtu rými með útgengi á svalir í suðvesturátt með fallegu útsýni. Skv. teikningu er gert ráð fyrir 3ja svefnherberginu í stofunni en búið er að taka niður vegginn. Hurð og karmur er fylgir.
Eldhús er með L-laga innréttingu. Í innréttingu er ofn, helluborð og vifta. Gert er ráð fyrir uppþvottavél og ísskáp í innréttingu. Borðplata er hvít og úr harðplasti.
Svefnherbergi 1 (hjónaherbergi) er rúmgott með parketi á gólfi og góðum fataskáp.
Svefnherbergi 2 er með parketi á gólfi og fataskáp.
Baðherbergi/þvottahús með flísum á gólfi, innréttingu, upphengdu salerni, handklæðaofni og baðkari með sturtuaðstöðu. Tengi er fyrir þvottavél og þurrkara á baði.
Sérgeymsla er í kjallara 5,2 m2.
Bílastæði í bílageymslu, merkt B14, fylgir eigninni.
Vagna- og hjólageymsla er í sameign í kjallara.

Verð kr. 78.500.000,-



Um skoðunar- og aðgæsluskyldu:
Í lögum um fasteignakaup nr. 40/2002 er kveðið á um ríka skoðunarskyldu kaupenda á fasteignum. Fasteignasala Mosfellsbæjar skorar því á væntanlega kaupendur að kynna sér vel ástand fasteigna fyrir kauptilboðsgerð og leita til þar til bærra sérfræðinga um nánari skoðun ef með þarf.

Forsendur söluyfirlits:
Söluyfirlit er samið af fasteignasala í samræmi við ákvæði laga nr. 70/2015. Þær upplýsingar sem fram koma í söluyfirliti þessu eru sóttar í opinberar skrár, til seljanda sjálfs og eftir atvikum til húsfélags. Seljandi veitir upplýsingar um eign í samræmi við upplýsingaskyldu laga um fasteignakaup nr. 40/2002. Fasteignasali sannreynir að þær upplýsingar séu réttar með sjónskoðun á eigninni.
Fasteignasali getur ekki fullyrt um ástand og eiginleika þeirra hluta fasteigna sem ekki eru aðgengilegir og sjást ekki berum augum, t.d. lagnir, dren, skólp og þak.

Gjöld sem kaupandi þarf að greiða vegna kaupa:
1. Stimpilgjald af kaupsamningi sem er hlutfall af fasteignamati. Stimpilgjald er 0,8% fyrir einstaklinga (0,4% við fyrstu kaup) og 1,6% fyrir lögaðila.
2. Þinglýsingargjald af kaupsamningi, veðskuldabréfum, veðleyfum o.fl. Þinglýsingargjald er kr. 3.800,- fyrir hvert skjal.
3. Lántökugjald lánastofnunar - er skv. gjaldskrá viðkomandi lánastofnunar.
4. Umsýslugjald til fasteignasölu skv. kauptilboði.
5. Þegar um nýbyggingu er að ræða greiðir kaupandi skipulagsgjald, 0,3% af endanlegu brunabótamáti, þegar það er lagt á af viðkomandi sveitarfélagi.

img
Svanþór Einarsson
Lögg.fasteignasali innan félags fasteignasala
Fasteignasala Mosfellsbæjar
Þverholti 2, 270 Mosfellsbæ
Fasteignasala Mosfellsbæjar

Fasteignasala Mosfellsbæjar

Þverholti 2, 270 Mosfellsbæ
phone
img

Svanþór Einarsson

Þverholti 2, 270 Mosfellsbæ
Ár
Fasteignamat
Kaupverð
Stærð
Fermetraverð
17. okt. 2019
29.700.000 kr.
48.900.000 kr.
100 m²
489.000 kr.
Byggt á upplýsingum úr Þjóðskrá Íslands frá 2006-2026
Fasteignasala Mosfellsbæjar

Fasteignasala Mosfellsbæjar

Þverholti 2, 270 Mosfellsbæ
phone

Svanþór Einarsson

Þverholti 2, 270 Mosfellsbæ