Upplýsingar
0 m²
0 herb.
Lýsing
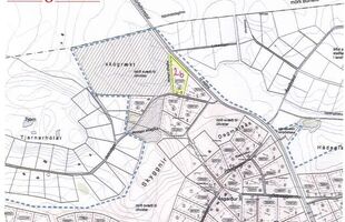
Þórsstígur 2 b. Sumarhúsalóð með fallegu útsýni.
Fasteignaland kynnir: Þórsstíg 2 b í landi Ásgarð í Grímsnes-og Grafningshreppi. Lóðin er skráð 8.579 fm og er inn á skipulögðu sumarhúsasvæði. Kominn er púði á lóðina.
Vatn og rafmagn er komið inn á svæðið. Þetta er hitaveitusvæði.
Möguleiki er að kaupa lóðina við hliðina sem er 7.669 fm.
Lokað svæði með rafmagnshliði (símahlíð).
Stutt er til þekktra staða á Suðurlandi, Skálholts, Þingvalla, Laugarvatns, Geysis, Gullfoss og Kersins. Stutt er í veiði, sundlaug, golfvöll, íþróttavöll og fallegar gönguleiðir. Selfoss er um 16 km fjarlægð og því stutt í alla þjónustu. Frá Reykjavík eru aðeins um 70 km sé ekið um Hellisheiði. Styttra um Nesjavelli og Þingvallaleið.
Upplýsingar gefa:
Heimir Eðvarðsson, löggiltur fasteignasali s. 893-1485, netfang: heimir@fasteignaland.is
Jón Smári Einarsson, löggiltur fasteignasali s. 860-6400, netfang: jonsmari@fasteignaland.is
Árni Björn Erlingsson, löggiltur fasteignasali s. 898-0508 netfang: arni@fasteignaland.is
Fasteignaland kynnir: Þórsstíg 2 b í landi Ásgarð í Grímsnes-og Grafningshreppi. Lóðin er skráð 8.579 fm og er inn á skipulögðu sumarhúsasvæði. Kominn er púði á lóðina.
Vatn og rafmagn er komið inn á svæðið. Þetta er hitaveitusvæði.
Möguleiki er að kaupa lóðina við hliðina sem er 7.669 fm.
Lokað svæði með rafmagnshliði (símahlíð).
Stutt er til þekktra staða á Suðurlandi, Skálholts, Þingvalla, Laugarvatns, Geysis, Gullfoss og Kersins. Stutt er í veiði, sundlaug, golfvöll, íþróttavöll og fallegar gönguleiðir. Selfoss er um 16 km fjarlægð og því stutt í alla þjónustu. Frá Reykjavík eru aðeins um 70 km sé ekið um Hellisheiði. Styttra um Nesjavelli og Þingvallaleið.
Upplýsingar gefa:
Heimir Eðvarðsson, löggiltur fasteignasali s. 893-1485, netfang: heimir@fasteignaland.is
Jón Smári Einarsson, löggiltur fasteignasali s. 860-6400, netfang: jonsmari@fasteignaland.is
Árni Björn Erlingsson, löggiltur fasteignasali s. 898-0508 netfang: arni@fasteignaland.is