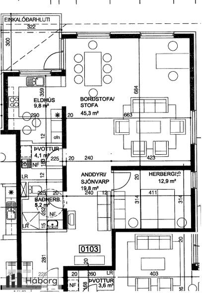
17 Júnítorg, 210 Garðabær