Upplýsingar
Verðsaga
Byggt 2022
64 m²
2 herb.
1 baðherb.
1 svefnh.
Sameiginl. inngangur
Bílastæði
Lyfta
Opið hús: 17. janúar 2026
kl. 13:00
til 13:30
Opið hús: Smyrilshlíð 14, 102 Reykjavík, Íbúð merkt: 01 01 12. Eignin verður sýnd laugardaginn 17. janúar 2026 milli kl. 13:00 og kl. 13:30.
Lýsing
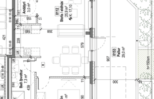
Björt og falleg 2ja herbergja íbúð á jarðhæð með bílstæði í bílageymslu og rúmgóðum suðursólpalli við Smyrilshlíð á Hlíðarenda
Við Smyrilshlíð á Hlíðarenda stendur björt og vel skipulögð tveggja herbergja íbúð á fyrstu hæð með sérstæði í lokuðum bílakjallara og stórum, afgirtum sólpalli til suðurs. Frábær staðsetning í göngufæri frá Öskjuhlíð, háskólunum og miðbæ Reykjavíkur, með alla helstu þjónustu í næsta nágrenni.
Eignin getur verið laus fljótlega eftir kaupsamning
- Stór suðursólpallur
- Bílastæði í kjallara
- Frábær staðsetning
Fyrir nánari upplýsingar:
Tinna Bryde, löggildur fasteignasali í síma 660-5532 eða tinna@palssonfasteignasala.is
Eignin er skráð samkvæmt HMS alls 64,0 fm, þar af 6,9 fm geymsla.
Nánari lýsing
Anddyri með harðparketi á gólfi og góðum yfirhafnaskáp.
Stofa er björt og rúmgóð með harðparketi á gólfi og útgengi á suðursólpall sem snýr út í sameiginlegan og snyrtilegan garð.
Eldhús er í opnu rými með stofu, með hvítum innréttingum frá GKS og vönduðum AEG eldhústækjum.
Svefnherbergi er rúmgott með fataskáp og harðparketi.
Baðherbergi er flísalagt með sturtu, ljósri innréttingu, upphengdu salerni og handklæðaofni. Þar er einnig innangengt í þvottarými með tengi fyrir þvottavél og þurrkara.
Aðstaða og sameign
Sérmerkt bílastæði í upphitaðri bílageymslu með loftræstingu
Sérgeymsla (6,9 fm) á geymslugangi í kjallara
Hjólastæði með festingum í bílakjallara
Smyrilshlíð 14 er vandað og nútímalegt 14 íbúða fjölbýli á fimm hæðum þar sem áhersla er lögð á hönnun og gæði efnisvals. Hönnun hússins er unnin af KR Arkitektum. Mjög falleg eign á vinsælum og rólegum stað í borginni.
Gjöld sem kaupandi þarf að standa straum af vegna kaupanna:
1. Stimpilgjald af kaupsamningi - 0.8% af heildarfasteignamati / 1.6% fyrir lögaðila. (0.4% við fyrstu kaup einstaklinga).
2. Þinglýsingagjald af kaupsamningi, veðskuldabréfi, veðleyfi o.fl.- kr. 2.700 af hverju skjali.
3. Lántökugjald lánastofnunar - samanber gjaldskrá viðkomandi lánastofnunar.
4. Umsýsluþóknun til fasteignasölu, sbr.kauptilboð.
Um skoðunarskyldu:
Í lögum um fasteignakaup nr. 40/2002 er kveðið á um ríka skoðunarskyldu kaupenda á fasteignum. Pálsson fasteignasala bendir væntanlegum kaupendum á að kynna sér vel ástand fasteigna við skoðun og fyrir tilboðsgerð og ef þurfa þykir að leita til sérfræðinga um nánari ástandsskoðun.
Við Smyrilshlíð á Hlíðarenda stendur björt og vel skipulögð tveggja herbergja íbúð á fyrstu hæð með sérstæði í lokuðum bílakjallara og stórum, afgirtum sólpalli til suðurs. Frábær staðsetning í göngufæri frá Öskjuhlíð, háskólunum og miðbæ Reykjavíkur, með alla helstu þjónustu í næsta nágrenni.
Eignin getur verið laus fljótlega eftir kaupsamning
- Stór suðursólpallur
- Bílastæði í kjallara
- Frábær staðsetning
Fyrir nánari upplýsingar:
Tinna Bryde, löggildur fasteignasali í síma 660-5532 eða tinna@palssonfasteignasala.is
Eignin er skráð samkvæmt HMS alls 64,0 fm, þar af 6,9 fm geymsla.
Nánari lýsing
Anddyri með harðparketi á gólfi og góðum yfirhafnaskáp.
Stofa er björt og rúmgóð með harðparketi á gólfi og útgengi á suðursólpall sem snýr út í sameiginlegan og snyrtilegan garð.
Eldhús er í opnu rými með stofu, með hvítum innréttingum frá GKS og vönduðum AEG eldhústækjum.
Svefnherbergi er rúmgott með fataskáp og harðparketi.
Baðherbergi er flísalagt með sturtu, ljósri innréttingu, upphengdu salerni og handklæðaofni. Þar er einnig innangengt í þvottarými með tengi fyrir þvottavél og þurrkara.
Aðstaða og sameign
Sérmerkt bílastæði í upphitaðri bílageymslu með loftræstingu
Sérgeymsla (6,9 fm) á geymslugangi í kjallara
Hjólastæði með festingum í bílakjallara
Smyrilshlíð 14 er vandað og nútímalegt 14 íbúða fjölbýli á fimm hæðum þar sem áhersla er lögð á hönnun og gæði efnisvals. Hönnun hússins er unnin af KR Arkitektum. Mjög falleg eign á vinsælum og rólegum stað í borginni.
Gjöld sem kaupandi þarf að standa straum af vegna kaupanna:
1. Stimpilgjald af kaupsamningi - 0.8% af heildarfasteignamati / 1.6% fyrir lögaðila. (0.4% við fyrstu kaup einstaklinga).
2. Þinglýsingagjald af kaupsamningi, veðskuldabréfi, veðleyfi o.fl.- kr. 2.700 af hverju skjali.
3. Lántökugjald lánastofnunar - samanber gjaldskrá viðkomandi lánastofnunar.
4. Umsýsluþóknun til fasteignasölu, sbr.kauptilboð.
Um skoðunarskyldu:
Í lögum um fasteignakaup nr. 40/2002 er kveðið á um ríka skoðunarskyldu kaupenda á fasteignum. Pálsson fasteignasala bendir væntanlegum kaupendum á að kynna sér vel ástand fasteigna við skoðun og fyrir tilboðsgerð og ef þurfa þykir að leita til sérfræðinga um nánari ástandsskoðun.
Ár
Fasteignamat
Kaupverð
Stærð
Fermetraverð
20. maí. 2022
21.700.000 kr.
65.900.000 kr.
64 m²
1.029.688 kr.
Byggt á upplýsingum úr Þjóðskrá Íslands frá 2006-2026