Löggiltir fasteignasalar innan Félags fasteignasala:
Hannes Steindórsson
Bogi Molby Pétursson
Guðrún Antonsdóttir
Heimir Hallgrímsson
Hrafnkell P. H. Pálmason
Viðar Marinósson
Elías Haraldsson
Kristján Þórir Hauksson
Albert Bjarni Úlfarsson
Ragnar Þorsteinsson
Þórey Ólafsdóttir
Andri Freyr Halldórsson
Upplýsingar
Byggt 2025
139,8 m²
6 herb.
2 baðherb.
5 svefnh.
Þvottahús
Sérinngangur
Hjólastólaaðgengi
Laus strax
Opið hús: 15. janúar 2026
kl. 18:00
til 18:30
Opið hús: Hrafnaborg 9 A, 190 Vogar. Eignin verður sýnd fimmtudaginn 15. janúar 2026 milli kl. 18:00 og kl. 18:30.
Lýsing
LIND Fasteignasala, Andri Freyr Halldórsson lgfs. lgfs kynna til sölu:
Nýtt, bjart, fallegt & vel skipulagt 6 herbergja endaraðhús á einni hæð með tveimur baðherbergjum við Hrafnaborg 9 A, Vogum.
Í húsinu er hiti í gólfum, sem er með wifi stýringu. Eldhús kemur með öllum tækjum þ.e.a.s. uppþvottavél, ísskáp, bakaraofni, helluborði og örbylgjuofni.
Allar nánari upplýsingar veita:
Andri Freyr Halldórsson, löggiltur fasteignasali, í síma 762-6162 eða andri@fastlind.is
Atli Karl Pálmasson, löggiltur fasteignasali, í síma 662-4252 eða atli@fastlind.is
*5 Svefnherbergi.
*Gólfsíðir gluggar í alrými.
*Hiti í gólfum.
*Aukin lofthæð.
*Eldhústæki fylgja.
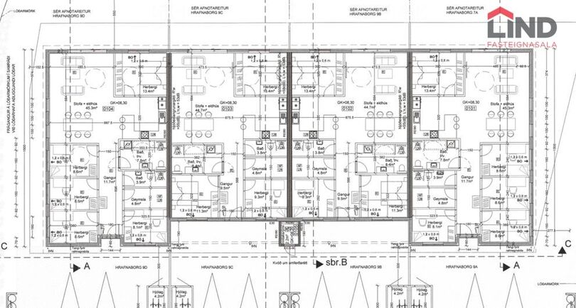
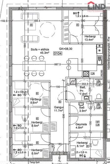
Skráð stærð eignar skv. FMR er 139,8 fm, ath. geymsluskúr að framan er ekki inn í fermetrum.
Eignin skilast fullbúin og er til afhendingar við kaupsamning.
Eignin skiptist í:
Forstofu, fimm svefnherbergi, eldhús, stofu/borðstofu, tvö baðherbergi og geymslu.
Nánari lýsing eignar:
Anddyri: með fataskáp.
Stofa & borðstofa: eru samliggjandi. Rýmið er með aukinni lofthæð, bjart og rúmgott og er samlyggjandi með eldhúsi.
-Útgengt er úr stofu út á sérafnotareit, viðarpallur og gert er ráð fyrir heitum potti.
Eldhús: er með hvítri innréttingu með svartri borðblötu með vaski. Innbyggðum ísskáp, uppþvottavél, bakaraofni í vinnuhæð og örbylgjuofni. Spanhelluborð með veggháf fyrir ofan.
Baðherbergi 1: er flísalagt hólf í gólf. Hvít, upphengd innrétting með vaski. "Walk-in" sturta með glerþili, upphengt salerni & baðkari. Tengi er fyrir þvottavél og þurrkara.
Baðherbergi 2: er flísalagt hólf í gólf. Hvít, upphengd innrétting með vaski. "Walk-in" sturta með glerþili, upphengt salerni.
Hjónaherbergi: bjart & rúmgott, með góðum fataskáp.
Svefnherbergi 1: með fataskáp og výnilparketi á gólfi.
Svefnherbergi 2: með fataskáp og výnilparketi á gólfi.
Svefnherbergi 3: með fataskáp og výnilparketi á gólfi.
Svefnherbergi 4: með fataskáp og výnilparketi á gólfi.
Geymsla: er inn af gangi. Blöndunartæki fyrir heitan pott eru staðsett í geymslu.
Verönd & garður: viðar pallur þar sem hefur verið gert ráð fyrir heitum potti.
Hjóla-/geymsluskúr: er ekki inni í skráðum fermetrum.
Malbikuð bílastæði fyrir framan hús.
Lóð skilast með hellulögn að framan og verönd.
Gólfefni í alrými og svefnherbergjum er výnilparket. Í votrýmum eru dökkar og ljósar 60x60 flísar.
-Húsið er klætt með álklæðningu og er því viðhaldslítið.
Hér má sjá hverfið og skipulagið: https://graenabyggd.is/
*Ath. myndir geta verið af annarri íbúð og eru aðeins til viðmiðunar.
Allar nánari upplýsingar veita:
Páll Konráð Pálsson, löggiltur fasteignasali, í síma 820-9322 eða pall@fastlind.is
Andri Freyr Halldórsson, löggiltur fasteignasali, í síma 762-6162 eða andri@fastlind.is
Atli Karl Pálmasson, löggiltur fasteignasali, í síma 662-4252 eða atli@fastlind.is
Kostnaður kaupanda vegna kaupa: Stimpilgjald kaupsamnings einstaklinga er 0,8% og lögaðila 1,6% af fasteignamati eignar. Lántökugjald getur verið breytilegt eftir lánastofnunum, oftast 1%. Þinglýsingargjald er 2.700 fyrir hvert skjal. Þjónustu- og umsýslugjald til fasteignasölu skv. kauptilboði.
Um skoðunar- og aðgæsluskyldu: Í lögum um fasteignakaup nr. 40/2002 er kveðið á um ríka skoðunarskyldu kaupenda á fasteignum. Lind fasteignasala bendir öllum sem hugsa sér að kaupa, að kynna sér vel ástand fasteignarinnar við skoðun fyrir tilboðsgerð og leita til sérfræðinga um nánari ástandsskoðun ef þörf þykir.
Forsendur söluyfirlits: Söluyfirlit er samið af fasteignasala í samræmi við ákvæði laga nr. 70/2015. Þær upplýsingar sem fram koma í söluyfirliti þessu eru sóttar í opinberar skrár, til seljanda sjálfs og eftir atvikum til húsfélags. Seljandi veitir upplýsingar um eign í samræmi við upplýsingaskyldu laga um fasteignakaup nr. 40/2002. Fasteignasali sannreynir að þær upplýsingar séu réttar með sjónskoðun á eigninni. Fasteignasali getur ekki fullyrt um ástand og eiginleika þeirra hluta fasteigna sem ekki eru aðgengilegir og sjást ekki berum augum, t.d. lagnir, dren, skólp og þak.
Ef um nýbyggingu er að ræða greiðir kaupandi skipulagsgjald, 0,3% af brunabótamáti, þegar það er lagt á.
Nýtt, bjart, fallegt & vel skipulagt 6 herbergja endaraðhús á einni hæð með tveimur baðherbergjum við Hrafnaborg 9 A, Vogum.
Í húsinu er hiti í gólfum, sem er með wifi stýringu. Eldhús kemur með öllum tækjum þ.e.a.s. uppþvottavél, ísskáp, bakaraofni, helluborði og örbylgjuofni.
Allar nánari upplýsingar veita:
Andri Freyr Halldórsson, löggiltur fasteignasali, í síma 762-6162 eða andri@fastlind.is
Atli Karl Pálmasson, löggiltur fasteignasali, í síma 662-4252 eða atli@fastlind.is
*5 Svefnherbergi.
*Gólfsíðir gluggar í alrými.
*Hiti í gólfum.
*Aukin lofthæð.
*Eldhústæki fylgja.
Skráð stærð eignar skv. FMR er 139,8 fm, ath. geymsluskúr að framan er ekki inn í fermetrum.
Eignin skilast fullbúin og er til afhendingar við kaupsamning.
Eignin skiptist í:
Forstofu, fimm svefnherbergi, eldhús, stofu/borðstofu, tvö baðherbergi og geymslu.
Nánari lýsing eignar:
Anddyri: með fataskáp.
Stofa & borðstofa: eru samliggjandi. Rýmið er með aukinni lofthæð, bjart og rúmgott og er samlyggjandi með eldhúsi.
-Útgengt er úr stofu út á sérafnotareit, viðarpallur og gert er ráð fyrir heitum potti.
Eldhús: er með hvítri innréttingu með svartri borðblötu með vaski. Innbyggðum ísskáp, uppþvottavél, bakaraofni í vinnuhæð og örbylgjuofni. Spanhelluborð með veggháf fyrir ofan.
Baðherbergi 1: er flísalagt hólf í gólf. Hvít, upphengd innrétting með vaski. "Walk-in" sturta með glerþili, upphengt salerni & baðkari. Tengi er fyrir þvottavél og þurrkara.
Baðherbergi 2: er flísalagt hólf í gólf. Hvít, upphengd innrétting með vaski. "Walk-in" sturta með glerþili, upphengt salerni.
Hjónaherbergi: bjart & rúmgott, með góðum fataskáp.
Svefnherbergi 1: með fataskáp og výnilparketi á gólfi.
Svefnherbergi 2: með fataskáp og výnilparketi á gólfi.
Svefnherbergi 3: með fataskáp og výnilparketi á gólfi.
Svefnherbergi 4: með fataskáp og výnilparketi á gólfi.
Geymsla: er inn af gangi. Blöndunartæki fyrir heitan pott eru staðsett í geymslu.
Verönd & garður: viðar pallur þar sem hefur verið gert ráð fyrir heitum potti.
Hjóla-/geymsluskúr: er ekki inni í skráðum fermetrum.
Malbikuð bílastæði fyrir framan hús.
Lóð skilast með hellulögn að framan og verönd.
Gólfefni í alrými og svefnherbergjum er výnilparket. Í votrýmum eru dökkar og ljósar 60x60 flísar.
-Húsið er klætt með álklæðningu og er því viðhaldslítið.
Hér má sjá hverfið og skipulagið: https://graenabyggd.is/
*Ath. myndir geta verið af annarri íbúð og eru aðeins til viðmiðunar.
Allar nánari upplýsingar veita:
Páll Konráð Pálsson, löggiltur fasteignasali, í síma 820-9322 eða pall@fastlind.is
Andri Freyr Halldórsson, löggiltur fasteignasali, í síma 762-6162 eða andri@fastlind.is
Atli Karl Pálmasson, löggiltur fasteignasali, í síma 662-4252 eða atli@fastlind.is
Kostnaður kaupanda vegna kaupa: Stimpilgjald kaupsamnings einstaklinga er 0,8% og lögaðila 1,6% af fasteignamati eignar. Lántökugjald getur verið breytilegt eftir lánastofnunum, oftast 1%. Þinglýsingargjald er 2.700 fyrir hvert skjal. Þjónustu- og umsýslugjald til fasteignasölu skv. kauptilboði.
Um skoðunar- og aðgæsluskyldu: Í lögum um fasteignakaup nr. 40/2002 er kveðið á um ríka skoðunarskyldu kaupenda á fasteignum. Lind fasteignasala bendir öllum sem hugsa sér að kaupa, að kynna sér vel ástand fasteignarinnar við skoðun fyrir tilboðsgerð og leita til sérfræðinga um nánari ástandsskoðun ef þörf þykir.
Forsendur söluyfirlits: Söluyfirlit er samið af fasteignasala í samræmi við ákvæði laga nr. 70/2015. Þær upplýsingar sem fram koma í söluyfirliti þessu eru sóttar í opinberar skrár, til seljanda sjálfs og eftir atvikum til húsfélags. Seljandi veitir upplýsingar um eign í samræmi við upplýsingaskyldu laga um fasteignakaup nr. 40/2002. Fasteignasali sannreynir að þær upplýsingar séu réttar með sjónskoðun á eigninni. Fasteignasali getur ekki fullyrt um ástand og eiginleika þeirra hluta fasteigna sem ekki eru aðgengilegir og sjást ekki berum augum, t.d. lagnir, dren, skólp og þak.
Ef um nýbyggingu er að ræða greiðir kaupandi skipulagsgjald, 0,3% af brunabótamáti, þegar það er lagt á.