Upplýsingar
Verðsaga
Byggt 2019
81,3 m²
3 herb.
1 baðherb.
2 svefnh.
Þvottahús
Sérinngangur
Lýsing
Hreiðar Levý lögg. fasteignasali og Betri Stofan Fasteignasala kynna bjarta, fallega og vel skipulagða 81,3fm, 3ja herbergja íbúð á 2. hæð í nýlegu fjóbýlishúsi að Álalæk 20, 800 Selfoss. Húsið er byggt árið 2019 og stendur á 3503,3fm eignarlóð með sem er í sameiginlegri eigu Álalæks 18-24. Á lóðinni eru 31 bílastæði á malbikuðu bílaplani og eru bílastæðin sameign allra íbúðanna á lóðinni Álalækur 18-24. Íbúðin er afar björt og vel skiðpulögð. Sérinngangur er inn í íbúðina af opnum svalargangi. Eignin skiptist í anddyri, þvottahús, baðherbergi, 2 svefnherbergi, alrými með samliggjandi stofu og eldhúsi ásamt 13,7fm suðvestur svölum. Mjög góð staðsetning á Selfossi með alla helstu verslun og þjónustu í nágrenninu, leik-, grunn- og framhaldsskóla ásamt fjölbreyttu íþróttastarfi. Þá er hinn rómaði nýji miðbær Selfoss í göngufjarlægð.
Bókið skoðun hjá Hreiðari Levý lögg. fasteignasala í síma 661-6021 eða hreidar@betristofan.is
Eignin Álalækur 20 er skráð sem hér segir hjá FMR: Eign 250-1270, birt stærð 81.3 fm.
Fasteignamat eignar fyrir árið 2026 skv. HMS er 52.950.000kr.
Nánari lýsing:
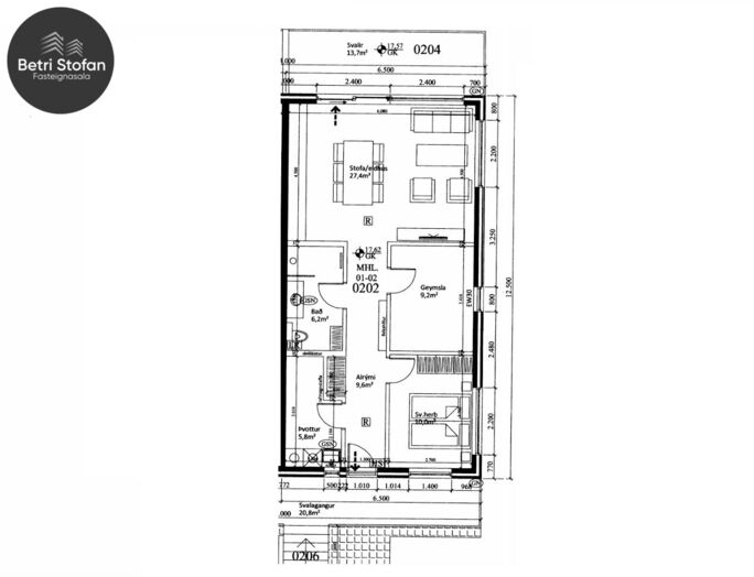
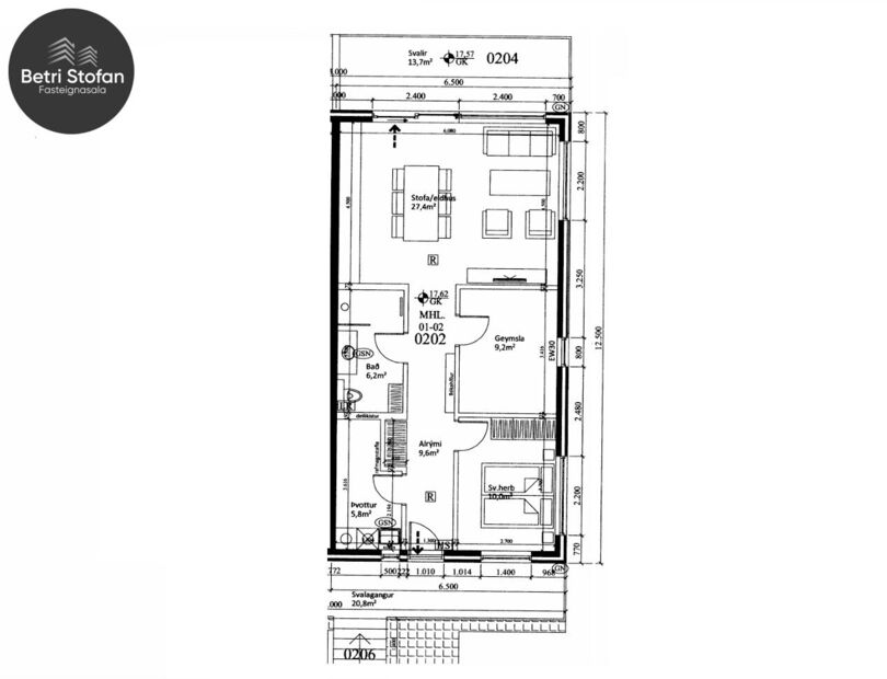
Anddyri: Komið inn í flísalagt anddyri með fataskáp um sérinngang.
Svefnherbergi I: Rúmgott með fataskáp.
Svefnherbergi II: Rúmgott með fataskáp.
Þvottahús / geymsla: Innan íbúðar með aðstöðu fyrir þvottavél og þurrkara ásamt skolvask.
Baðherbergi: Rúmgott með þröskuldarlausri sturtu, innréttingu með neðri skúffum og skáp ásamt innfeldum vaski og stórum spegli fyrir ofan vask, handklæðaofn og upphengt salerni. Gólf er flísalagt og veggir við sturtu.
Alrými: Opið og bjart með samliggjandi stofu, borðstofu og eldhúsi. Útgengt út á 13,7fm suðvestur svalir úr alrými.
Eldhús: Ljós innrétting með efri og neðri skápum, gott skápapláss. Innbyggður ofn í vinnuhæð, uppþvottavél og eldhúsvaskur. Aðstaða fyrir ísskáp í innréttingu. Opið og samliggjandi stofu.
Stofa: Samliggjandi eldhúsi. Opin og björt stofa.
Svalir: 13,7fm suðvestur svalir. Útgengt úr alrými um rennihurð.
Sameign: Sameign allra á 1. hæð er inntaksrými, sorpgeymsla, útitröppur og þá er svalagangur á 2. hæð sameign allra auk þess sem allt útlit hússins burðarvirki þess og sameiginlegar lagnir er sameign allra.
Hitakostnaður: Einn orkumælir er í matshlutanum og skiptist kostnaður af honum skv. eignarhlutföllum
Rafmagnskostnaður: Hver íbúð er með sér mæli og eru mælarnir stasettir í inntaksrými á 1. hæð. Einn mælir er fyrir sameign allra í matshlutanum og skiptist kostnaður af honum jafnt á alla eigendur sameignarinnar skv. eignarhlutföllum.
Góð og vel skipulögð 3ja herbergja íbúð með sérinngangi í nýlegu hverfi á Selfossi. Vinsæl staðsetning sem býður upp á fjölbreytta verslun og þjónustu í nágrenninu ásamt fjölbreyttu íþrótta og tómstundarstarfi, sundlaug og golfvelli.
Nánari upplýsingar veitir Hreiðar Levý Guðmundsson löggiltur fasteignasali, í síma 661- 6021, tölvupóstur hreidar@betristofan.is.
Bókið skoðun hjá Hreiðari Levý lögg. fasteignasala í síma 661-6021 eða hreidar@betristofan.is
Eignin Álalækur 20 er skráð sem hér segir hjá FMR: Eign 250-1270, birt stærð 81.3 fm.
Fasteignamat eignar fyrir árið 2026 skv. HMS er 52.950.000kr.
Nánari lýsing:
Anddyri: Komið inn í flísalagt anddyri með fataskáp um sérinngang.
Svefnherbergi I: Rúmgott með fataskáp.
Svefnherbergi II: Rúmgott með fataskáp.
Þvottahús / geymsla: Innan íbúðar með aðstöðu fyrir þvottavél og þurrkara ásamt skolvask.
Baðherbergi: Rúmgott með þröskuldarlausri sturtu, innréttingu með neðri skúffum og skáp ásamt innfeldum vaski og stórum spegli fyrir ofan vask, handklæðaofn og upphengt salerni. Gólf er flísalagt og veggir við sturtu.
Alrými: Opið og bjart með samliggjandi stofu, borðstofu og eldhúsi. Útgengt út á 13,7fm suðvestur svalir úr alrými.
Eldhús: Ljós innrétting með efri og neðri skápum, gott skápapláss. Innbyggður ofn í vinnuhæð, uppþvottavél og eldhúsvaskur. Aðstaða fyrir ísskáp í innréttingu. Opið og samliggjandi stofu.
Stofa: Samliggjandi eldhúsi. Opin og björt stofa.
Svalir: 13,7fm suðvestur svalir. Útgengt úr alrými um rennihurð.
Sameign: Sameign allra á 1. hæð er inntaksrými, sorpgeymsla, útitröppur og þá er svalagangur á 2. hæð sameign allra auk þess sem allt útlit hússins burðarvirki þess og sameiginlegar lagnir er sameign allra.
Hitakostnaður: Einn orkumælir er í matshlutanum og skiptist kostnaður af honum skv. eignarhlutföllum
Rafmagnskostnaður: Hver íbúð er með sér mæli og eru mælarnir stasettir í inntaksrými á 1. hæð. Einn mælir er fyrir sameign allra í matshlutanum og skiptist kostnaður af honum jafnt á alla eigendur sameignarinnar skv. eignarhlutföllum.
Góð og vel skipulögð 3ja herbergja íbúð með sérinngangi í nýlegu hverfi á Selfossi. Vinsæl staðsetning sem býður upp á fjölbreytta verslun og þjónustu í nágrenninu ásamt fjölbreyttu íþrótta og tómstundarstarfi, sundlaug og golfvelli.
Nánari upplýsingar veitir Hreiðar Levý Guðmundsson löggiltur fasteignasali, í síma 661- 6021, tölvupóstur hreidar@betristofan.is.
Gjöld sem kaupandi þarf að standa straum af ef að kaupum verður:
1. Stimpilgjald af fasteignamati fasteignar er 0.8%, en 0,4% fyrir fyrstu kaup og 1,6% fyrir lögaðila.
2. Þinglýsingargjald: kaupsamningi, skuldabréfi, veðleyfi, afsali o.s.frv. er kr. 3.800 af hverju skjali.
3. Lántökukostnaður samkvæmt verðskrá viðkomandi lánastofnunar.
4. Umsýslugjald til fasteignasölu skv. gjaldskrá.
Ár
Fasteignamat
Kaupverð
Stærð
Fermetraverð
6. sep. 2019
22.250.000 kr.
33.900.000 kr.
81.3 m²
416.974 kr.
Byggt á upplýsingum úr Þjóðskrá Íslands frá 2006-2026