Upplýsingar
Verðsaga
Byggt 2005
281,6 m²
9 herb.
3 baðherb.
6 svefnh.
Þvottahús
Bílskúr
Útsýni
Sérinngangur
Lýsing
Elka lgf. s. 863-8813 hjá Fasteignasölunni TORG kynnir Fjallakór 4 - Mjög vel hannað einbýlishús með aukaíbúð og glæsilegu útsýni á frábærum stað í Kópavogi.
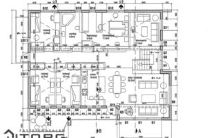
Skráð stærð skv. FMR 281,6 m², þar af ca 50 m² aukaíbúð á neðri hæð með sérinngangi. Fimm rúmgóð svefnherbergi og innangengur bílskúr. Tvö baðherbergi, sér þvottahús, góðar geymslur og dásamlegt útisvæði. Frábær staðsetning í rólegum og eftirsóttum botnlanga í Kórunum með alla þjónustu í seilingarfjarlægð. Fyrirhugað fasteignamat 2026: 202.400.000 kr.
Nánari upplýsingar veitir Elka Guðmundsdóttir Fasteignasali, í síma 863-8813, tölvupóstur elka@fstorg.is.
Nánari lýsing;
Góð aðkoma er að húsinu og næg bílastæði, inngangur í aukaíbúð er vinstra megin við húsið og aðalinngangur hægra megin við bílskúr.
Gengið er inní opna forstofu með einu svefnherbergi strax á hægri hönd.
Baðherbergi er flísalagt í hólf og gólf með "walk in" sturtu. Þvottahús er á neðri hæðinni ásamt góðri geymslu.
Innangengt í bílskúr sem er 30,5 m² að stærð, flísalagður með góðum hillum. Úr bílskúr er komið inní lítið fataherbergi.
Stigi uppá efri hæð, á stigapallinum er útgengi í garðinn.
Efri hæðin er björt og opin með stofu og borðstofu í opnu rými.
Eldhús með dökkri innréttingu frá HTH og vönduðum tækjum. Mikið skápapláss, Quartz steinborðplata. Eldhúsið var endurnýjað að mestu leiti árið 2021.
Virkilega björt og rúmgóð stofa með háum gluggum og frábæru útsýni.
Mikil lofthæð og falleg birta er í alrými hússins. Úr stofu er útgangur út á suðvestur-svalir.
Afstúkað sjónvarpsrými en í góðri tengingu við alrými hússins, eldhús, stofu og borðstofu.
Svefnherbergisgangur með fjórum svefnherbergjum og baðherbergi. Við enda svefnherbergisgangs eru norðvestur svalir sem hægt er að fara útí garð af.
Baðherbergið er rúmgott með fallegri innréttingu með marmara steinborðplötu, flísar á gólfi og veggjum Góð "walk in" sturta og gluggi. Baðherbergi var endurnýjað árið 2022. Innangengt í baðherbergi úr hjónaherbergi.
Fjögur svefnherbergi eru á efri hæð. Hjónaherbergið ásamt þremur góðum barnaherbergjum með góðu skápaplássi. Í hjónaherbergi er fataherbergi.
Gólfhiti er í öllu húsinu og nýjar hitastýringar voru settar í húsið í byrjun árs 2025.
Aukaíbúðin er með sérinngangi og samanstendur af stofu, eldhúskrók, svefnherbergi og baðherbergi. Með eldri innréttingum. Íbúðin er í útleigu.
Garðurinn er einstaklega skjólsæll með timburpalli, skjólgirðingum og heitum potti. Hægt er að ganga inní garðinn af stigapalli og frá innkeyrslu hússins.
Sumarið 2024 var vestur og norður hlið hússins klædd með flísum. Skipt var um þakrennu 2024.
Fjallakór 4 er í hjarta Kóranna – rólegt, fjölskylduvænt og vel skipulagt hverfi með alla þjónustu innan seilingar
Stutt í skóla og leikskóla, íþróttasvæði og útivistarsvæði.
Mjög skemmtilegt, bjart, vel hannað og vandað fjölskylduhús á tveimur hæðum í hjarta Kóranna.
Nánari upplýsingar veitir Elka Guðmundsdóttir Fasteignasali, í síma 863-8813, tölvupóstur elka@fstorg.is.
Um skoðunar- og aðgæsluskyldu:
Í lögum um fasteignakaup nr. 40/2002 er kveðið á um ríka skoðunarskyldu kaupenda á fasteignum. Væntanlegum kaupendum er bent á að kynna sér vel ástand fasteigna við skoðun og fyrir tilboðsgerð og ef þurfa þykir að leita til sérfræðinga um nánari ástandsskoðun. Almennt getur kaupandi ekki borið fyrir sig að ástand eignar sé annað en það sem hann hefði mátt sjá við slíka skoðun.
Forsendur söluyfirlits:
Söluyfirlit er samið af fasteignasala í samræmi við ákvæði laga nr. 70/2015. Þær upplýsingar sem fram koma í söluyfirliti þessu eru sóttar í opinberar skrár, til seljanda sjálfs og eftir atvikum til húsfélags. Seljandi veitir upplýsingar um eign í samræmi við upplýsingaskyldu laga um fasteignakaup nr. 40/2002, og ábyrgist að þær séu réttar. Fasteignasali sannreynir að þær upplýsingar séu réttar með sjónskoðun á eigninni. Fasteignasali getur ekki fullyrt um ástand og eiginleika þeirra hluta fasteigna sem ekki eru aðgengilegir og sjást ekki berum augum, t.d. lagnir, dren, skólp og þak. Það sama á við um staðhæfingar seljanda eignar um viðhald og einstaka framkvæmdir.
Almennt um fylgifé íbúðarhúsnæðis:
Til fylgifjár íbúðarhúsnæðis teljast varanlegar innréttingar og búnaður sem annaðhvort er skeytt varanlega við fasteignina eða er sérstaklega sniðinn að henni. Þetta á meðal annars við um fastan búnað og lagnir til hitunnar og vatnsmiðlunar, rafmagnsvirki og leiðslur, loftnet og annan móttökubúnað í eigu seljanda, sem fest eru á fasteign, föst gólfteppi og önnur gólfefni sérstaklega tilsniðin, gluggabúnað, bað- og eldhúsinnréttingar og tæki og vélar sem eru sérstaklega felld inn í innréttingarnar og verða hluti af þeim og aðra innbyggða hluta.
Um ástand einstakra eignarhluta:
Efst í söluyfirlitli þessu er að finna dálka um ástand einstakra hluta eignarinnar. Eftirfarandi lykil er til skýringar á þeirri skráningu:
Nýtt - Eignin er nýbygging.
Upprunalegt - Seljandi veit ekki til þess að byggingarhluti hafi verið endurnýjaður.
Endurnýjað - Byggingarhlutinn hefur verið endurnýjaður í heild sinni á einhverjum tímapunkti.
Endurnýjað að hluta - Hluti byggingarhlutans hefur verið endurnýjaður á einhverjum tímapunkti.
Ekki vitað - Seljandi þekkir ekki til ástands og ekki er hægt að leggja mat á það með sjónskoðun.
Gjöld sem kaupandi þarf að standa straum af vegna kaupanna:
Stimpilgjald af kaupsamningi sem er hlutfall af fasteignamati. Stimpilgjald er 0,8% fyrir einstaklinga (0,4% við fyrstu kaup) og 1,6% fyrir lögaðila.
Þinglýsingargjald af kaupsamningi, veðskuldabréfum, veðleyfum o.fl. Þinglýsingargjald er kr. 2.700,- fyrir hvert skjal.
Lántökugjald lánastofnunar. Um lántökugjald vísast í gjaldskrá viðkomandi lánveitanda.
Umsýsluþóknun fasteignasölu skv. gjaldskrá.
Ef um nýbyggingu er að ræða greiðir kaupandi skipulagsgjald, 0,3% af brunabótamáti, þegar það er lagt á.
Skráð stærð skv. FMR 281,6 m², þar af ca 50 m² aukaíbúð á neðri hæð með sérinngangi. Fimm rúmgóð svefnherbergi og innangengur bílskúr. Tvö baðherbergi, sér þvottahús, góðar geymslur og dásamlegt útisvæði. Frábær staðsetning í rólegum og eftirsóttum botnlanga í Kórunum með alla þjónustu í seilingarfjarlægð. Fyrirhugað fasteignamat 2026: 202.400.000 kr.
Nánari upplýsingar veitir Elka Guðmundsdóttir Fasteignasali, í síma 863-8813, tölvupóstur elka@fstorg.is.
Nánari lýsing;
Góð aðkoma er að húsinu og næg bílastæði, inngangur í aukaíbúð er vinstra megin við húsið og aðalinngangur hægra megin við bílskúr.
Gengið er inní opna forstofu með einu svefnherbergi strax á hægri hönd.
Baðherbergi er flísalagt í hólf og gólf með "walk in" sturtu. Þvottahús er á neðri hæðinni ásamt góðri geymslu.
Innangengt í bílskúr sem er 30,5 m² að stærð, flísalagður með góðum hillum. Úr bílskúr er komið inní lítið fataherbergi.
Stigi uppá efri hæð, á stigapallinum er útgengi í garðinn.
Efri hæðin er björt og opin með stofu og borðstofu í opnu rými.
Eldhús með dökkri innréttingu frá HTH og vönduðum tækjum. Mikið skápapláss, Quartz steinborðplata. Eldhúsið var endurnýjað að mestu leiti árið 2021.
Virkilega björt og rúmgóð stofa með háum gluggum og frábæru útsýni.
Mikil lofthæð og falleg birta er í alrými hússins. Úr stofu er útgangur út á suðvestur-svalir.
Afstúkað sjónvarpsrými en í góðri tengingu við alrými hússins, eldhús, stofu og borðstofu.
Svefnherbergisgangur með fjórum svefnherbergjum og baðherbergi. Við enda svefnherbergisgangs eru norðvestur svalir sem hægt er að fara útí garð af.
Baðherbergið er rúmgott með fallegri innréttingu með marmara steinborðplötu, flísar á gólfi og veggjum Góð "walk in" sturta og gluggi. Baðherbergi var endurnýjað árið 2022. Innangengt í baðherbergi úr hjónaherbergi.
Fjögur svefnherbergi eru á efri hæð. Hjónaherbergið ásamt þremur góðum barnaherbergjum með góðu skápaplássi. Í hjónaherbergi er fataherbergi.
Gólfhiti er í öllu húsinu og nýjar hitastýringar voru settar í húsið í byrjun árs 2025.
Aukaíbúðin er með sérinngangi og samanstendur af stofu, eldhúskrók, svefnherbergi og baðherbergi. Með eldri innréttingum. Íbúðin er í útleigu.
Garðurinn er einstaklega skjólsæll með timburpalli, skjólgirðingum og heitum potti. Hægt er að ganga inní garðinn af stigapalli og frá innkeyrslu hússins.
Sumarið 2024 var vestur og norður hlið hússins klædd með flísum. Skipt var um þakrennu 2024.
Fjallakór 4 er í hjarta Kóranna – rólegt, fjölskylduvænt og vel skipulagt hverfi með alla þjónustu innan seilingar
Stutt í skóla og leikskóla, íþróttasvæði og útivistarsvæði.
Mjög skemmtilegt, bjart, vel hannað og vandað fjölskylduhús á tveimur hæðum í hjarta Kóranna.
Nánari upplýsingar veitir Elka Guðmundsdóttir Fasteignasali, í síma 863-8813, tölvupóstur elka@fstorg.is.
Um skoðunar- og aðgæsluskyldu:
Í lögum um fasteignakaup nr. 40/2002 er kveðið á um ríka skoðunarskyldu kaupenda á fasteignum. Væntanlegum kaupendum er bent á að kynna sér vel ástand fasteigna við skoðun og fyrir tilboðsgerð og ef þurfa þykir að leita til sérfræðinga um nánari ástandsskoðun. Almennt getur kaupandi ekki borið fyrir sig að ástand eignar sé annað en það sem hann hefði mátt sjá við slíka skoðun.
Forsendur söluyfirlits:
Söluyfirlit er samið af fasteignasala í samræmi við ákvæði laga nr. 70/2015. Þær upplýsingar sem fram koma í söluyfirliti þessu eru sóttar í opinberar skrár, til seljanda sjálfs og eftir atvikum til húsfélags. Seljandi veitir upplýsingar um eign í samræmi við upplýsingaskyldu laga um fasteignakaup nr. 40/2002, og ábyrgist að þær séu réttar. Fasteignasali sannreynir að þær upplýsingar séu réttar með sjónskoðun á eigninni. Fasteignasali getur ekki fullyrt um ástand og eiginleika þeirra hluta fasteigna sem ekki eru aðgengilegir og sjást ekki berum augum, t.d. lagnir, dren, skólp og þak. Það sama á við um staðhæfingar seljanda eignar um viðhald og einstaka framkvæmdir.
Almennt um fylgifé íbúðarhúsnæðis:
Til fylgifjár íbúðarhúsnæðis teljast varanlegar innréttingar og búnaður sem annaðhvort er skeytt varanlega við fasteignina eða er sérstaklega sniðinn að henni. Þetta á meðal annars við um fastan búnað og lagnir til hitunnar og vatnsmiðlunar, rafmagnsvirki og leiðslur, loftnet og annan móttökubúnað í eigu seljanda, sem fest eru á fasteign, föst gólfteppi og önnur gólfefni sérstaklega tilsniðin, gluggabúnað, bað- og eldhúsinnréttingar og tæki og vélar sem eru sérstaklega felld inn í innréttingarnar og verða hluti af þeim og aðra innbyggða hluta.
Um ástand einstakra eignarhluta:
Efst í söluyfirlitli þessu er að finna dálka um ástand einstakra hluta eignarinnar. Eftirfarandi lykil er til skýringar á þeirri skráningu:
Nýtt - Eignin er nýbygging.
Upprunalegt - Seljandi veit ekki til þess að byggingarhluti hafi verið endurnýjaður.
Endurnýjað - Byggingarhlutinn hefur verið endurnýjaður í heild sinni á einhverjum tímapunkti.
Endurnýjað að hluta - Hluti byggingarhlutans hefur verið endurnýjaður á einhverjum tímapunkti.
Ekki vitað - Seljandi þekkir ekki til ástands og ekki er hægt að leggja mat á það með sjónskoðun.
Gjöld sem kaupandi þarf að standa straum af vegna kaupanna:
Stimpilgjald af kaupsamningi sem er hlutfall af fasteignamati. Stimpilgjald er 0,8% fyrir einstaklinga (0,4% við fyrstu kaup) og 1,6% fyrir lögaðila.
Þinglýsingargjald af kaupsamningi, veðskuldabréfum, veðleyfum o.fl. Þinglýsingargjald er kr. 2.700,- fyrir hvert skjal.
Lántökugjald lánastofnunar. Um lántökugjald vísast í gjaldskrá viðkomandi lánveitanda.
Umsýsluþóknun fasteignasölu skv. gjaldskrá.
Ef um nýbyggingu er að ræða greiðir kaupandi skipulagsgjald, 0,3% af brunabótamáti, þegar það er lagt á.
Ár
Fasteignamat
Kaupverð
Stærð
Fermetraverð
17. maí. 2013
59.200.000 kr.
64.000.000 kr.
281.6 m²
227.273 kr.
17. ágú. 2007
50.510.000 kr.
70.000.000 kr.
281.6 m²
248.580 kr.
Byggt á upplýsingum úr Þjóðskrá Íslands frá 2006-2026