Löggiltir fasteignasalar innan Félags fasteignasala:
Ásdís Ósk Valsdóttir
Guðbrandur Jónasson
Ásdís Rósa Ásgeirsdóttir
Böðvar Reynisson
Sveinbjörn Rosén Guðlaugsson
Jóhanna K. Gustavsdóttir
Pétur Ísfeld Jónsson
Anna Laufey Sigurðardóttir
Vista
svg

239

svg

184  Skoðendur

svg

Skráð  13. jan. 2026

fjölbýlishús

Melabraut 16

170 Seltjarnarnes

90.900.000 kr.

818.182 þ.kr./m2
Fasteignanúmer

F2067744

Fasteignamat

87.100.000 kr.

Brunabótamat

51.400.000 kr.

Áhvílandi

0 kr.

Arion banki – Reikna lán
Upplýsingar
Verðsaga
svg
Byggt 1959
svg
111,1 m²
svg
4 herb.
svg
1 baðherb.
svg
3 svefnh.
svg
Garður
svg
Sameiginl. inngangur
svg
Engar svalir
Opið hús: 20. janúar 2026 kl. 17:00 til 17:30

Lýsing

*** SÖLUSÝNING: MELABRAUT 16 ÍBÚÐ 202, ÞRIÐJUDAGINN 20. JANÚAR 2026 KL 17:00-17:30. JÓHANNA KRISTÍN GÚSTAVSDÓTTIR, LÖGGILTUR FASTEIGNASALI VERÐUR Á STAÐNUM OG VEITIR NÁNARI UPPLÝSINGAR Í SÍMA: 6989470 EÐA EMAIL: JOHANNA@HUSASKJOL.IS ***

SMELLTU HÉR TIL AÐ BÓKA TÍMA Í SÖLUSÝNINGU OG SÆKJA UPPLÝSINGABÆKLING FYRIR Melabraut 16 Íbúð 202.

Ef þú átt eftir að selja þá er mikilvægt er að vera með staðfest verðmat á þinni eign til að geta sent inn raunhæf tilboð og verið samkeppnishæfur við aðra kaupendur. Smelltu hér til að bóka sölumat á þinni eign.
EF ÞÚ BÓKAR ÞIG FÆRÐU TILKYNNINGU EF SÖLUSÝNING FELLUR NIÐUR.
IF YOU BOOK A SHOWING, YOU WILL BE NOTIFIED IF IT’S CANCELLED.


***NÝTT Á SKRÁ-LAUS VIÐ KAUPSAMNING***


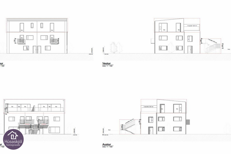
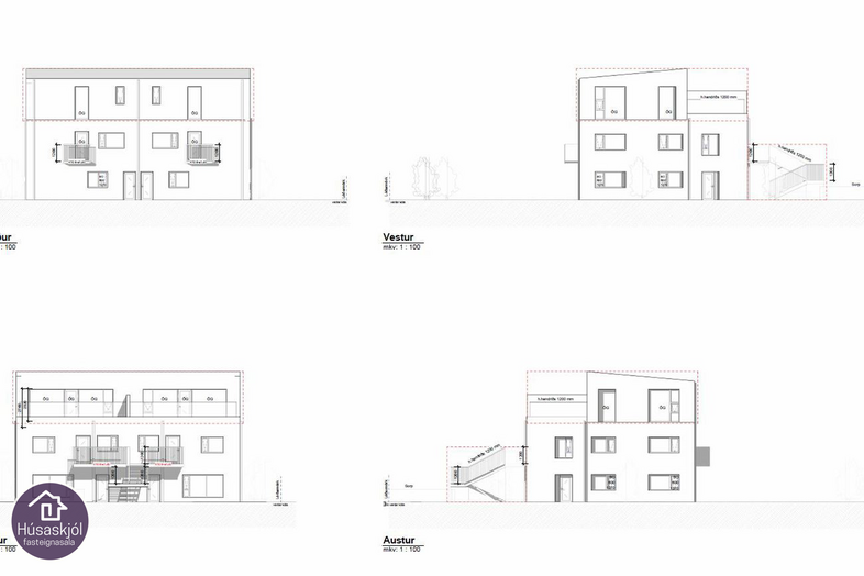
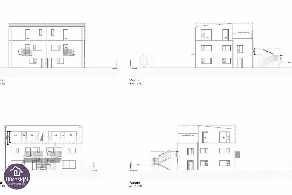
Húsaskjól og Jóhanna Gustavsdóttir löggiltur fasteignasali kynna í einkasölu: fallega og mikið endurnýjaða 4ja herbergja íbúð á efri hæð í fjórbýlishúsi ásamt rislofti á vinsælum stað á Seltjarnarnesinu á Melabraut 16 með sameiginlegum inngangi neðri hæðar. Fyrir liggur teikning og samþykki frá Seltjarnarnesbæ um að setja stiga framan á húsið og þá myndu allar íbúðirnar fá sérinngang. Jafnframt liggur fyrir samþykki og teikningar fyrir hækkun á húsinu og þá myndi þessi íbúð stækka um 56,4 fm og fá mjög rúmgóðar suðursvalir með einstöku sjávarútsýni. Lóðin er stór og gróin og á hver íbúð í húsinu eitt bílastæði fyrir framan húsið. Nýlega er búið að skipa um þak á húsinu. Íbúðin er laus við kaupsamning.

Íbúðin er skráð samtals 111,1 fm að stærð og þar af er aðalhæðin 87,6 fm og innréttað risloft 23,5 fm auk rýmis undir súð sem er ekki inni í skráðum fm. Eignin skiptist í tvö svefnherbergi, eldhús, rúmgóða stofu og borðstofu, baðherbergi og hol á neðri hæð, stigapall og risloft þar sem er gert ráð fyrir rúmgóðu herbergi, þvottahúsi og súðargeymslur.


Nánari upplýsingar veitir Jóhanna Gustavsdóttir löggiltur fasteignasali í síma 698-9470, netfang: johanna@husaskjol.is



Nánari lýsing á eign:


Gólfefni á hæðinni eru harðparket og flísar á baði.
Inngangur er sameiginlegur með neðri hæð. Þaðan er snyrtilegur stigi með steinteppi upp á stigapall. Þegar komið er inn í íbúðina tekur við rúmgott hol sem tengir saman aðrar vistaverur íbúðarinnar og er með stiga upp á risloftið. Rúmgóð stofa-og borðstofa með fallegum stórum gluggum og útsýni út á sjó. Eldhúsið er endurnýjað með hvítri sprautulakkaðri eldhúsinnréttingu sem er með efri-og neðri skápum og gráum flísum á milli, rúmgóð eyja sem hægt er að sitja við. Endurnýjuð eldhústæki, ofn í vinnuhæð og örbylgjuofn, keramik helluborð. Baðherbergið er fallegt og endurnýjað, flísalagt í hólf og gólf. upphengt klósett, sturtuklefi með gleri, viðarinnrétting með skúffum og innbyggðum vask. Herbergi og hjónaherbergi eru rúmgóð með endurnýjuðum fataskápum. Frá holi er gengið upp á risloftið um nýlegan stiga og þar er gert ráð fyrir þvottahúsi ásamt rúmgóðu svefnherbergi með Velux þakgluggum. Einnig eru góðar súðargeymslur.
í sameign hússins er hitakompa. Lóðin er stór og gróin og í bakgarðinum er góður timburskúr með palli sem er notaður sem geymsla fyrir hjól og grill fyrir íbúa hússins.



Hér er um að ræða mikið endurnýjaða og bjarta 4ja herbergja íbúð á efri hæð með rúmgóðu rislofti í fjórbýlishúsi á barnvænum og rólegum stað á Seltjarnarnesinu þar sem stutt er í leik-og grunnskóla, tónlistarskóla, þróttaaðstöðu fyrir börn og fullorðna, sundlaug, golfvöll. fallegar göngu-og hjólaleiðir meðfram sjónum og fjöruna. Einnig er ýmis verslun og þjónusta í næsta nágrenni eins og matvöruverslun, kaffihús og ísbúð á Eiðistorgi og veitingastaðurinn Ráðagerði við Gróttu svo eitthvað sé nefnt. Spennandi eign sem býður upp á ýmsa möguleika.

Allar nánari upplýsingar veitir Jóhanna Gustavsdóttir löggiltur fasteignasali í síma 698-9470, netfang: johanna@husaskjol.is


Fylgdu Húsaskjóli á TikTok


Húsaskjól fasteignasala - af því að þín fasteign skiptir máli

Ertu í söluhugleiðingum? Smelltu hér til að fá frítt verðmat
Ertu að leita að sambærilegri íbúð? Smelltu hér til að skrá þig á kaupóskalistann okkar

Fylgdu okkur á Instagram
Skoðaðu hvað okkar viðskiptavinir hafa um Skoðaðu hvað okkar viðskiptavinir hafa um okkur að segja
Hvað er í gangi á fasteignamarkaðnum? Skráðu þig á Fréttaskot Húsaskjóls

Húsaskjól advices potential buyers who do not speak or read icelandic to have a translator present when they view and sign an offer, sales agreement and other documents relating to the purchase of the property.​


Um skoðunar- og aðgæsluskyldu:
Í lögum um fasteignakaup nr. 40/2002 er kveðið á um ríka skoðunarskyldu kaupenda á fasteignum. Vill Húsaskjól fasteignasala því skora á væntanlega kaupendur að kynna sér vel ástand fasteigna fyrir kauptilboðsgerð og leita til þar til bærra sérfræðinga um nánari skoðun.


Forsendur söluyfirlits:
Söluyfirlit er samið af fasteignasala í samræmi við ákvæði laga nr. 70/2015. Þær upplýsingar sem fram koma í söluyfirliti þessu eru sóttar í opinberar skrár, til seljanda sjálfs og eftir atvikum til húsfélags. Seljandi veitir upplýsingar um eign í samræmi við upplýsingaskyldu laga um fasteignakaup nr. 40/2002. Fasteignasali sannreynir að þær upplýsingar séu réttar með sjónskoðun á eigninni.
Fasteignasali getur ekki fullyrt um ástand og eiginleika þeirra hluta fasteigna sem ekki eru aðgengilegir og sjást ekki berum augum, t.d. lagnir, dren, skólp og þak.


Gjöld sem kaupandi þarf að standa straum af vegna kaupanna:
1. Stimpilgjald af kaupsamningi, fyrstu kaup (0,4%), almenn kaup (0,8%), lögaðilar (1,6%) af heildarfasteignamati.
2. Þinglýsingargjald af kaupsamningi, veðskuldabréfi, mögulegu veðleyfi o.fl. - kr. 2.700 af hverju skjali.
3. Lántökugjald lánastofnunar - fast gjald. Sjá vefsíðu viðkomandi lánastofnanna
4. Umsýslugjald til fasteignasölu skv. kauptilboði


Húsaskjól fasteignasala

Húsaskjól fasteignasala

Hlíðasmára 2, 201 Kópavogur
Ár
Fasteignamat
Kaupverð
Stærð
Fermetraverð
28. júl. 2020
50.400.000 kr.
55.700.000 kr.
111.1 m²
501.350 kr.
29. nóv. 2006
19.170.000 kr.
24.800.000 kr.
111.1 m²
223.222 kr.
Byggt á upplýsingum úr Þjóðskrá Íslands frá 2006-2026
Húsaskjól fasteignasala

Húsaskjól fasteignasala

Hlíðasmára 2, 201 Kópavogur