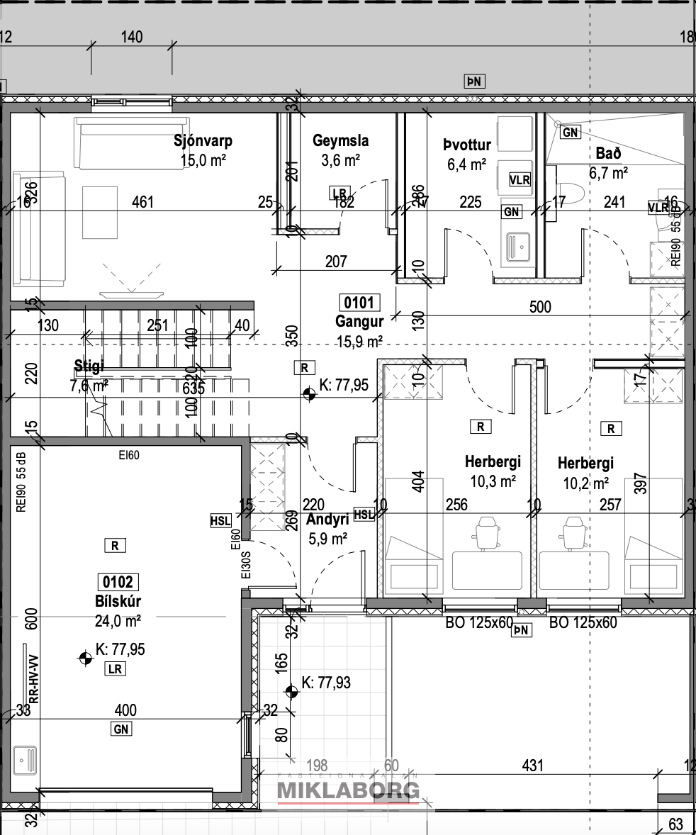
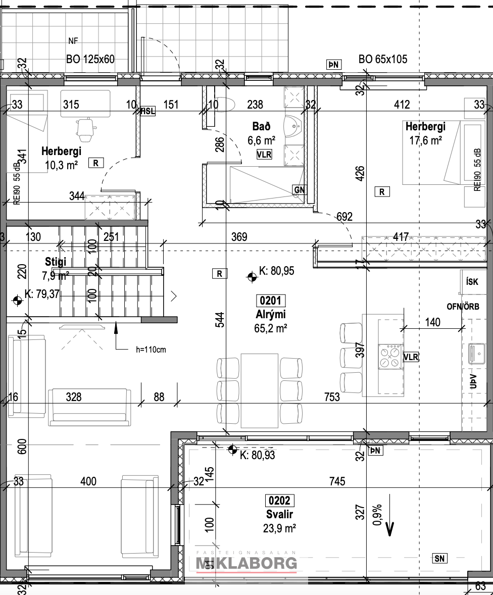
Úugata, 270 Mosfellsbær