Upplýsingar
Verðsaga
Byggt 2015
104 m²
4 herb.
1 baðherb.
3 svefnh.
Þvottahús
Lyfta
Lýsing
Bókið skoðun - Glódís Helgadóttir löggiltur fasteignasali s. 659-0510 / glodis@hraunhamar.is
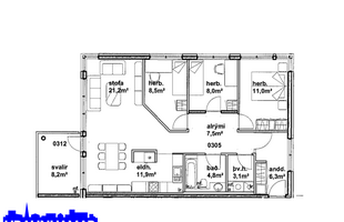
Hraunhamar fasteignasala kynnir bjarta og fallega fjögurra herbergja íbúð á 3.hæð í lyftuhúsnæði vel staðsettu á þessum fjölskylduvæna stað við Klukkuvelli 5. Skóli og leikskóli í göngufæri. Öll helsta þjónusta er í næsta umhverfi þ.e.a.s. verslanir, sundlaug, líkamsrækt og íþróttamiðstöðin við Ásvelli.
Eignin er skráð 104 fm skv. HMS en þar af er 7,8 fm geymsla.
Smelltu hér til að fá söluyfirlit sent strax.
Nánari lýsing:
Rúmgóð forstofa með góðum fataskápum, flísar á gólfi.
Rúmgott hol.
Hvít eldhúsinnrétting, gott skápaplass, ofn í vinnuhæð, helluborð með háf yfir, innbyggð uppþvottavél. Flísar á milli efri og neðri skápa. Eyja í eldhúsi.
Björt stofa og borðstofa þar sem útgengt er á rúmgóðar suðvestur svalir.
Hjónaherbergi er rúmgott með góðu skápaplássi. Nýtist sem barnaherbergi í dag.
Tvö barnaherbergi bæði með skáp.
Baðherbergi með innréttingu, vegghengdu salerni, baðkari með sturtuaðstöðu, handklæðaofn, flísar á gólfi og veggjum.
Þvottahús innan íbúðarinnar með innréttingu, flísar á gólfi.
Sér geymsla fyrir íbúðina er í kjallara ásamt sameiginlegri hjóla- og vagnageymslu.
Falleg og fjölskylduvæn eign á vinsælum stað þar sem stutt er í alla helstu þjónustu, verslanir, grunnskóla, leikskóla, góð útivistarsvæði o.fl.
Nánari upplýsingar veitir:
Glódís Helgadóttir löggiltur fasteignasali í s. 659-0510 eða glodis@hraunhamar.is
Skoðunarskylda:
Í lögum um fasteignakaup nr. 40/2002 er kveðið á um ríka skoðunarskyldu kaupenda á fasteignum. Hraunhamar fasteignasala vill benda væntanlegum kaupendum á að kynna sér vel ástand fasteigna fyrir kauptilboðsgerð og ef þurfa þykir að leita til sérfræðinga fyrir nánari ástandsskoðun.
Gjöld sem kaupandi þarf að standa straum af vegna kaupanna:
1. Stimpilgjald af kaupsamningi, fyrstu kaup (0,4%), almenn kaup (0,8%), lögaðilar (1,6%) af heildarfasteignamati.
2. Þinglýsingargjald af kaupsamningi, veðskuldabréfi, mögulegu veðleyfi o.fl. – kr. 3.800 kr. af hverju skjali.
3. Lántökugjald lánastofnunar er skv. verðskrá viðkomandi lánastofnunar.
4. Umsýslugjald til fasteignasölu skv. þjónustusamningi
Hraunhamar er elsta fasteignasala Hafnarfjarðar, stofnuð 1983.
Hraunhamar, í fararbroddi í rúm 40 ár. – Hraunhamar.is
Smelltu hér til að fá frítt söluverðmat.
Hraunhamar fasteignasala kynnir bjarta og fallega fjögurra herbergja íbúð á 3.hæð í lyftuhúsnæði vel staðsettu á þessum fjölskylduvæna stað við Klukkuvelli 5. Skóli og leikskóli í göngufæri. Öll helsta þjónusta er í næsta umhverfi þ.e.a.s. verslanir, sundlaug, líkamsrækt og íþróttamiðstöðin við Ásvelli.
Eignin er skráð 104 fm skv. HMS en þar af er 7,8 fm geymsla.
Smelltu hér til að fá söluyfirlit sent strax.
Nánari lýsing:
Rúmgóð forstofa með góðum fataskápum, flísar á gólfi.
Rúmgott hol.
Hvít eldhúsinnrétting, gott skápaplass, ofn í vinnuhæð, helluborð með háf yfir, innbyggð uppþvottavél. Flísar á milli efri og neðri skápa. Eyja í eldhúsi.
Björt stofa og borðstofa þar sem útgengt er á rúmgóðar suðvestur svalir.
Hjónaherbergi er rúmgott með góðu skápaplássi. Nýtist sem barnaherbergi í dag.
Tvö barnaherbergi bæði með skáp.
Baðherbergi með innréttingu, vegghengdu salerni, baðkari með sturtuaðstöðu, handklæðaofn, flísar á gólfi og veggjum.
Þvottahús innan íbúðarinnar með innréttingu, flísar á gólfi.
Sér geymsla fyrir íbúðina er í kjallara ásamt sameiginlegri hjóla- og vagnageymslu.
Falleg og fjölskylduvæn eign á vinsælum stað þar sem stutt er í alla helstu þjónustu, verslanir, grunnskóla, leikskóla, góð útivistarsvæði o.fl.
Nánari upplýsingar veitir:
Glódís Helgadóttir löggiltur fasteignasali í s. 659-0510 eða glodis@hraunhamar.is
Skoðunarskylda:
Í lögum um fasteignakaup nr. 40/2002 er kveðið á um ríka skoðunarskyldu kaupenda á fasteignum. Hraunhamar fasteignasala vill benda væntanlegum kaupendum á að kynna sér vel ástand fasteigna fyrir kauptilboðsgerð og ef þurfa þykir að leita til sérfræðinga fyrir nánari ástandsskoðun.
Gjöld sem kaupandi þarf að standa straum af vegna kaupanna:
1. Stimpilgjald af kaupsamningi, fyrstu kaup (0,4%), almenn kaup (0,8%), lögaðilar (1,6%) af heildarfasteignamati.
2. Þinglýsingargjald af kaupsamningi, veðskuldabréfi, mögulegu veðleyfi o.fl. – kr. 3.800 kr. af hverju skjali.
3. Lántökugjald lánastofnunar er skv. verðskrá viðkomandi lánastofnunar.
4. Umsýslugjald til fasteignasölu skv. þjónustusamningi
Hraunhamar er elsta fasteignasala Hafnarfjarðar, stofnuð 1983.
Hraunhamar, í fararbroddi í rúm 40 ár. – Hraunhamar.is
Smelltu hér til að fá frítt söluverðmat.
Ár
Fasteignamat
Kaupverð
Stærð
Fermetraverð
14. maí. 2020
43.500.000 kr.
45.500.000 kr.
104 m²
437.500 kr.
29. sep. 2016
28.050.000 kr.
27.500.000 kr.
104 m²
264.423 kr.
25. feb. 2016
20.400.000 kr.
31.800.000 kr.
104 m²
305.769 kr.
Byggt á upplýsingum úr Þjóðskrá Íslands frá 2006-2026