Löggiltir fasteignasalar innan Félags fasteignasala:
Ástþór Reynir Guðmundsson
Vigdís R. S. Helgadóttir
Guðbjörg Helga Jóhannesdóttir
Gylfi Jens Gylfason
Sigrún Matthea Sigvaldadóttir
Sveinn Gíslason
Páll Guðmundsson
Þórarinn Arnar Sævarsson
Berglind Hólm Birgisdóttir
Þorsteinn Gíslason
Guðrún Lilja Tryggvadóttir
Brynjar Ingólfsson
Guðný Þorsteinsdóttir
Bjarni Blöndal
Þorsteinn Ólafs
Þórdís Björk Davíðsdóttir
Jóhann Kristinn Jóhannesson
Bjarný Björg Arnórsdóttir
Salvör Þóra Davíðsdóttir
Magga Sigríður Gísladóttir
Upplýsingar
Verðsaga
Byggt 2007
123,5 m²
4 herb.
1 baðherb.
3 svefnh.
Þvottahús
Útsýni
Sérinngangur
Lýsing
Dagbjartur Willardsson löggiltur fasteignasali og RE/MAX kynna, Glitvelli 3, Hafnarfirði íbúð 0102 fnr. 229-5271 - SELJENDUR SKOÐA MÖGULEIKA Á SKIPTUM Á EIGN MEÐ FJÓRUM SVEFNHERBERGJUM.
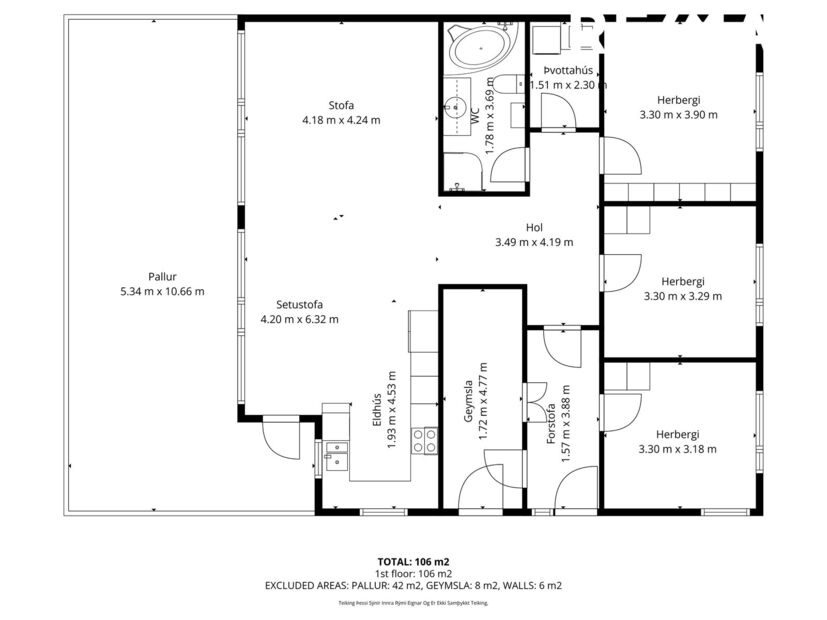
Mjög falleg og vel skipulögð 4ra herbergja, 123,5 fm neðri sérhæð í fjórbýlishúsi, innst í botnlangagötu. Húsið er byggt árið 2007. Í botnlanganum eru bara Glitvellir 1 og 3 og lítil umferð um götuna. Stutt í þjónustu í nágrenninu og góðir göngu og hjólastígar í hverfinu. Virkilega vönduð og flott eign og gott sambýli er í þessu fallega fjölbýli með 4 íbúðum. Gestastæði eru við húsið og ekki skortur á bílastæðum við þessa eign. Húsfélagið setti upp rafhleðslustaura við bílastæðin sem íbúar geta notað til rafhleðslu.
FÁÐU SENT SÖLUYIRLIT YFIR EIGNINA HÉR.
Nánari lýsing:
Forstofa: Flísar á gólfi. Góður fataskápur úr eik. Innangengt í geymslu inn úr forstofu
Stofa/borðstofa: Björt og rúmgóð stofa/borðstofa með parketi á gólfi og útgengi á sólríkan suðurpall með skjólveggjum. Rýmið er einstaklega hentugt fyrir fjölbreytta nýtingu. Núverandi eigendur eru með stórt og mikið borð sem tekur 12 manns þægilega í sæti, sem sýnir hversu rúmgott rýmið er. Fyrir daglega notkun er jafnframt auðvelt að hafa minna borð fyrir 6–8 manns og skapa enn opnara og léttara rými.
Eldhús: Parket á gólfi. Rúmgóð hvít innrétting með granítborðplötu. AEG bakstursofn í þægilegri vinnuhæð og spansuðuhelluborð með háfi yfir. Búið er að smíða framhald af eldhúsinnréttingunni til að rúma amerískan ísskáp, sem er tengdur við vatn.
Svefnherbergi: Eru þrjú talsins og er parket á gólfi þeirra allra. Fataskápar eru í öllum herbergjunum.
Baðherbergi: Flísalagt í hólf og gólf. Hornbaðkar og sturtuklefi. Hvít innrétting með efri og neðri skápum og handlaug. Granít borðplata er í innréttingu. Upphengt salerni og handklæðaofn.
Þvottahús: Flísar á gólfi. Borðplata með skolvaski.
Geymsla: Flísar á gólfi. Inngengt er úr forstofu og einni er hurð inn í rýmið við hliðina á útidyrahurð inn í íbúðina. Góðar hillur eru í rýminu og núverandi eigendur eru með lausar hillur einnig sem veita gott geymslupláss.
Lóð: Sameiginleg frágengin lóð. Tyrft grasflöt í kringum húsið. Við íbúðina er rúmgóður og sólríkur pallur sem snýr til suðurs. Handrið pallsins var endurnýjað árið 2023 og jafnframt settur upp stór og vandaður timbur og gler - skjólveggur sem býr til notalegt og skjólsælt útisvæði. Þetta gerir grill- og útiveruaðstöðu íbúðarinnar einstaklega góða. Á pallinum er rennandi vatn, tengt blöndunartæki í eldhúsi, sem gerir allt viðhaldog bílaþvott mun þægilegri. Þá hefur nýlega verið komið upp rafmagnsinnstungu sérstaklega hannaðri fyrir háþrýstisdælu og jólaskraut,
Núverandi eigandi keypti eignina 2015 og síðan þá hefur eftirfarandi verið framkvæmt í eigninni.
2016 Parketlagt– Quick step harðparket frá Harðviðarval nýtt undirlag og listar.
2017 Gifsveggur smíðaður fyrir amerískan ískáp og eldhúsinnrétingu breytt.
2018 Eldhúsinnrétting & baðinnnréting filmaðar
2018 Ný borðplata sett upp í þvottahúsi ásamt nýjum vaski og blöndunartækjum.
2020 Ný dæla sett fyrir gólfhita í hitagrind.
2024 Grindverk rifið niður á palli og endurnýjað með nýju efni og hækkað og borið á pall og grindverk timbur og skrúfur. Gler/skjólveggur smíðaður fyrir framan grill aðstöðu. Blöndunartæki sett upp í eldhúsi fyrir garðslöngu og tengt við garðslöngu undir pallinn.
2024 innstunga sett upp fyrir háþrýstidælu og jólaseríu
- Ég býð upp á frítt söluverðmat á þinni eign og veiti góða og lipra þjónustu. -
Allar nánari upplýsingar veitir:
Dagbjartur Willardsson lgf hjá RE/MAX í s: 861-7507 eða á daddi@remax.is
- Ég býð upp á frítt söluverðmat á þinni eign og veiti góða og lipra þjónustu. -
Gjöld sem kaupandi þarf að greiða vegna kaupanna:
1. Stimpilgjald af kaupsamningi - 0,8% af heildarfasteignamati hjá einstaklingum. Sé um fyrstu kaup að ræða er stimpilgjald af kaupsamningi 0,4% af heildarfasteignamati.
2. Stimpilgjald af kaupsamningi - 1,6% af heildarfasteignamati hjá lögaðilum.
3. Þinglýsingargjald af kaupsamningi, veðskuldabréfi, veðleyfi og fl. 2.700 kr. af hverju skjali.
4. Lántökugjald lánastofnunar - breytilegt, sjá gjaldskrá á heimasíðum lánastofnana.
5. Umsýslugjald til fasteignasölu 69.900 kr. m.vsk.
Í lögum um fasteignakaup nr. 40/2002 er kveðið á um ríka skoðunarskyldu kaupenda á fasteignum. Vill RE/MAX því skora á væntanlega kaupendur að kynna sér vel ástand fasteigna fyrir kauptilboðsgerð og leita til þar til bærra sérfræðinga um nánari skoðun.
Mjög falleg og vel skipulögð 4ra herbergja, 123,5 fm neðri sérhæð í fjórbýlishúsi, innst í botnlangagötu. Húsið er byggt árið 2007. Í botnlanganum eru bara Glitvellir 1 og 3 og lítil umferð um götuna. Stutt í þjónustu í nágrenninu og góðir göngu og hjólastígar í hverfinu. Virkilega vönduð og flott eign og gott sambýli er í þessu fallega fjölbýli með 4 íbúðum. Gestastæði eru við húsið og ekki skortur á bílastæðum við þessa eign. Húsfélagið setti upp rafhleðslustaura við bílastæðin sem íbúar geta notað til rafhleðslu.
FÁÐU SENT SÖLUYIRLIT YFIR EIGNINA HÉR.
Nánari lýsing:
Forstofa: Flísar á gólfi. Góður fataskápur úr eik. Innangengt í geymslu inn úr forstofu
Stofa/borðstofa: Björt og rúmgóð stofa/borðstofa með parketi á gólfi og útgengi á sólríkan suðurpall með skjólveggjum. Rýmið er einstaklega hentugt fyrir fjölbreytta nýtingu. Núverandi eigendur eru með stórt og mikið borð sem tekur 12 manns þægilega í sæti, sem sýnir hversu rúmgott rýmið er. Fyrir daglega notkun er jafnframt auðvelt að hafa minna borð fyrir 6–8 manns og skapa enn opnara og léttara rými.
Eldhús: Parket á gólfi. Rúmgóð hvít innrétting með granítborðplötu. AEG bakstursofn í þægilegri vinnuhæð og spansuðuhelluborð með háfi yfir. Búið er að smíða framhald af eldhúsinnréttingunni til að rúma amerískan ísskáp, sem er tengdur við vatn.
Svefnherbergi: Eru þrjú talsins og er parket á gólfi þeirra allra. Fataskápar eru í öllum herbergjunum.
Baðherbergi: Flísalagt í hólf og gólf. Hornbaðkar og sturtuklefi. Hvít innrétting með efri og neðri skápum og handlaug. Granít borðplata er í innréttingu. Upphengt salerni og handklæðaofn.
Þvottahús: Flísar á gólfi. Borðplata með skolvaski.
Geymsla: Flísar á gólfi. Inngengt er úr forstofu og einni er hurð inn í rýmið við hliðina á útidyrahurð inn í íbúðina. Góðar hillur eru í rýminu og núverandi eigendur eru með lausar hillur einnig sem veita gott geymslupláss.
Lóð: Sameiginleg frágengin lóð. Tyrft grasflöt í kringum húsið. Við íbúðina er rúmgóður og sólríkur pallur sem snýr til suðurs. Handrið pallsins var endurnýjað árið 2023 og jafnframt settur upp stór og vandaður timbur og gler - skjólveggur sem býr til notalegt og skjólsælt útisvæði. Þetta gerir grill- og útiveruaðstöðu íbúðarinnar einstaklega góða. Á pallinum er rennandi vatn, tengt blöndunartæki í eldhúsi, sem gerir allt viðhaldog bílaþvott mun þægilegri. Þá hefur nýlega verið komið upp rafmagnsinnstungu sérstaklega hannaðri fyrir háþrýstisdælu og jólaskraut,
Núverandi eigandi keypti eignina 2015 og síðan þá hefur eftirfarandi verið framkvæmt í eigninni.
2016 Parketlagt– Quick step harðparket frá Harðviðarval nýtt undirlag og listar.
2017 Gifsveggur smíðaður fyrir amerískan ískáp og eldhúsinnrétingu breytt.
2018 Eldhúsinnrétting & baðinnnréting filmaðar
2018 Ný borðplata sett upp í þvottahúsi ásamt nýjum vaski og blöndunartækjum.
2020 Ný dæla sett fyrir gólfhita í hitagrind.
2024 Grindverk rifið niður á palli og endurnýjað með nýju efni og hækkað og borið á pall og grindverk timbur og skrúfur. Gler/skjólveggur smíðaður fyrir framan grill aðstöðu. Blöndunartæki sett upp í eldhúsi fyrir garðslöngu og tengt við garðslöngu undir pallinn.
2024 innstunga sett upp fyrir háþrýstidælu og jólaseríu
- Ég býð upp á frítt söluverðmat á þinni eign og veiti góða og lipra þjónustu. -
Allar nánari upplýsingar veitir:
Dagbjartur Willardsson lgf hjá RE/MAX í s: 861-7507 eða á daddi@remax.is
- Ég býð upp á frítt söluverðmat á þinni eign og veiti góða og lipra þjónustu. -
Gjöld sem kaupandi þarf að greiða vegna kaupanna:
1. Stimpilgjald af kaupsamningi - 0,8% af heildarfasteignamati hjá einstaklingum. Sé um fyrstu kaup að ræða er stimpilgjald af kaupsamningi 0,4% af heildarfasteignamati.
2. Stimpilgjald af kaupsamningi - 1,6% af heildarfasteignamati hjá lögaðilum.
3. Þinglýsingargjald af kaupsamningi, veðskuldabréfi, veðleyfi og fl. 2.700 kr. af hverju skjali.
4. Lántökugjald lánastofnunar - breytilegt, sjá gjaldskrá á heimasíðum lánastofnana.
5. Umsýslugjald til fasteignasölu 69.900 kr. m.vsk.
Í lögum um fasteignakaup nr. 40/2002 er kveðið á um ríka skoðunarskyldu kaupenda á fasteignum. Vill RE/MAX því skora á væntanlega kaupendur að kynna sér vel ástand fasteigna fyrir kauptilboðsgerð og leita til þar til bærra sérfræðinga um nánari skoðun.
Ár
Fasteignamat
Kaupverð
Stærð
Fermetraverð
18. des. 2015
31.450.000 kr.
37.000.000 kr.
123.5 m²
299.595 kr.
22. ágú. 2007
3.100.000 kr.
26.000.000 kr.
123.5 m²
210.526 kr.
Byggt á upplýsingum úr Þjóðskrá Íslands frá 2006-2026