Upplýsingar
Verðsaga
Byggt 1953
131,5 m²
6 herb.
3 baðherb.
3 svefnh.
Þvottahús
Sameiginl. inngangur
Lýsing
Betri Stofan Fasteignasala kynnir fallega, bjarta og vel skipulagða 131,5fm, 5 herbergja íbúð á 1. hæð með svalir til suðurs ásamt útleiguherbergi í risi á við Grettisgötu 96, 105 Reykjavík. 4 íbúðir eru í stigaganginum, ein á hverjum palli. Eignin skiptist í forstofu, 3 rúmgóð svefnherbergi (Möguleiki á að bæta því 4 við með þvi að flytja eldhús í aðra stofuna), baðherbergi, gestasalerni, sérgeymsla í kjallara ásamt risherbergi með aðgengi að sameiginlegu eldhúsi og salerni sem getur nýst sem útleigueining. Húsið hefur fengið gott viðhald á síðustu árum. Árið 2021-2022 var húsið múrviðgert ásamt því að járn á þaki var endurnýjað og gluggar endurnýjaðir eftir þörfum. Nýlegur myndavéladyrasími. Eign sem býður upp á fjölbreytta nýtingarmöguleika.
SMELLIÐ HÉR TIL AÐ SJÁ VIDEÓ AF EIGNINNI
Fasteignmat fyrir árið 2026 skv. HMS er kr. 99.500.000kr.
Framkvæmdir utanhúss árið 2022
- Gler og gluggar í stofu og forstofuherbergi voru endurnýjaðir.
- Gler og gluggar í eldhúsi, borðstofu, svefnherbergjum I og II voru yfirfarnir og málaðir að utan.
- Gluggi í geymslu í risi endurnýjaður (velux).
- Þak yfirfarið skipt um þakjárn og pappa.
- Húsið múrviðgert að utan.
- Útihurðir yfirfarnar og málaðar.
- Þakrennur endurnýjaðar.
2019
- Skólplagnir í sameign, gangi og þvottahúsi voru endurnýjaðar. (Skv. söluyfirliti fyrri eiganda).
Frábær staðsetning í miðbæ Reykjavíkur með skóla á öllum stigum í nágrenninu ásamt fjölbreyttri verslun og þjónustu sem miðbær Reykjavíkur hefur upp á að bjóða. Mikil uppbygging hefur átt sér stað á síðustu misserin á austari hluta miðbæjarins. Þar ber hæst að nefna Hlemm mathöll og Hlemmtorg sem er langt komið. Þá er stutt gönguferð í Sundhöllina, útivistarparadísina á Klambratúni og menningarsetrið Kjarvalstaði þar sem hægt er að njóta fjölbreyttra listasýninga ásamt því að setjast niður á Klambrar Bistrø sem býður upp á matseðil sem er innblásinn af skandinavískri matarhefð, fjölbreyttu úrvali af kruðeríi og hágæða kaffi.
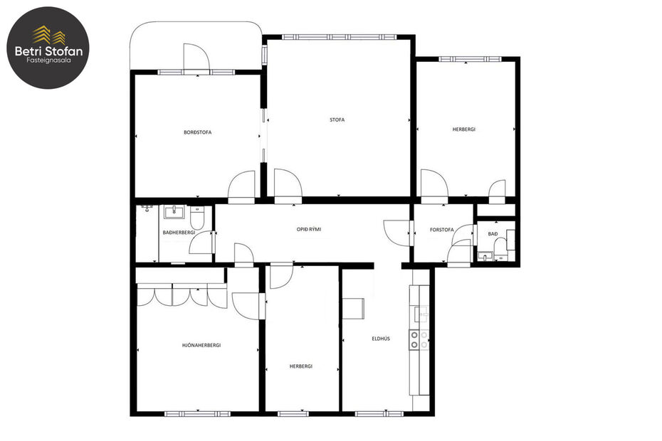
Nánari lýsing:
Anddyri: Viðarparket á gólfi. Gengið í eitt herbergjana úr anddyri, gestasalerni og inn á gang.
Svefnherbergi I: Innaf anddyri. Rúmgott með fataskáp. Möguleiki á að nýta sem útleiguherbergi með aðgengi að salerni.
Gestasalerni: Nýlegur vaskur og blöndunartæki, skápar m/speglahurð, og salerni.
Eldhús: Rúmgott eldhús með fallegri og vel viðhaldinni upprunalegri eldhúsinnréttingu og nýlegri borðplötu. Efri og neðri skápar með innbyggðum nýlegum Husqvarna blástursofni, spanhelluborði og innbyggðri uppþvottavél frá Siemens. Flísar á milli skápa nýlega endurnýjaðar á smekklegan hátt. Möguleiki er að færa eldhús inn í aðra stofuna og hefur það verið framkvæmt í hluta af íbúðum í húsalengjunni.
Hol/gangur: Tengir saman flest rými íbúðar.
Stofa: Rúmgóð, falleg og björt stofa. Samliggjandi og opin við borðstofu.
Borðstofa: Rúmgóð og björt borðstofa. Opin og samliggjandi við stofu. Útgengt úr borðstofu út á svalir til suðurs. Möguleiki á að færa eldhús í borðstofu.
Baðherbergi: Flísalagt í hólf og gólf. Nýlegt baðkar og blöndunartæki. Baðinnrétting með neðri skáp, nýlegum vaski ásamt speglaskáp fyrir ofan vask.
Svefnherbergi II: Gott barnaherbergi.
Svefnherbergi III: Rúmgott með fataskáp.
Geymsla / Herbergi í Risi: Herbergi sem notað er í útleigu í dag. Með aðgang að klósetti og litlu eldhúsi. er 7,5fm, skráð 15,5fm skv. fasteignaskráningu.
Sérgeymsla: Lítil geymsla er á jarðhæð (undir stiga)
Sameign: Sameiginlegt þvottahús er á jarðhæð.
Útgengt er í fallegan og gróinn tyrfðan garð til suðurs frá jarðhæð hússins.
Falleg eign í vel viðhöldnu húsi í miðborginni með auka herbergi í risi sem getur ma. nýst til útleigu. Frábær staðsetning í miðborginni þar sem mikil uppbygging hefur og á sér stað undanfarin misseri. Menningin blómstrar í miðborginni og það að búa í göngufæri við fjölbreytta flóru kaffi- og veitingahúsa, leikhúsa, kvikmyndahús og tónlistarhúsa ásamt fjölbreyttir flóru verslunar og þjónustu býður upp á einstaka möguleika og lífsgæði. Þá er stutt í falleg útivistarsvæði og skóla á öllum stigum.
Fyrir frekari upplýsingar hafið samband við Hreiðar Levý, lögg. fasteignasala í síma 661-6021, hreidar@betristofan.is - Telmu Rut Frímannsdóttur í síma 772-555, telma@betristofan.is - Þórhalli Biering í síma 896-8232, thorhallur@betristofan.is
SMELLIÐ HÉR TIL AÐ SJÁ VIDEÓ AF EIGNINNI
Fasteignmat fyrir árið 2026 skv. HMS er kr. 99.500.000kr.
Framkvæmdir utanhúss árið 2022
- Gler og gluggar í stofu og forstofuherbergi voru endurnýjaðir.
- Gler og gluggar í eldhúsi, borðstofu, svefnherbergjum I og II voru yfirfarnir og málaðir að utan.
- Gluggi í geymslu í risi endurnýjaður (velux).
- Þak yfirfarið skipt um þakjárn og pappa.
- Húsið múrviðgert að utan.
- Útihurðir yfirfarnar og málaðar.
- Þakrennur endurnýjaðar.
2019
- Skólplagnir í sameign, gangi og þvottahúsi voru endurnýjaðar. (Skv. söluyfirliti fyrri eiganda).
Frábær staðsetning í miðbæ Reykjavíkur með skóla á öllum stigum í nágrenninu ásamt fjölbreyttri verslun og þjónustu sem miðbær Reykjavíkur hefur upp á að bjóða. Mikil uppbygging hefur átt sér stað á síðustu misserin á austari hluta miðbæjarins. Þar ber hæst að nefna Hlemm mathöll og Hlemmtorg sem er langt komið. Þá er stutt gönguferð í Sundhöllina, útivistarparadísina á Klambratúni og menningarsetrið Kjarvalstaði þar sem hægt er að njóta fjölbreyttra listasýninga ásamt því að setjast niður á Klambrar Bistrø sem býður upp á matseðil sem er innblásinn af skandinavískri matarhefð, fjölbreyttu úrvali af kruðeríi og hágæða kaffi.
Nánari lýsing:
Anddyri: Viðarparket á gólfi. Gengið í eitt herbergjana úr anddyri, gestasalerni og inn á gang.
Svefnherbergi I: Innaf anddyri. Rúmgott með fataskáp. Möguleiki á að nýta sem útleiguherbergi með aðgengi að salerni.
Gestasalerni: Nýlegur vaskur og blöndunartæki, skápar m/speglahurð, og salerni.
Eldhús: Rúmgott eldhús með fallegri og vel viðhaldinni upprunalegri eldhúsinnréttingu og nýlegri borðplötu. Efri og neðri skápar með innbyggðum nýlegum Husqvarna blástursofni, spanhelluborði og innbyggðri uppþvottavél frá Siemens. Flísar á milli skápa nýlega endurnýjaðar á smekklegan hátt. Möguleiki er að færa eldhús inn í aðra stofuna og hefur það verið framkvæmt í hluta af íbúðum í húsalengjunni.
Hol/gangur: Tengir saman flest rými íbúðar.
Stofa: Rúmgóð, falleg og björt stofa. Samliggjandi og opin við borðstofu.
Borðstofa: Rúmgóð og björt borðstofa. Opin og samliggjandi við stofu. Útgengt úr borðstofu út á svalir til suðurs. Möguleiki á að færa eldhús í borðstofu.
Baðherbergi: Flísalagt í hólf og gólf. Nýlegt baðkar og blöndunartæki. Baðinnrétting með neðri skáp, nýlegum vaski ásamt speglaskáp fyrir ofan vask.
Svefnherbergi II: Gott barnaherbergi.
Svefnherbergi III: Rúmgott með fataskáp.
Geymsla / Herbergi í Risi: Herbergi sem notað er í útleigu í dag. Með aðgang að klósetti og litlu eldhúsi. er 7,5fm, skráð 15,5fm skv. fasteignaskráningu.
Sérgeymsla: Lítil geymsla er á jarðhæð (undir stiga)
Sameign: Sameiginlegt þvottahús er á jarðhæð.
Útgengt er í fallegan og gróinn tyrfðan garð til suðurs frá jarðhæð hússins.
Falleg eign í vel viðhöldnu húsi í miðborginni með auka herbergi í risi sem getur ma. nýst til útleigu. Frábær staðsetning í miðborginni þar sem mikil uppbygging hefur og á sér stað undanfarin misseri. Menningin blómstrar í miðborginni og það að búa í göngufæri við fjölbreytta flóru kaffi- og veitingahúsa, leikhúsa, kvikmyndahús og tónlistarhúsa ásamt fjölbreyttir flóru verslunar og þjónustu býður upp á einstaka möguleika og lífsgæði. Þá er stutt í falleg útivistarsvæði og skóla á öllum stigum.
Fyrir frekari upplýsingar hafið samband við Hreiðar Levý, lögg. fasteignasala í síma 661-6021, hreidar@betristofan.is - Telmu Rut Frímannsdóttur í síma 772-555, telma@betristofan.is - Þórhalli Biering í síma 896-8232, thorhallur@betristofan.is
Gjöld sem kaupandi þarf að standa straum af ef að kaupum verður:
1. Stimpilgjald af fasteignamati fasteignar er 0.8%, en 0,4% fyrir fyrstu kaup og 1,6% fyrir lögaðila.
2. Þinglýsingargjald: kaupsamningi, skuldabréfi, veðleyfi, afsali o.s.frv. er kr. 3.800 af hverju skjali.
3. Lántökukostnaður samkvæmt verðskrá viðkomandi lánastofnunar.
4. Umsýslugjald til fasteignasölu skv. gjaldskrá.
Ár
Fasteignamat
Kaupverð
Stærð
Fermetraverð
10. júl. 2023
74.900.000 kr.
84.000.000 kr.
131.5 m²
638.783 kr.
Byggt á upplýsingum úr Þjóðskrá Íslands frá 2006-2026