Löggiltir fasteignasalar innan Félags fasteignasala:
Óskar Rúnar Harðarson
Jason Guðmundsson
Þröstur Þórhallsson
Ólafur Finnbogason
Kjartan Ísak Guðmundsson
Gústaf Adolf Björnsson
Viðar Böðvarsson
Rakel Viðarsdóttir
Vala Georgsdóttir
Ragnheiður Pétursdóttir
Böðvar Þ. Eggertsson
Vista
fjölbýlishús

Hringhamar 31 (503)

221 Hafnarfjörður

77.900.000 kr.

814.854 þ.kr./m2
Fasteignanúmer

F2527138

Fasteignamat

69.700.000 kr.

Brunabótamat

64.280.000 kr.

Áhvílandi

0 kr.

Arion banki – Reikna lán
Upplýsingar
svg
Byggt 2023
svg
95,6 m²
svg
3 herb.
svg
1 baðherb.
svg
2 svefnh.
svg
Sameiginl. inngangur
svg
Lyfta
Opið hús: 17. janúar 2026 kl. 13:00 til 13:30

Lýsing

Miklaborg kynnir: Glæsileg svansvottuð fjölbýlishús við Hringhamar 31-33 með 2ja til 4ra herbergja íbúðum á góðum stað í hinu nýja Hamraneshverfi í Hafnarfirði. Svansvottun gerir m.a. auknar kröfur um birtuskilyrði, loftræstingu og hljóðvist.

- Sérmerkt stæði í bílakjallara fylgir flestum íbúðum. Möguleiki á rafbílahleðslu er við hvert stæði.

- Vandaðar innréttingar frá Axis og tæki frá Ormsson. Allar innréttingar og skápar ná upp í loft.

- Sérstakt loftræstikerfi í öllum íbúðum.

- Íbúðir afhendast fullbúnar en án gólfefna.

- Tilbúið til afhendingar.

Bókaðu skoðun - Sýnum samdægurs

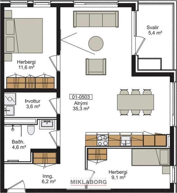
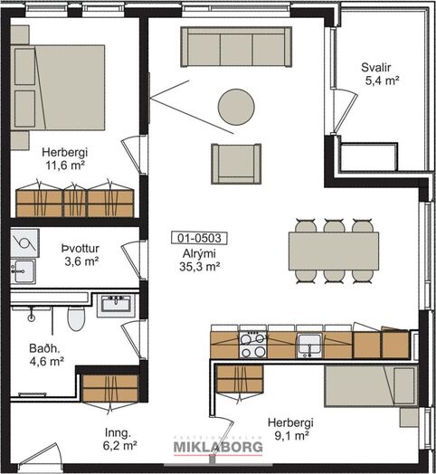
Íbúð 503 er vel skipulögð 3ja herbergja 95,6 fm íbúð á 5. hæð. Eigninni fylgir stæði merkt B23 í bílakjallara.


Nánari lýsing:

Eignin skiptist í anddyri með fataskáp. Inn af anddyri er á aðra hönd svefnherbergi með fataskáp og baðherbergi með sturtu og vandaðri innréttingu. Sér þvottahús. Rúmgott hjónaherbergi með fataskáp er inn af alrými. Eldhús er í opnu alrými sem samanstendur af borðstofu og stofu með útgengi út á svalir.

Sjá nánar á heimasíðu verkefnis


Hamraneshverfi er vel staðsett hverfi í mikilli uppbyggingu með skóla, leiksskóla og falleg útivistarsvæði í í næsta nágreni.

Byggingaraðili er Mótx ehf sem er traustur verktaki og hefur starfað óslitið frá stofnun árið 2005. Mótx hefur hlotið viðurkenningar, bæði fyrir hönnun bygginga og frágang lóða á nýbyggingarsvæðum.

Nánari upplýsingar veita

Sæþór Ólafsson löggiltur fasteignasali í síma 855-5550 eða saethor@miklaborg.is

Óskar Sæmann Axelsson löggiltur fasteignasali í síma 691-2312 eða osa@miklaborg.is

Stefán Jóhann Stefánsson löggitlur fasteignasali í síma 695-2634 eða stefan@miklaborg.is


Miklaborg fasteignasala

Miklaborg fasteignasala

Lágmúli 4, 108 Reykjavík
Miklaborg fasteignasala

Miklaborg fasteignasala

Lágmúli 4, 108 Reykjavík