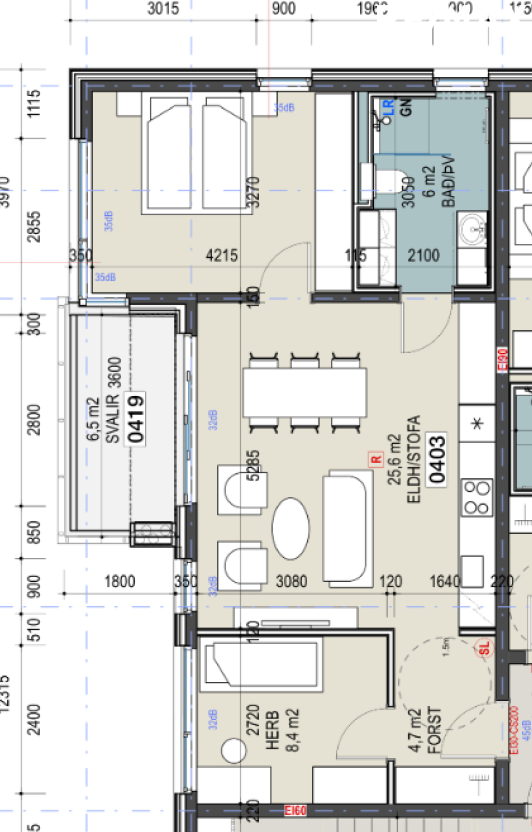
Arkarvogur, 104 Reykjavík