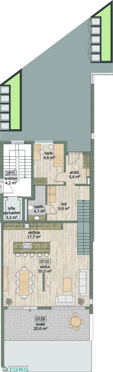
Fossvogsvegur, 108 Reykjavík