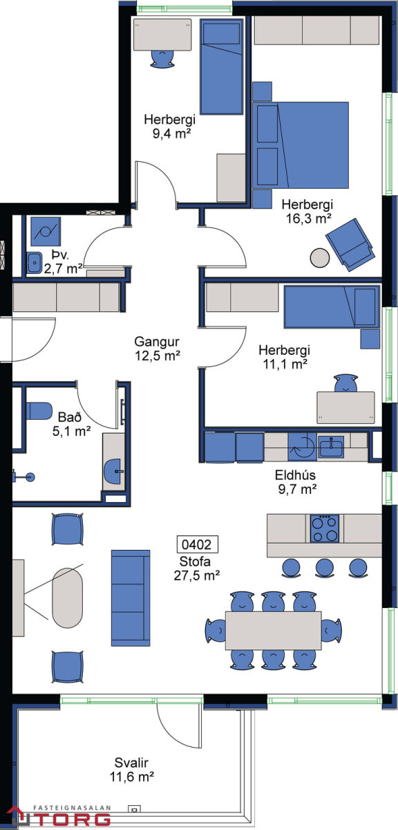
Bolholt, 105 Reykjavík