Löggiltir fasteignasalar innan Félags fasteignasala:
Hannes Steindórsson
Bogi Molby Pétursson
Guðrún Antonsdóttir
Heimir Hallgrímsson
Hrafnkell P. H. Pálmason
Viðar Marinósson
Elías Haraldsson
Kristján Þórir Hauksson
Albert Bjarni Úlfarsson
Ragnar Þorsteinsson
Þórey Ólafsdóttir
Andri Freyr Halldórsson
Upplýsingar
Verðsaga
Byggt 2004
107,6 m²
4 herb.
1 baðherb.
3 svefnh.
Þvottahús
Útsýni
Sameiginl. inngangur
Bílastæði
Lyfta
Laus strax
Opið hús: 19. janúar 2026
kl. 17:00
til 17:30
Opið hús: Norðurbrú 6, 210 Garðabær, Íbúð merkt: 01 02 07. Eignin verður sýnd mánudaginn 19. janúar 2026 milli kl. 17:00 og kl. 17:30.
Lýsing
Guðrún Antonsdóttir fasteignasali og Lind fasteignasala kynna Fallega 4ra herbergja íbúð á 2.hæð á vinsælum stað með sjávarútsýni. Yfirbyggðar svalir og sér bílastæði í lokuðum bílakjallara. Húsið er byggt af ÞG Verk. Hægt er að fá afhent fljótlega eftir kaupsamning
Sjá myndskeið af húsinu að utan frá heimasíðu ÞG, ýtið hér.
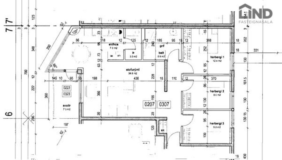
Eignin skiptist í: Forstofu, eldhús, stofu, þrjú svefnherbergi, baðherbergi, þvottahús og geymslu. Auk bílastæðis í bílakjallara.
Nánari lýsing:
Forstofa með fataskáp og flísum á gólfi.
Eldhús með fallegri viðar innréttingu með efri og neðri skápum, bakaraofn í vinnuhæð, innbyggð uppþvottavél og ísskápur, span helluborð og háfur. Parket á gólfi.
Stofan er rúmgóð og björt og opin inn í eldhúskrók. Parket á gólfi. Gengið er út á yfirbyggðar svalir frá stofu sem snúa í suður.
Svefnherbergin er þrjú með fataskápum og parketi á gólfi.
Baðherbergið er mjög rúmgott með innréttingu undir og við handlaug, sturtuklefa, upphengdu salerni, ofni og flísum á gólfi og veggjum að mestu.
Þvottahús er innan eldhús með flísum á gólfi. Aðstaða fyrir þvottavél í vinnuhæð. Létt innrétting undir og við þvottavél. Stálvaskur.
Sérgeymsla í sameign 8,2fm
Bílastæði B32 í lokuðu bílastæðahúsi. Tengi fyrir hrafhleðslu er við bílastæði. Sameiginleg þvotta aðstaða.
Hjóla- og vagnageymsla er við aðalinngang
Húsgjöld eignarinnar eru 29.288kr á mánuði , innifalið í húsgjöldum er almennur rekstur, hiti á íbúð, rafmagn í sameign, húseigandatrygging og þrif sameignar.
Frekari upplýsingar veitir Guðrún Antonsdóttir fasteignasali í síma 621-2020 eða á gudrun@fastlind.is
Gjöld sem kaupandi þarf að standa straum af vegna kaupanna:
1. Stimpilgjald af kaupsamningi - 0.8% af heildarfasteignamati / 1.6% fyrir lögaðila, (0.4% við fyrstu kaup einstaklinga).
2. Þinglýsingagjald af kaupsamningi, veðskuldabréfi, veðleyfi o.fl.- kr. 2.700 af hverju skjali.
3. Lántökugjald lánastofnunar - almennt kr. 50.000 - 75.000. Sjá nánar á heimsíðum lánastofnanna.
4. Umsýsluþóknun til fasteignasölu kr. 74.900 kr.
Sjá myndskeið af húsinu að utan frá heimasíðu ÞG, ýtið hér.
Eignin skiptist í: Forstofu, eldhús, stofu, þrjú svefnherbergi, baðherbergi, þvottahús og geymslu. Auk bílastæðis í bílakjallara.
Nánari lýsing:
Forstofa með fataskáp og flísum á gólfi.
Eldhús með fallegri viðar innréttingu með efri og neðri skápum, bakaraofn í vinnuhæð, innbyggð uppþvottavél og ísskápur, span helluborð og háfur. Parket á gólfi.
Stofan er rúmgóð og björt og opin inn í eldhúskrók. Parket á gólfi. Gengið er út á yfirbyggðar svalir frá stofu sem snúa í suður.
Svefnherbergin er þrjú með fataskápum og parketi á gólfi.
Baðherbergið er mjög rúmgott með innréttingu undir og við handlaug, sturtuklefa, upphengdu salerni, ofni og flísum á gólfi og veggjum að mestu.
Þvottahús er innan eldhús með flísum á gólfi. Aðstaða fyrir þvottavél í vinnuhæð. Létt innrétting undir og við þvottavél. Stálvaskur.
Sérgeymsla í sameign 8,2fm
Bílastæði B32 í lokuðu bílastæðahúsi. Tengi fyrir hrafhleðslu er við bílastæði. Sameiginleg þvotta aðstaða.
Hjóla- og vagnageymsla er við aðalinngang
Húsgjöld eignarinnar eru 29.288kr á mánuði , innifalið í húsgjöldum er almennur rekstur, hiti á íbúð, rafmagn í sameign, húseigandatrygging og þrif sameignar.
Frekari upplýsingar veitir Guðrún Antonsdóttir fasteignasali í síma 621-2020 eða á gudrun@fastlind.is
Gjöld sem kaupandi þarf að standa straum af vegna kaupanna:
1. Stimpilgjald af kaupsamningi - 0.8% af heildarfasteignamati / 1.6% fyrir lögaðila, (0.4% við fyrstu kaup einstaklinga).
2. Þinglýsingagjald af kaupsamningi, veðskuldabréfi, veðleyfi o.fl.- kr. 2.700 af hverju skjali.
3. Lántökugjald lánastofnunar - almennt kr. 50.000 - 75.000. Sjá nánar á heimsíðum lánastofnanna.
4. Umsýsluþóknun til fasteignasölu kr. 74.900 kr.
Ár
Fasteignamat
Kaupverð
Stærð
Fermetraverð
12. jún. 2015
32.600.000 kr.
38.000.000 kr.
107.6 m²
353.160 kr.
19. okt. 2010
27.900.000 kr.
28.000.000 kr.
107.6 m²
260.223 kr.
Byggt á upplýsingum úr Þjóðskrá Íslands frá 2006-2026