Upplýsingar
Verðsaga
Byggt 2025
67,4 m²
2 herb.
1 baðherb.
1 svefnh.
Þvottahús
Útsýni
Sameiginl. inngangur
Hjólastólaaðgengi
Lyfta
Opið hús: 17. janúar 2026
kl. 16:00
til 16:30
Opið hús: Garðabraut 1 íb101 , 300 Akranes, Íbúð merkt: 01 01 01. Eignin verður sýnd laugardaginn 17. janúar 2026 milli kl. 16:00 og kl. 16:30.
Lýsing
Háborg fasteignasala og Bestla byggingarfélag kynna: Garðabraut 1 Akranesi – í nýju og glæsilegu íbúðarhverfi. Húsið er lyftuhús með bílageymslu.
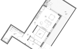
Íbúð 101 – Tveggja herbergja íbúð á 1.hæð, staðsett í nýju og glæsilegu íbúðarhverfi. Að stærð 67,4 fm og þar af 5 fm geymsla. Íbúðin skipar forstofu, hol, hjónaherbergi, baðherbergi með aðstöðu fyrir þvottavél/þurrkara og alrými opið með eldhúsi, borðstofu og stofu. Útgengt út á stórann pall úr stofu sem umvefur íbúðinna í L, að stærð 29,9 fm. Íbúð 101 hefur sérinngang á norðurhlið hússins við bílastæði á 1. hæð. Eigninni fylgir EKKI stæði í bílakjallara.
Íbúðin skilast fullbúin án megin gólfefna, nema í votrými eru flísar. Áætluð afhending í september 2025.
Helstu kostir íbúðar.
Heimasíða Garðabraut 1
Allar upplýsingar um eignina veita: Katla Hanna Steed löggiltur fasteignasali í síma 822 1661 eða katla@haborg.is, Jórunn Skúladóttir löggiltur fasteignasali í síma 845 8958 eða jorunn@haborg.is og Kristín Rós Magnadóttir löggiltur fasteignasali í síma 860-2078 eða kristin@haborg.is.
Almennt Fjölbýlishúsið að Garðabraut er staðsett í nýju og glæsilegu íbúðarhverfi á Akranesi. Tvö stigahús eru í byggingunni, hvort með lyftu og kjallara. Byggingin er 4 og 7 hæðir með samtals 50 íbúðum af mismunandi stærðum – tveggja, þriggja og fjögurra herbergja. Í kjallara er bílageymsla með merktum stæðum fyrir flestar íbúðir. Aðgengi að sérgeymslum, hjóla- og vagnageymslu, ásamt tæknirýmum. Aðalinngangur hússins er á 1. hæð. Flestar íbúðir eru með aukinni lofthæð og allar með svölum eða sérafnotareit. Úr mörgum íbúðum er fallegt útsýni og þakíbúðir bjóða upp á stórar þaksvalir með möguleika á rafmagnspotti. Flestum íbúðum fylgir stæði í bílakjallara og stærri íbúðum fylgja tvö stæði.
Á Lóð eru hellulögð svæði og hitalagnir í gönguleiðum og bílastæðum fyrir hreyfihamlaða. Undirbúið er fyrir rafhleðslustöðvar og djúpgámar eru staðsettir á lóðinni.
Eldhús eru með innréttingum frá GKS/Nobilia í ljósgráum lit. Efri skápar eru vegghengdir með LED-lýsingu undir. Borðplötur eru úr HPL. Eldhústæki frá AEG fylgja – spanhelluborð og bakarofn með innbyggðum hitamæli. Gufugleypir er annaðhvort innbyggður í efri skáp eða sem eyju-/veggháfur frá Airforce/Elica. Gert er ráð fyrir innbyggðum kæli, frysti og uppþvottavél og fylgja hurðaforstykki í stíl. Blöndunartæki frá Grohe eru hitastýrð og vaskur úr stáli er límdur ofan á borðplötuna.
Baðherbergi eru flísalögð, gólf eru flísalögð með 60x60 cm flísum og hluti veggja flísalagður upp í loft. Innréttingar eru í ljósgráum lit með slitsterkri HPL borðplötu og hvítum vaski. Grohe blöndunartæki eru hitastýrð og sturtan afmörkuð með gleri. Salerni er vegghengt með innbyggðum vatnskassa.
Þvottahús Í sumum íbúðum er sér þvottaaðstaða, annars er hún inn af baðherbergi. Tengi eru fyrir þvottavél og barkalausan þurrkara með rakaþétti. Gólf er flísalagt.
Hita- og loftræstikerfi. Íbúðir og sameign eru hitaðar með ofnakerfi samkvæmt teikningum. Allar íbúðir eru með loftræstikerfi með varmaendurvinnslu, þar sem loft er sogið úr eldhúsi og baðherbergi og ferskt loft dælt inn í önnur rými. Kerfið endurvinnur allt að 85% varma og síar loftið, sem dregur úr svifryki og frjókornum. Loftræstisamstæður eru staðsettar á svölum.
Allar nánari upplýsingar veita Katla Hanna Steed löggiltur fasteignasali í síma 822 1661 eða katla@haborg.is, Jórunn Skúladóttir löggiltur fasteignasali í síma 845 8958 eða jorunn@haborg.is og Kristín Rós Magnadóttir löggiltur fasteignasali í síma 860-2078 eða kristin@haborg.is.
Íbúð 101 – Tveggja herbergja íbúð á 1.hæð, staðsett í nýju og glæsilegu íbúðarhverfi. Að stærð 67,4 fm og þar af 5 fm geymsla. Íbúðin skipar forstofu, hol, hjónaherbergi, baðherbergi með aðstöðu fyrir þvottavél/þurrkara og alrými opið með eldhúsi, borðstofu og stofu. Útgengt út á stórann pall úr stofu sem umvefur íbúðinna í L, að stærð 29,9 fm. Íbúð 101 hefur sérinngang á norðurhlið hússins við bílastæði á 1. hæð. Eigninni fylgir EKKI stæði í bílakjallara.
Íbúðin skilast fullbúin án megin gólfefna, nema í votrými eru flísar. Áætluð afhending í september 2025.
Helstu kostir íbúðar.
- Aukin lofthæð
- Sérinngangur
- Verönd 29,9 fm
- Innrétting í eldhúsi frá GKS/Nobilia
- Eldhúsið með HPL borðplötu og tækjum frá AEG.
- Votrými flísalögð
- Birtugæði og loftgæði
- Nýtt glæsilegt íbúðarhverfi
- Vandaður verktaki
Heimasíða Garðabraut 1
Allar upplýsingar um eignina veita: Katla Hanna Steed löggiltur fasteignasali í síma 822 1661 eða katla@haborg.is, Jórunn Skúladóttir löggiltur fasteignasali í síma 845 8958 eða jorunn@haborg.is og Kristín Rós Magnadóttir löggiltur fasteignasali í síma 860-2078 eða kristin@haborg.is.
Almennt Fjölbýlishúsið að Garðabraut er staðsett í nýju og glæsilegu íbúðarhverfi á Akranesi. Tvö stigahús eru í byggingunni, hvort með lyftu og kjallara. Byggingin er 4 og 7 hæðir með samtals 50 íbúðum af mismunandi stærðum – tveggja, þriggja og fjögurra herbergja. Í kjallara er bílageymsla með merktum stæðum fyrir flestar íbúðir. Aðgengi að sérgeymslum, hjóla- og vagnageymslu, ásamt tæknirýmum. Aðalinngangur hússins er á 1. hæð. Flestar íbúðir eru með aukinni lofthæð og allar með svölum eða sérafnotareit. Úr mörgum íbúðum er fallegt útsýni og þakíbúðir bjóða upp á stórar þaksvalir með möguleika á rafmagnspotti. Flestum íbúðum fylgir stæði í bílakjallara og stærri íbúðum fylgja tvö stæði.
Á Lóð eru hellulögð svæði og hitalagnir í gönguleiðum og bílastæðum fyrir hreyfihamlaða. Undirbúið er fyrir rafhleðslustöðvar og djúpgámar eru staðsettir á lóðinni.
Eldhús eru með innréttingum frá GKS/Nobilia í ljósgráum lit. Efri skápar eru vegghengdir með LED-lýsingu undir. Borðplötur eru úr HPL. Eldhústæki frá AEG fylgja – spanhelluborð og bakarofn með innbyggðum hitamæli. Gufugleypir er annaðhvort innbyggður í efri skáp eða sem eyju-/veggháfur frá Airforce/Elica. Gert er ráð fyrir innbyggðum kæli, frysti og uppþvottavél og fylgja hurðaforstykki í stíl. Blöndunartæki frá Grohe eru hitastýrð og vaskur úr stáli er límdur ofan á borðplötuna.
Baðherbergi eru flísalögð, gólf eru flísalögð með 60x60 cm flísum og hluti veggja flísalagður upp í loft. Innréttingar eru í ljósgráum lit með slitsterkri HPL borðplötu og hvítum vaski. Grohe blöndunartæki eru hitastýrð og sturtan afmörkuð með gleri. Salerni er vegghengt með innbyggðum vatnskassa.
Þvottahús Í sumum íbúðum er sér þvottaaðstaða, annars er hún inn af baðherbergi. Tengi eru fyrir þvottavél og barkalausan þurrkara með rakaþétti. Gólf er flísalagt.
Hita- og loftræstikerfi. Íbúðir og sameign eru hitaðar með ofnakerfi samkvæmt teikningum. Allar íbúðir eru með loftræstikerfi með varmaendurvinnslu, þar sem loft er sogið úr eldhúsi og baðherbergi og ferskt loft dælt inn í önnur rými. Kerfið endurvinnur allt að 85% varma og síar loftið, sem dregur úr svifryki og frjókornum. Loftræstisamstæður eru staðsettar á svölum.
Allar nánari upplýsingar veita Katla Hanna Steed löggiltur fasteignasali í síma 822 1661 eða katla@haborg.is, Jórunn Skúladóttir löggiltur fasteignasali í síma 845 8958 eða jorunn@haborg.is og Kristín Rós Magnadóttir löggiltur fasteignasali í síma 860-2078 eða kristin@haborg.is.
Ár
Fasteignamat
Kaupverð
Stærð
Fermetraverð
7. jan. 2021
65.550.000 kr.
58.000.000 kr.
523 m²
110.899 kr.
18. apr. 2017
51.750.000 kr.
42.500.000 kr.
523 m²
81.262 kr.
Byggt á upplýsingum úr Þjóðskrá Íslands frá 2006-2026