Löggiltir fasteignasalar innan Félags fasteignasala:
Daníel Rúnar Elíasson
Vista
svg

75

svg

65  Skoðendur

svg

Skráð  16. jan. 2026

fjölbýlishús

Asparskógar 18 íbúð 310

300 Akranes

69.900.000 kr.

925.828 þ.kr./m2
Fasteignanúmer

F2519888

Fasteignamat

59.500.000 kr.

Brunabótamat

45.400.000 kr.

Áhvílandi

0 kr.

Arion banki – Reikna lán
Upplýsingar
svg
Byggt 2023
svg
75,5 m²
svg
3 herb.
svg
1 baðherb.
svg
2 svefnh.
svg
Bílastæði
svg
Lyfta

Lýsing

HÁKOT fasteignasala sími: 431-4045 / 899-4045 auglýsir 

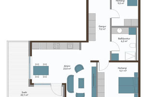
*** ASPARSKÓGAR 18  -  ÍBÚÐ 310 *** 3ja herbergja íbúð á þriðju hæð (75.5²) með sérinngangi ásamt stæði í bílakjallara (B-22)
Stórar svalir út frá stofu (22.1 m²)


Byggingaraðili: Ferrrum Fasteignir.
Hönnuður: Al-Hönnun (Runólfur Þór Sigurðsson). 
Afhendinartími: Kaupsamning
Fjölbýlishúsi með 40 íbúðum.  25 stæði í bílakjallara. 32 bílastæði innan lóðar. Sameiginleg hjóla/vgnageymsla. 2 lyftur.

NÁNARI UPPLÝSINGAR UM:  ASPARSKÓGA 18



Íbúðin afhendist fullbúin með gólfefnum ásamt eldhústækjum (Ísskáp/frystir, uppþvottavél, veggofn, helluborð eru frá AEG. Vifta frá Elica).
Eldhúsinnrétting er þýsk, Nobilia frá GKS. Fataskápar frá GKS. Blöndunartæki frá Tengi. Sameiginleg vagn og hjólageymsla á hæðinni.
Húsið er einangrað og klætt með ál- og timburklæðningu, kaldir steinsteyptir veggir eru málaðir.  Lóð fullbúin ásamt bílastæðum. Í húsinu eru 2 lyftur. Stæði í bílakjallara fylgir 26 íbúðum í húsinu.


Forstofa (flísar, skápur).
Hol (harðparket).
Eldhús (harðparket, hnotu/hvít innrétting, ofn, Span helluborð, innbyggður ísskápur/frystir, helluborð, uppþvottavél, vifta, opið að stofu).
Stofa (harðparket, opið að eldhúsi, útgangur út á svalir).
Svefnherbergin (harðparket, fataskápur). 
Herbergi (harðparket, skápur).
Baðherbergi (flísar, flísar á veggjum, sturta í gólf, hvít innrétting, upphengt wc, handklæðaofn, tengi fyrir þvottavél).
Stæði (B-20) í bílakjallara fylgir þessari eign.
Sameiginleg hjóla- og vagnageymsla í jarðhæð

Það fylgir ekki geymsla þessari íbúð.

Kaupandi greiðir skipulagsgjald 0,3% af brunabótamáti þegar það verður lagt á íbúðina.

Eignin afhendist skv meðfylgjandi skilalýsingu.

Myndir gætu verið úr annari samskonar íbúð.

BÓKIÐ SKOÐUN HJÁ: Daníel Rúnar Elíasson, löggiltur fasteignasali, s: 899-4045 - hakot@hakot.is

Smelltu hér til að fylgja okkur á Facebook
Smelltu hér til að fylgja okkur á Instagram

************
Um skoðunar- og aðgæsluskyldu:
Í lögum um fasteignakaup nr. 40/2002 er kveðið á um ríka skoðunarskyldu kaupenda á fasteignum. Fasteignasalan Hákot bendir væntanlegum kaupendum á að kynna sér vel ástand fasteigna við skoðun og fyrir tilboðsgerð og ef þurfa þykir að leita til sérfræðinga um nánari ástandsskoðun.

Forsendur söluyfirlits: 
Söluyfirlit er samið af fasteignasala í samræmi við ákvæði laga nr. 70/2015. Þær upplýsingar sem fram koma í söluyfirliti þessu eru sóttar í opinberar skrár, til seljanda sjálfs og eftir atvikum til húsfélags. Seljandi veitir upplýsingar um eign í samræmi við upplýsingaskyldu laga um fasteignakaup nr. 40/2002. Fasteignasali metur eignina með sjónskoðun.
Fasteignasali getur ekki fullyrt um ástand og eiginleika þeirra hluta fasteigna sem ekki eru aðgengilegir og sjást ekki berum augum, t.d. lagnir, dren, skólp og þak.

Gjöld sem kaupandi þarf að standa straum af vegna kaupanna:  
1. Stimpilgjald af kaupsamningi - 0.8% af heildar fasteignamati / 1.6% fyrir lögaðila, (0.4% við fyrstu kaup einstaklinga).
2. Þinglýsingagjald af kaupsamningi, afsali, veðskuldabréfi, umboði, veðleyfi o.fl.- kr. 2.700 af hverju skjali.
3. Umsýslugjald kr. 49.600 (m/vsk).
4. Lántökugjald veðskuldabréfa samkvæmt gjaldskrá lánveitenda.
5. Ef um nýbyggingu er að ræða greiðir kaupandi skipulagsgjald, 0,3% af brunabótamáti, þegar það er lagt á

Fasteignasalan Hákot

Fasteignasalan Hákot

Kirkjubraut 12 (jarðhæð)300 Akranesi
phone
Fasteignasalan Hákot

Fasteignasalan Hákot

Kirkjubraut 12 (jarðhæð)300 Akranesi
phone