Löggiltir fasteignasalar innan Félags fasteignasala:
Hannes Steindórsson
Bogi Molby Pétursson
Guðrún Antonsdóttir
Heimir Hallgrímsson
Hrafnkell P. H. Pálmason
Viðar Marinósson
Elías Haraldsson
Kristján Þórir Hauksson
Albert Bjarni Úlfarsson
Ragnar Þorsteinsson
Þórey Ólafsdóttir
Andri Freyr Halldórsson
Upplýsingar
Verðsaga
Byggt 2008
220,4 m²
1 herb.
Sérinngangur
Lýsing
Lind fasteignasala kynnir í einkasölu tvö samliggjandi iðnaðarbil við Hellismýri 12 á Selfossi. Eigninar eru 110,8 m2 og 109,6 m2 sammtals 220,4 m2.
Allar nánari upplýsingar og ráðgjöf um eignina veitir Ísak V. Jóhannsson sími : 8225588 isak@fastlind.is
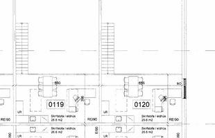
Endabilið með góðum gluggum á gafli, grunnflötur er 84 m2 og milliloft 25,6 m2. Hitt bilið er með 84 m2 grunnflöt og milliloft 26,6 m2 Lofthæð í bilunum er góð og innkeyrsludyr er 4m á breidd og 4,2 á hæð, með rafmagnsopnara, einnig eru gönguhurðir.
Í húsinu er 3ja fasa rafmagn. Salerni er á neðri hæð í báðum bilunum. Á efri hæðum er búið að útbúa kaffistofu/skrifstofu sem eru samliggjandi, með brunahurð á milli bila. Gólfhiti er á jarðhæðinni.
Í húsinu er 3ja fasa rafmagn. Malbikað bílaplan er við húsið og séreignaflötur framan við bilið.
Eignin Hellismýri 12 er skráð sem hér segir hjá FMR: Eign 231-2175 og 2312176m birt stærð á báðum eignunum er 220.4 fm. Bygg.stig og Matsstig, 4 Fokheld bygging 8 Tekið í notkun í byggingu.
Allar nánari upplýsingar og ráðgjöf um eignina veita Ísak V. Jóhannsson sími : 8225588 isak@fastlind.is og Viðar Marinósson.
-----------------------------------------------------------------------
Gjöld sem kaupandi þarf að standa straum af vegna kaupanna:
1. Stimpilgjald af kaupsamningi - 0.8% af heildarfasteignamati / 1.6% fyrir lögaðila
Fyrstu kaup - 0,4% af heildarfasteignamati
2. Þinglýsingagjald af kaupsamningi, veðskuldabréfi, veðleyfi o.fl.- kr. 2.700 af hverju skjali.
3. Lántökugjald lánastofnunar
4. Umsýsluþóknun til fasteignasölu, sbr.kauptilboð.
Allar nánari upplýsingar og ráðgjöf um eignina veitir Ísak V. Jóhannsson sími : 8225588 isak@fastlind.is
Endabilið með góðum gluggum á gafli, grunnflötur er 84 m2 og milliloft 25,6 m2. Hitt bilið er með 84 m2 grunnflöt og milliloft 26,6 m2 Lofthæð í bilunum er góð og innkeyrsludyr er 4m á breidd og 4,2 á hæð, með rafmagnsopnara, einnig eru gönguhurðir.
Í húsinu er 3ja fasa rafmagn. Salerni er á neðri hæð í báðum bilunum. Á efri hæðum er búið að útbúa kaffistofu/skrifstofu sem eru samliggjandi, með brunahurð á milli bila. Gólfhiti er á jarðhæðinni.
Í húsinu er 3ja fasa rafmagn. Malbikað bílaplan er við húsið og séreignaflötur framan við bilið.
Eignin Hellismýri 12 er skráð sem hér segir hjá FMR: Eign 231-2175 og 2312176m birt stærð á báðum eignunum er 220.4 fm. Bygg.stig og Matsstig, 4 Fokheld bygging 8 Tekið í notkun í byggingu.
Allar nánari upplýsingar og ráðgjöf um eignina veita Ísak V. Jóhannsson sími : 8225588 isak@fastlind.is og Viðar Marinósson.
-----------------------------------------------------------------------
Gjöld sem kaupandi þarf að standa straum af vegna kaupanna:
1. Stimpilgjald af kaupsamningi - 0.8% af heildarfasteignamati / 1.6% fyrir lögaðila
Fyrstu kaup - 0,4% af heildarfasteignamati
2. Þinglýsingagjald af kaupsamningi, veðskuldabréfi, veðleyfi o.fl.- kr. 2.700 af hverju skjali.
3. Lántökugjald lánastofnunar
4. Umsýsluþóknun til fasteignasölu, sbr.kauptilboð.
Ár
Fasteignamat
Kaupverð
Stærð
Fermetraverð
16. apr. 2019
11.950.000 kr.
16.500.000 kr.
110.8 m²
148.917 kr.
11. des. 2014
12.400.000 kr.
8.000.000 kr.
110.8 m²
72.202 kr.
27. feb. 2009
1.010.000 kr.
10.450.000 kr.
110.8 m²
94.314 kr.
Byggt á upplýsingum úr Þjóðskrá Íslands frá 2006-2026