Löggiltir fasteignasalar innan Félags fasteignasala:
Kristján Baldursson
Guðbjörg G. Sveinbjörnsdóttir
Sólveig Regína Biard
Kristín María Stefánsdóttir
Viktoría Rannveig Larsen
Aðalsteinn Jón Bergdal
Hallgrímur Óli Hólmsteinsson
Vista
fjölbýlishús

Laugaborg íbúð 505

105 Reykjavík

168.900.000 kr.

1.302.236 þ.kr./m2
Fasteignanúmer

F2537432

Fasteignamat

57.150.000 kr.

Brunabótamat

0 kr.

Áhvílandi

0 kr.

Arion banki – Reikna lán
Upplýsingar
svg
Byggt 2025
svg
129,7 m²
svg
4 herb.
svg
2 baðherb.
svg
3 svefnh.
svg
Þvottahús
svg
Sameiginl. inngangur
svg
Bílastæði
svg
Lyfta

Lýsing

Trausti fasteignasala kynnir Laugaborg  vandað og glæsilegt nýtt lyftufjölbýli við Kirkjusand. Íbúðir er fjölbreyttar að skipulagi frá 2ja til 4ra herbergja á 3 – 6 hæðum. Skjólgóður inngarður og sameiginlegur þakgarður bjóða upp á skemmtilegar stundir utandyra og útsýni til fjalla og sjávar. Íbúðirnar bjóða upp á vandaðar innréttingar, gólfhita, svalir eða sérafnotareiti og sjálfstætt loftræstikerfi er í þeim öllum. Svalalokun, samkvæmt íslenskum stöðlum, er á öllum svölum í úthring hússins.

Hlekkur á ítarlegar upplýsingar er hér.

Bílakjallari undir húsinu er stór og rúmgóður og verða rúmlega þúsund stæði og gott aðgengi að rafhleðslustöðvum. Íbúar hússins hafa aðgang að stæði í bílakjallara gegn hóflegu gjaldi.
115 íbúðir í íbúðakjarnanum á 3 til 6 hæðum og afhendast í 4 áföngum. Húsið er vel hannað þegar kemur að birtustigi og hverfist um skjólgóðan inngarð. Frábær staðsetning í nýju hverfi á Kirkjusandi, þar sem líflegur Laugardalurinn er í göngufæri með allt það sem hann hefur upp á að bjóða og örstutt í miðbæ Reykjavíkur. 
Afhending er fyrirhuguð í feb 2026 eða fyrr.

NÁNARI LÝSING:
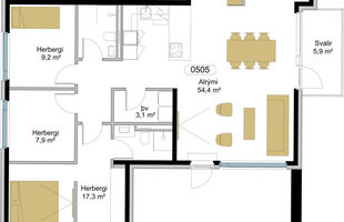
Laugaborg (íbúð 505) er glæsileg íbúð á 5. hæð með skjólgóðum suðursvölum auk þaksvala til suð-vesturs að stærð 37,5 fm.
Forstofa
 er með með fataskáp sem nær upp í loft.
Stofa/alrými er björt og rúmgóð með útgengi á svalir til suðurs og stórar þaksvalir til suð-vesturs. 
Sjónvarpshol sem væri hægt að nýta einnig sem skrifstofu.
Eldhús með fallegri sérsmíðaðri innréttingu með eldunareyju og quartz plötum á borðum. Span helluborð í eyju með innbyggðum gufugleypi. Bakaraofn með kjöthitamæli og sjálfhreinsibúnaði.
Hjónasvíta er rúmgóð með fataherbergi og baðherbergi með vönduðum sérsmíðuðum innréttingum frá Egger, quartz borðplötu og sturtu með Unidrain gólfrennupakka. 
Tvö auka svefnherbergi eru í eigninni. 
Baðherbergi er með vönduðum sérsmíðuðum innréttingum frá Egger, quartz borðplötu og sturtu með Unidrain gólfrennupakka.
Þvottahús með flísum á gólfum og upphengdum innréttingum.
Geymsla íbúðar er 12,3 fm
(Myndir á vef eru dæmi um útlit eignar en endurspegla ekki alltaf nákvæmlega auglýsta eign).

Bókið skoðun eða fáið nánari upplýsingar hjá:
Aðalsteinn Jón Bergdal lgf. í síma 767-0777 eða á netfanginu alli@trausti.is
Auðun Ólafsson lgf. í síma 894-1976 eða á netfanginu audun@trausti.is
Guðbjörg Sveinbjörnsdóttir lgf. í síma 899-5949 eða á netfanginu gudbjorg@trausti.is
Hallgrímur Hólmsteinsson lgf. í síma 896-6020 eða á netfanginu hallgrimur@trausti.is
Kristín María Stefánsdóttir lgf. í síma 837-1177 eða á netfanginu kristin@trausti.is
Kristján Baldursson lgf. í síma 867-3040 eða á netfanginu kristjan@trausti.is
Sólveig Regína Biard lgf. í síma 869-4879 eða á netfanginu solveig@trausti.is

Forsendur söluyfirlits: 
Söluyfirlit er samið af fasteignasala í samræmi við ákvæði laga nr. 70/2015. Þær upplýsingar sem fram koma í söluyfirliti þessu eru sóttar í opinberar skrár, til seljanda sjálfs og eftir atvikum til húsfélags. Seljandi veitir upplýsingar um eign í samræmi við upplýsingaskyldu laga um fasteignakaup nr. 40/2002. Fasteignasali sannreynir að þær upplýsingar séu réttar með sjónskoðun á eigninni. Fasteignasali getur ekki fullyrt um ástand og eiginleika þeirra hluta fasteigna sem ekki eru aðgengilegir og sjást ekki berum augum, t.d. lagnir, dren, skólp og þak. 

Skoðunarskylda: 
Í lögum um fasteignakaup nr. 40/2002 er kveðið á um ríka skoðunarskyldu kaupenda á fasteignum. Vill Trausti fasteignasala því benda væntanlegum kaupendum á að kynna sér vel ástand fasteigna fyrir kauptilboðsgerð og leita til þar til bærra sérfræðinga um nánari skoðun ef þurfa þykir.

Gjöld sem kaupandi þarf að standa straum af vegna kaupanna:
1. Stimpilgjald af kaupsamningi, fyrstu kaup (0,4%), almenn kaup (0,8%), lögaðilar (1,6%) af heildarfasteignamati.
2. Þinglýsingargjald af kaupsamningi, veðskuldabréfi, mögulegu veðleyfi o.fl. - kr. 3.800 af hverju skjali.
3. Lántökugjald lánastofnunar er skv. verðskrá viðkomandi lánastofnunar. Nánari upplýsingar á t.d. heimasíðu lánastofnana.
4. Umsýslugjald til fasteignasölu skv. kauptilboði.

img
Hallgrímur Óli Hólmsteinsson
Lögg.fasteignasali innan félags fasteignasala
Trausti fasteignasala
Vegmúla 4, 108 Reykjavík
Trausti fasteignasala

Trausti fasteignasala

Vegmúla 4, 108 Reykjavík
phone
img

Hallgrímur Óli Hólmsteinsson

Vegmúla 4, 108 Reykjavík
Trausti fasteignasala

Trausti fasteignasala

Vegmúla 4, 108 Reykjavík
phone

Hallgrímur Óli Hólmsteinsson

Vegmúla 4, 108 Reykjavík