Löggiltir fasteignasalar innan Félags fasteignasala:
Finnbogi Hilmarsson
Gunnlaugur A. Björnsson
Brynjólfur Snorrason
Ragnar Þorgeirsson
Sigríður Lind Eyglóardóttir
Ásdís Írena Sigurðardóttir
Elsa Björg Þórólfsdóttir
Upplýsingar
Verðsaga
svg
Byggt 1986
svg
302,7 m²
svg
6 herb.
svg
2 baðherb.
svg
5 svefnh.
svg
Þvottahús
svg
Bílskúr
Opið hús: 28. apríl 2026 kl. 17:00 til 17:30

Opið hús: Hrauntunga 6, 220 Hafnarfjörður. Eignin verður sýnd þriðjudaginn 28. apríl 2026 milli kl. 17:00 og kl. 17:30.

Lýsing

Heimili fasteignasala og Sigríður Lind fasteignasali kynna fallegt fjölskylduhús á tveimur hæðum á frábærum stað í Hafnarfirði. Fimm svefnherbergi. Fallegt útsýni, stórar svalir og tvöfaldur bílskúr. Eignin er skráð 302,7 fm, þar af bílskúr 49,6 fm.  

** Opið hús þriðjudag 28.april kl 17:00- 17:30, eignin verður ekki sýnd fyrir opið hús ** 


Nánari lýsing neðri hæð. 
Forstofa með flísum á gólfi og innbyggðum fataskápum.
Stofa/borðstofa í opnu og björtu rými með glugga á tvo vegu, gegnheilt parketi á gólfi. Glæsilegur arinn gerir rýmið sérlega notalegt. Útgengt út í garð.
Eldhús rúmgott með veglegri hvítri innréttingu og góðu skápaplássi. Granit borðplata. Stæði fyrir uppþvottavél. Ofn í vinnuhæð ásamt helluborði með viftu yfir. Stór skápur með rennihurðum. Fallegar flísar á gólfi, hitalögn í gólfi. Tveir gluggar. 
Búr/ geymsla er við eldhúsið með sérsmíðuðum skápum og þaðan innangengt í bílskúr. Flísar á gólfi.
Hjónaherbergi með gegnheilu parketi á gólfi og innbyggðum fataskáp yfir heilan vegg.
Herbergi II með gegnheilu parketi á gólfi.
Baðherbergi falleg hvít innrétting, hornbaðkar og sturtuklefi.  Flísar á gólfi og á veggjum að lofti. Gluggi með opnanlegu fagi.
Þvottahús Góð ljós innrétting með skolvaski. Ágæt vinnuaðstaða Útgengi út á hellulagða stétt, þvottasnúrur.
Bílskúrinn er tvöfaldur. Heitt/kalt vatn og skolvaskur. Rafdrifin opnun á innkeyrsludyrum. Bílaplanið er steypt og lagt hitalögn. Útgengi út á hellulagða stétt að aftanverðu. 
Geymsla með hillum er inn af bílskúr.
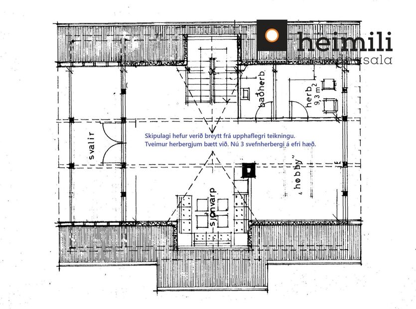
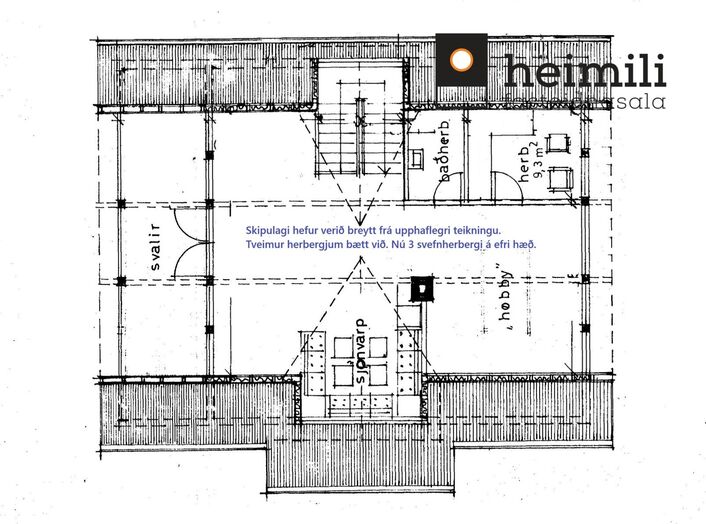
Nánari lýsing efri hæð
Efri hæð er að hluta til undir súð þ.e nýtanlegir fermetrar fleiri en birt stærð gefur til kynna. 
Fjölskyldurými gengið er upp á efri hæð um veglegan stiga og komið í rúmgott rými með parketi á gólfi. Stórir gluggar til suðurs og vesturs og útgengi á stórar svalir með útsýni til sjávar.
Snyrting með hvítri innréttingu og flísum á gólfi og veggjum. (Mögulegt að koma fyrir sturtu)
Herbergi III með flísum á gólfi.
Herbergi IV með parketi á gólfi og rúmgóðum geymslum undir súð. Aukin lofthæð.
Herbergi V er með parket á gólfi og rúmgóðum geymslum undir súð. Aukin lofthæð. 

2026 Salerni endurnýjuð í báðum baðherbergjum. 
2025 Allar hurðir á efri hæð endurnýjaðar. Herbergi bætt við. veggir í miðrými klæddir marmaraflísum að hluta..
2024 járn og þakpappi á þaki endurnýjaður ásamt hluta af borðaklæðningu. Endurnýjuð öll steinull í lofti og rakarvarnalag. Hljóðdempandi loftadúkur settur í alrými á efri hæð, svefnherbergi V, ásamt hljóðvistarplötum á veggi. Lýsing í loftum á efri hæð endurnýjuð og að mestu á neðri hæð. Hljóðdempandi plötur settar í loft á herbergjum og baðherbergi á efri hæð. Parket í stofu pússað upp og borið á það. Veggur í stofu klæddur með flísum og hljóðdempandi plötum.
2024 Hús múrviðgert og málað að stærstum hluta að utan.

Umhverfis húsið er fallegur gróin garður ásamt steyptum stéttum. Að framan er stórt upphitað bílaplan.  Falleg fjölskyldueign með mikla möguleika í grónu hverfi þar sem stutt er í margvíslega þjónustu, grunnskóla og Víðistaðatún.  Allar nánari upplýsingar um eignina veitir Sigríður Lind Eyglóardóttir fasteignasali, sigridur,lind@heimili.is, 8994703


Heimili fasteignasala - á traustum grunni frá 2002.  Vegna mikillar eftirspurnar á markaði vantar okkur fleiri eignir á söluskrá. Hafið samband í síma 530-6500 eða sendið okkur tölvupóst á heimili@heimili.is og við verðmetum eignina þína þér að kostnaðarlausu.

Um skoðunar- og aðgæsluskyldu:
Í lögum um fasteignakaup nr. 40/2002 er kveðið á um ríka skoðunarskyldu kaupenda á fasteignum. Heimili fasteignasala bendir væntanlegum kaupendum á að kynna sér vel ástand fasteigna við skoðun og fyrir tilboðsgerð.

Forsendur söluyfirlits:
Söluyfirlit er samið af fasteignasala í samræmi við ákvæði laga nr. 70/2015. Þær upplýsingar sem fram koma í söluyfirliti þessu eru sóttar í opinberar skrár, til seljanda sjálfs og eftir atvikum til húsfélags. Seljandi veitir upplýsingar um eign í samræmi við upplýsingaskyldu laga um fasteignakaup nr. 40/2002. Fasteignasali sannreynir að þær upplýsingar séu réttar með sjónskoðun á eigninni.
Fasteignasali getur ekki fullyrt um ástand og eiginleika þeirra hluta fasteigna sem ekki eru aðgengilegir og sjást ekki berum augum, t.d. lagnir, dren, skólp og þak.

Gjöld sem kaupandi þarf að standa straum af vegna kaupanna:
1.Stimpilgjald af kaupsamningi sem er hlutfall af fasteignamati. Stimpilgjald er 0,8% fyrir einstaklinga (0,4% við fyrstu kaup) og 1,6% fyrir lögaðila.
2. Þinglýsingargjald af kaupsamningi, veðskuldabréfum, veðleyfum o.fl. Þinglýsingargjald er kr. 2.700,- fyrir hvert skjal.
3. Lántökugjald lánastofnunar í samræmi við gjaldskrá viðkomandi lánveitanda.
4. Umsýslugjald kaupanda er kr. 79.900. 
5. Þegar um nýbyggingu er að ræða greiðir kaupandi skipulagsgjald, 0,3% af endanlegu brunabótamáti, þegar það er lagt á af viðkomandi sveitarfélagi.
 
Heimili fasteignasala – á traustum grunni frá 2002.
Grensásvegi 3, 108 Reykjavík - Opið frá kl. 9-17 mánudaga til fimmtudaga og 9-16 á föstudögum.
Upplýsingar um starfsfólk má finna á heimasíðu Heimili og á Facebook.

img
Sigríður Lind Eyglóardóttir
Lögg.fasteignasali innan félags fasteignasala
Heimili fasteignasala
Grensásvegur 3, 2. hæð, 108 Reykjavík
Heimili fasteignasala

Heimili fasteignasala

Grensásvegur 3, 2. hæð, 108 Reykjavík
phone
img

Sigríður Lind Eyglóardóttir

Grensásvegur 3, 2. hæð, 108 Reykjavík
Ár
Fasteignamat
Kaupverð
Stærð
Fermetraverð
27. nóv. 2023
147.800.000 kr.
148.900.000 kr.
302.7 m²
491.906 kr.
10. jan. 2022
113.100.000 kr.
115.000.000 kr.
302.7 m²
379.914 kr.
27. jún. 2018
81.450.000 kr.
77.000.000 kr.
302.7 m²
254.377 kr.
Byggt á upplýsingum úr Þjóðskrá Íslands frá 2006-2026
Heimili fasteignasala

Heimili fasteignasala

Grensásvegur 3, 2. hæð, 108 Reykjavík
phone

Sigríður Lind Eyglóardóttir

Grensásvegur 3, 2. hæð, 108 Reykjavík