Upplýsingar
Verðsaga
Byggt 2020
80,2 m²
3 herb.
1 baðherb.
2 svefnh.
Útsýni
Sameiginl. inngangur
Bílastæði
Lyfta
Lýsing
Kasa fasteignir 461-2010.
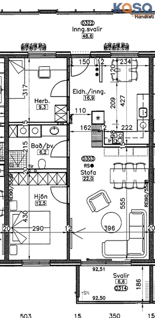
Kjarnagata 51 íbúð 303. Björt og falleg 3 herbergja 80.2 fm íbúð á 3 hæð í fjölbýli með lyftu og bílakjallara.
Eignin skiptist í forstofu, stofu, eldhús, baðherbergi með þvottaaðstöðu, tvö svefnherbergi og svalir með svalalokun ásamt sér geymslu í sameign og bílastæði í bílakjallara.
Forstofa: Er með parketi á gólfi.
Eldhús: Þar er góð ljós innrétting með flísum á milli skápa og parket á gólfi með ágætist borðkrók. Eldhúsið er sér, þ.e ekki í alrými með stofu.
Stofa: Er björt og nokkuð rúmgóð. Þar er parket á gólfi. Út frá stofu er farið út á svalir til austurs. Svalirnar eru með svalalokun sem auka notagildið talsvert.
Baðherbergi: Er með flísum á gólfi og við sturtu, rúmgóð innrétting þar sem gert er ráð fyrir þvottavél og þurrkara í vinnuhæð. Sturta með glerhurðum. Upphengt salerni.
Gangur: Þar er parket á gólfi, á gangi er fataskápur og fataslá.
Svefnherbergi: Eru tvö, bæði með parketi á gólfum og fataskápum.
- Sérgeymsla í sameign í kjallara, birt stærð er 4.5 fm.
- Stæði í bílakjallara fylgir íbúð.
- Flott útsýni er úr íbúð.
- Snyrtileg sameign með hjólageymslu.
- Loftskiptikerfi er í íbúðinni.
- Mynddyrasími.
- Hljóðdempandi plötur eru í loftum íbúðar ( nema á baðherbergi, þar er málað loft. )
Nánari upplýsingar í síma 461-2010 eða kasa@kasafasteignir.is
------------
Skoðunarskylda:
Í lögum um fasteignakaup nr. 40/2002 er kveðið á um ríka skoðunarskyldu kaupenda á fasteignum. Kasa fasteignir benda væntanlegum kaupendum á að kynna sér vel ástand fasteigna fyrir kauptilboðsgerð og leita til þar til bærra sérfræðinga um nánari skoðun ef þurfa þykir.
Forsendur söluyfirlits:
Söluyfirlit er samið af fasteignasala í samræmi við ákvæði laga nr. 70/2015. Þær upplýsingar sem fram koma í söluyfirliti þessu eru sóttar í opinberar skrár, til seljanda sjálfs og eftir atvikum til húsfélags. Seljandi veitir upplýsingar um eign í samræmi við upplýsingaskyldu laga um fasteignakaup nr. 40/2002. Fasteignasali sannreynir að þær upplýsingar séu réttar með sjónskoðun á eigninni. Fasteignasali getur ekki fullyrt um ástand og eiginleika þeirra hluta fasteigna sem ekki eru aðgengilegir og sjást ekki berum augum, t.d. lagnir, dren, skólp og þak.
Gjöld sem kaupandi þarf að standa straum af vegna kaupanna:
1. Stimpilgjald sýslumanns af kaupsamningi, fyrstu kaup (0,4%), almenn kaup (0,8%), lögaðilar (1,6%) af heildarfasteignamati eignar.
2. Þinglýsingargjald af kaupsamningi, veðskuldabréfi, mögulegu veðleyfi o.fl. - kr. 2.700 af hverju skjali.
3. Lántökugjald lánastofnunar er skv. verðskrá viðkomandi lánastofnunar. Nánari upplýsingar á t.d. heimasíðu lánastofnana.
4. Umsýslugjald til fasteignasölu skv. kauptilboði.
Kjarnagata 51 íbúð 303. Björt og falleg 3 herbergja 80.2 fm íbúð á 3 hæð í fjölbýli með lyftu og bílakjallara.
Eignin skiptist í forstofu, stofu, eldhús, baðherbergi með þvottaaðstöðu, tvö svefnherbergi og svalir með svalalokun ásamt sér geymslu í sameign og bílastæði í bílakjallara.
Forstofa: Er með parketi á gólfi.
Eldhús: Þar er góð ljós innrétting með flísum á milli skápa og parket á gólfi með ágætist borðkrók. Eldhúsið er sér, þ.e ekki í alrými með stofu.
Stofa: Er björt og nokkuð rúmgóð. Þar er parket á gólfi. Út frá stofu er farið út á svalir til austurs. Svalirnar eru með svalalokun sem auka notagildið talsvert.
Baðherbergi: Er með flísum á gólfi og við sturtu, rúmgóð innrétting þar sem gert er ráð fyrir þvottavél og þurrkara í vinnuhæð. Sturta með glerhurðum. Upphengt salerni.
Gangur: Þar er parket á gólfi, á gangi er fataskápur og fataslá.
Svefnherbergi: Eru tvö, bæði með parketi á gólfum og fataskápum.
- Sérgeymsla í sameign í kjallara, birt stærð er 4.5 fm.
- Stæði í bílakjallara fylgir íbúð.
- Flott útsýni er úr íbúð.
- Snyrtileg sameign með hjólageymslu.
- Loftskiptikerfi er í íbúðinni.
- Mynddyrasími.
- Hljóðdempandi plötur eru í loftum íbúðar ( nema á baðherbergi, þar er málað loft. )
Nánari upplýsingar í síma 461-2010 eða kasa@kasafasteignir.is
------------
Skoðunarskylda:
Í lögum um fasteignakaup nr. 40/2002 er kveðið á um ríka skoðunarskyldu kaupenda á fasteignum. Kasa fasteignir benda væntanlegum kaupendum á að kynna sér vel ástand fasteigna fyrir kauptilboðsgerð og leita til þar til bærra sérfræðinga um nánari skoðun ef þurfa þykir.
Forsendur söluyfirlits:
Söluyfirlit er samið af fasteignasala í samræmi við ákvæði laga nr. 70/2015. Þær upplýsingar sem fram koma í söluyfirliti þessu eru sóttar í opinberar skrár, til seljanda sjálfs og eftir atvikum til húsfélags. Seljandi veitir upplýsingar um eign í samræmi við upplýsingaskyldu laga um fasteignakaup nr. 40/2002. Fasteignasali sannreynir að þær upplýsingar séu réttar með sjónskoðun á eigninni. Fasteignasali getur ekki fullyrt um ástand og eiginleika þeirra hluta fasteigna sem ekki eru aðgengilegir og sjást ekki berum augum, t.d. lagnir, dren, skólp og þak.
Gjöld sem kaupandi þarf að standa straum af vegna kaupanna:
1. Stimpilgjald sýslumanns af kaupsamningi, fyrstu kaup (0,4%), almenn kaup (0,8%), lögaðilar (1,6%) af heildarfasteignamati eignar.
2. Þinglýsingargjald af kaupsamningi, veðskuldabréfi, mögulegu veðleyfi o.fl. - kr. 2.700 af hverju skjali.
3. Lántökugjald lánastofnunar er skv. verðskrá viðkomandi lánastofnunar. Nánari upplýsingar á t.d. heimasíðu lánastofnana.
4. Umsýslugjald til fasteignasölu skv. kauptilboði.
Ár
Fasteignamat
Kaupverð
Stærð
Fermetraverð
13. ágú. 2025
55.400.000 kr.
8.000.000 kr.
40303 m²
198 kr.
15. maí. 2020
2.860.000 kr.
36.950.000 kr.
80.2 m²
460.723 kr.
Byggt á upplýsingum úr Þjóðskrá Íslands frá 2006-2026