Upplýsingar
Byggt 1990
294 m²
7 herb.
2 baðherb.
5 svefnh.
Þvottahús
Lýsing
Betri Stofan Fasteignasala kynnir eignina Hlíðarhjalli 43, 200 Kópavogi. Vandað einbýlishús á tveimur hæðumí suðurhlíðum Kópavogs með glæsilegu útsýni. Húsið er teiknað af Kjartani Sveinssyni og er með innbyggðum bílskúr. Fallegur garður með heitum potti auk baðhúss. Sjón er sögu ríkari. Mikil veðursæld. Eigninni er vel við haldið og máluð að utan, veggir, gluggar, þak og garðveggir, árið 2023.
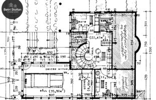
Eignin skiptist í forstofu, hol, 5 svefnherbergi og 2 baðherbergi, eldhús, þvottahús, borðstofa, stofa og sólstofa. Tvennar stórar svalir. Bílskúr. Heitur pottur og baðhús.
Nánari lýsing
Forstofa: náttúruflísar á gólfi.
Hol: náttúruflísar á gólfi með stórum fataskáp með lýsingu.
Herbergi: eru fimm, þrjú á neðri hæð og tvö á efri hæð. Öll með parketi, fjögur með fataskápum.
Baðherbergi: eru á báðum hæðum. Á neðri hæð er það mjög rúmgott með heitum potti, bráðab. innréttingu við vask og stórum sturtuklefa, mögul. sem gufubaði. Á efri hæð er granít á gólfi og í borðplötu, kirsuber í innréttingu, góð sturta og baðkar.
Eldhús: parketlagt með snyrtilegri eldhúsinnréttingu úr Hlyn / fuglsauga, spónlögð, borðplötur plastlagðar, nýlegt spanhelluborð og innbyggður ísskápur. Fallegur bogadregin stór borðkrókur.
Þvottahús: inn af eldhúsi með útgang út á lóð.
Borðstofa: parketlögð
Stofa: parketlögð.
Sólstofa: parketlögð með útgang út á stórar suður svalir.
Í húsinu er hefðbundið ofnakerfi ásamt gólfhita á völdum stöðum. Innfelld kastaralýsing er í báðum plötum. Curupay suður amerískur harðviður á gólfum lagður í fiskabeinsmynstri, parketið þarfnast slípunar, auka efni (parket) á stiga fylgir. Mustang flísar eru á holi niðri. Eldhúsinnrétting úr Hlyn / fuglsauga, spónlögð, borðplötur plastlagðar, nýlegt spanhelluborð og innbyggður ísskápur. Svefnherbergi eru 5 talsins. Baðherbergi er á báðum hæðum, á baði efri hæðar er granít á gólfi og í borðplötu, kirsuber í innréttingu. Baðherbergi neðri hæðar er mjög rúmgott með heitum potti, þá er einnig lítið salerni inn í bílskúr.
Eignin er skráð 226.4 fm skv. HMS en er i raun töluvert stærri, eða um 294 fm með öllu.
Falleg og rúmgóð lóð, bæði að framanverðu og ofanverðu. Góð aflokuð baklóð með nýlega endurnýjuðum sólpalli,(sumar 2024) heitum potti og baðhúsi. Einnig er aðkoma að húsinu að ofanverðu með einu bílastæði.
Stórt upphitað bílaplan fyrir framan hús með stæði fyrir sex bíla. Pláss fyrir hjólhýsi meðfram húsi austanmegin.
Eigandi skoðar skipti á minni eign.
Í næsta nágrenni eru skólar, leikskólar, framhaldsskólar og íþróttalíf.
Nánari upplýsingar veita Jason Kristinn Ólafsson, í síma 7751515, tölvupóstur jason@betristofan.is og Atli S.Sigvarðsson, í síma 899-1178, tölvupóstur atli@betristofan.is
Eignin skiptist í forstofu, hol, 5 svefnherbergi og 2 baðherbergi, eldhús, þvottahús, borðstofa, stofa og sólstofa. Tvennar stórar svalir. Bílskúr. Heitur pottur og baðhús.
Nánari lýsing
Forstofa: náttúruflísar á gólfi.
Hol: náttúruflísar á gólfi með stórum fataskáp með lýsingu.
Herbergi: eru fimm, þrjú á neðri hæð og tvö á efri hæð. Öll með parketi, fjögur með fataskápum.
Baðherbergi: eru á báðum hæðum. Á neðri hæð er það mjög rúmgott með heitum potti, bráðab. innréttingu við vask og stórum sturtuklefa, mögul. sem gufubaði. Á efri hæð er granít á gólfi og í borðplötu, kirsuber í innréttingu, góð sturta og baðkar.
Eldhús: parketlagt með snyrtilegri eldhúsinnréttingu úr Hlyn / fuglsauga, spónlögð, borðplötur plastlagðar, nýlegt spanhelluborð og innbyggður ísskápur. Fallegur bogadregin stór borðkrókur.
Þvottahús: inn af eldhúsi með útgang út á lóð.
Borðstofa: parketlögð
Stofa: parketlögð.
Sólstofa: parketlögð með útgang út á stórar suður svalir.
Í húsinu er hefðbundið ofnakerfi ásamt gólfhita á völdum stöðum. Innfelld kastaralýsing er í báðum plötum. Curupay suður amerískur harðviður á gólfum lagður í fiskabeinsmynstri, parketið þarfnast slípunar, auka efni (parket) á stiga fylgir. Mustang flísar eru á holi niðri. Eldhúsinnrétting úr Hlyn / fuglsauga, spónlögð, borðplötur plastlagðar, nýlegt spanhelluborð og innbyggður ísskápur. Svefnherbergi eru 5 talsins. Baðherbergi er á báðum hæðum, á baði efri hæðar er granít á gólfi og í borðplötu, kirsuber í innréttingu. Baðherbergi neðri hæðar er mjög rúmgott með heitum potti, þá er einnig lítið salerni inn í bílskúr.
Eignin er skráð 226.4 fm skv. HMS en er i raun töluvert stærri, eða um 294 fm með öllu.
Falleg og rúmgóð lóð, bæði að framanverðu og ofanverðu. Góð aflokuð baklóð með nýlega endurnýjuðum sólpalli,(sumar 2024) heitum potti og baðhúsi. Einnig er aðkoma að húsinu að ofanverðu með einu bílastæði.
Stórt upphitað bílaplan fyrir framan hús með stæði fyrir sex bíla. Pláss fyrir hjólhýsi meðfram húsi austanmegin.
Eigandi skoðar skipti á minni eign.
Í næsta nágrenni eru skólar, leikskólar, framhaldsskólar og íþróttalíf.
Nánari upplýsingar veita Jason Kristinn Ólafsson, í síma 7751515, tölvupóstur jason@betristofan.is og Atli S.Sigvarðsson, í síma 899-1178, tölvupóstur atli@betristofan.is
Gjöld sem kaupandi þarf að standa straum af ef að kaupum verður:
1. Stimpilgjald af fasteignamati fasteignar er 0.8%, en 0,4% fyrir fyrstu kaup og 1,6% fyrir lögaðila.
2. Þinglýsingargjald: kaupsamningi, skuldabréfi, veðleyfi, afsali o.s.frv. er kr. 3.800 af hverju skjali.
3. Lántökukostnaður samkvæmt verðskrá viðkomandi lánastofnunar.
4. Umsýslugjald til fasteignasölu skv. gjaldskrá.
Skoðunarskylda kaupanda:
Í lögum um fasteignakaup nr. 40/2002 er kveðið á um ríka skoðunarskyldu kaupenda á fasteignum. Betri Stofan fasteignasala bendir væntanlegum kaupendum á að kynna sér vel ástand fasteigna við skoðun og fyrir tilboðsgerð og ef þurfa þykir að leita til sérfræðinga um nánari ástandsskoðun.