Upplýsingar
Byggt 2024
114,3 m²
4 herb.
1 baðherb.
3 svefnh.
Sameiginl. inngangur
Bílastæði
Lyfta
Lýsing
Leigðu fyrst og keyptu svo. Íbúðir í boði með kauprétti. Þú leigir íbúð í allt að 18 mánuði og 25% af greiddri leigu rennur upp í kaupverð. Kaupverð óbreytt allan leigutímann. Nánari upplýsingar veita Katla Hanna Steed lögg. fasteignasali í síma 822 1661 eða katla@haborg.is og Kristín Rós Magnadóttir lögg. fasteignasali í síma 860-2078 eða á kristin@haborg.is.
Kleppsmýrarvegur 6, Dugguvogur 1 og Arkarvogur 1 eru þrjár samtengdar byggingar. Húsin samanstanda af nútímalegum og vönduðum fjölbýlishúsum sem eru byggð í U með 51 íbúð. Hver íbúð hefur aðgang að lokuðum bílakjallara, inngarði og geymslum. Í hverri íbúð er sjálfstætt loftræstikerfi. Vel skipulagðar og hannaðar íbúðir þar sem fermetrar nýtast vel. Frábær staðsetning, í miðri borginni, stutt í allar áttir og á stofnbraut, í þjónustu og verslun. Tilbúnar til afhendingar við kaupsamning.
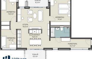
Nánari lýsing á íbúð 305, 4ra herbergja: Stærð 114,3 fm. Þegar komið er í forstofu eru góðir fataskápar. Barnaherbergin eru 2, bæði rúmgóð og björt með góðum fataskápum. Hjónaherbergi er einnig rúmgott og bjart með góðum fataskápum. Baðherbergi er með góðri snyrtiaðstöðu og þvottaaðstöðu. Alrými er mjög rúmgott og bjart, opið eldhús með eyju sem hægt er að sitja við. Stofur eru rúmgóðar og bjartar með útgengi á svalir með ál rennihurðum.
Eigninni fylgir stæði í bílakjallara, merkt B08, og geymsla að stærð 9,8 fm.
Nýr valkostur í fjármögnun. Kaupendur geta nýtt sér nýjan sjóð Öxar sem styður kaupendur með því að fjárfesta með þeim allt að 20% af kaupverði.
Nýjar, bjartar og vandaðar íbúðir með góðri lofthæð, þar sem náttúra, ró og nútímaleg hönnun mætast: AXIS innréttingar hvítar með gráum borðplötum og vandaðri “perfect sende” áferð. AEG innbyggð heimilistæki, bakaraofn, helluborð, háfur og uppþvottavél, Baðherbergi eru flísalögð að hluta með 60×60 flísum og stílhreinum innréttingum og tækjum. Allar hurðir, bæði innan og utan, eru með “perfect sende” áferð. Þak og svalarsvæði eru forsteypt með hágæða niðurföllum. Heimilt er að setja upp svalalokanir eða yfirbyggingar sem auka verðurþol og skjól.
Inngarðurinn: er bjartur og fagur. Gangstéttar eru hellulagðar eða steyptar með innbyggðum hitalögnum, sem tryggir öryggi á veturna. Grassvæði verða klædd gerfigrasi og því græn allt árið. Hægt verður að setja upp leiksvæði barna í þessu skemmtilega rými.
Bílakjallarinn: er lokaður og frostfrír. Einkastæði í bílageymslu fylgir flestum íbúðum. Bílgeymslan verður upplýst og búin eldvarnarbúnaði. Hægt verður að setja upp hleðslustöðvar í bílastæðum. Í kjallaranum er einnig rúmgóð hjóla- og vagnageymsla.
ATH: kaupandi greiðir skipulagsgjald, 0,3% af brunabótamáti, þegar það verður lagt á.
Nánari upplýsingar veita Katla Hanna Steed lögg. fasteignasali í síma 822 1661 eða katla@haborg.is, Jórunn Skúladóttir lögg. fasteignasali, í síma 845-8958, eða tölvupóstur jorunn@haborg.is og Kristín Rós Magnúsdóttir lögg. fasteignasali í síma 860-2078 eða kristin@haborg.is
Athugið að myndir í auglýsingum eru settar fram til viðmiðunar. Á þeim kunna að koma fyrir einstök atriði, búnaður eða frágangur sem falla ekki undir lokaútgáfu eða skilalýsingu fasteignarinnar.
Gjöld sem kaupandi þarf að standa straum af vegna kaupanna:
Stimpilgjald af kaupsamningi sem er hlutfall af fasteignamati. Stimpilgjald er 0,8% fyrir einstaklinga (0,4% við fyrstu kaup) og 1,6% fyrir lögaðila.
Þinglýsingargjald af kaupsamningi, veðskuldabréfum, veðleyfum o.fl. Þinglýsingargjald er kr. 2.500,- fyrir hvert skjal. Lántökugjald lánastofnunar. Um lántökugjald vísast í gjaldskrá viðkomandi lánveitanda. Umsýsluþóknun fasteignasölu skv. gjaldskrá.
Kleppsmýrarvegur 6, Dugguvogur 1 og Arkarvogur 1 eru þrjár samtengdar byggingar. Húsin samanstanda af nútímalegum og vönduðum fjölbýlishúsum sem eru byggð í U með 51 íbúð. Hver íbúð hefur aðgang að lokuðum bílakjallara, inngarði og geymslum. Í hverri íbúð er sjálfstætt loftræstikerfi. Vel skipulagðar og hannaðar íbúðir þar sem fermetrar nýtast vel. Frábær staðsetning, í miðri borginni, stutt í allar áttir og á stofnbraut, í þjónustu og verslun. Tilbúnar til afhendingar við kaupsamning.
Nánari lýsing á íbúð 305, 4ra herbergja: Stærð 114,3 fm. Þegar komið er í forstofu eru góðir fataskápar. Barnaherbergin eru 2, bæði rúmgóð og björt með góðum fataskápum. Hjónaherbergi er einnig rúmgott og bjart með góðum fataskápum. Baðherbergi er með góðri snyrtiaðstöðu og þvottaaðstöðu. Alrými er mjög rúmgott og bjart, opið eldhús með eyju sem hægt er að sitja við. Stofur eru rúmgóðar og bjartar með útgengi á svalir með ál rennihurðum.
Eigninni fylgir stæði í bílakjallara, merkt B08, og geymsla að stærð 9,8 fm.
Nýr valkostur í fjármögnun. Kaupendur geta nýtt sér nýjan sjóð Öxar sem styður kaupendur með því að fjárfesta með þeim allt að 20% af kaupverði.
Nýjar, bjartar og vandaðar íbúðir með góðri lofthæð, þar sem náttúra, ró og nútímaleg hönnun mætast: AXIS innréttingar hvítar með gráum borðplötum og vandaðri “perfect sende” áferð. AEG innbyggð heimilistæki, bakaraofn, helluborð, háfur og uppþvottavél, Baðherbergi eru flísalögð að hluta með 60×60 flísum og stílhreinum innréttingum og tækjum. Allar hurðir, bæði innan og utan, eru með “perfect sende” áferð. Þak og svalarsvæði eru forsteypt með hágæða niðurföllum. Heimilt er að setja upp svalalokanir eða yfirbyggingar sem auka verðurþol og skjól.
Inngarðurinn: er bjartur og fagur. Gangstéttar eru hellulagðar eða steyptar með innbyggðum hitalögnum, sem tryggir öryggi á veturna. Grassvæði verða klædd gerfigrasi og því græn allt árið. Hægt verður að setja upp leiksvæði barna í þessu skemmtilega rými.
Bílakjallarinn: er lokaður og frostfrír. Einkastæði í bílageymslu fylgir flestum íbúðum. Bílgeymslan verður upplýst og búin eldvarnarbúnaði. Hægt verður að setja upp hleðslustöðvar í bílastæðum. Í kjallaranum er einnig rúmgóð hjóla- og vagnageymsla.
ATH: kaupandi greiðir skipulagsgjald, 0,3% af brunabótamáti, þegar það verður lagt á.
Nánari upplýsingar veita Katla Hanna Steed lögg. fasteignasali í síma 822 1661 eða katla@haborg.is, Jórunn Skúladóttir lögg. fasteignasali, í síma 845-8958, eða tölvupóstur jorunn@haborg.is og Kristín Rós Magnúsdóttir lögg. fasteignasali í síma 860-2078 eða kristin@haborg.is
Athugið að myndir í auglýsingum eru settar fram til viðmiðunar. Á þeim kunna að koma fyrir einstök atriði, búnaður eða frágangur sem falla ekki undir lokaútgáfu eða skilalýsingu fasteignarinnar.
Gjöld sem kaupandi þarf að standa straum af vegna kaupanna:
Stimpilgjald af kaupsamningi sem er hlutfall af fasteignamati. Stimpilgjald er 0,8% fyrir einstaklinga (0,4% við fyrstu kaup) og 1,6% fyrir lögaðila.
Þinglýsingargjald af kaupsamningi, veðskuldabréfum, veðleyfum o.fl. Þinglýsingargjald er kr. 2.500,- fyrir hvert skjal. Lántökugjald lánastofnunar. Um lántökugjald vísast í gjaldskrá viðkomandi lánveitanda. Umsýsluþóknun fasteignasölu skv. gjaldskrá.