Upplýsingar
Byggt 2025
225,3 m²
7 herb.
3 baðherb.
4 svefnh.
Þvottahús
Bílskúr
Sérinngangur
Lýsing
Garðatorg eignamiðlun. Sölumaður Sigurður s. 898-3708
Keldugata 6 er glæsilegt fjölskylduvænt raðhús á pöllum með frábæru útsýni yfir Urriðavatn, 5 svefnherbergi. Húsið skilast fullbúið að innan með innréttingum, tækjum og gólfefnum í mjög góðum gæðum. Lóð frágengin. Hér er um að ræða eign þar sem ekkert hefur verið til sparað í hönnun, efnisvali og frágangi. Skipulag og flæði rýma er frábært. Ef sjón er sögu ríkari, þá á það við hér.
Miele-tæki frá Eyrvík: innbyggð eldhúsvifta í borði, innbyggð uppþvottavél og ísskápur, ofn og örbylgjuofn.
Innréttingar, gólfefni og flísar eru frá MOOD INTERIORS Síðumúla 28, Reykjavík, vandaðar ítalskar vörur frá Scavolini – Regola.
Innréttingar í eldhúsi, baðherbergjum, fataskápum og þvottahúsi eru allar frá Scavolini og bera merki ítalsks hönnunarstíls og gæða.
Flísar eru ítalskar, valdar í samræmi við heildarhönnun og gæðaviðmið verkefnisins.
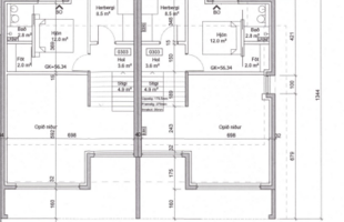
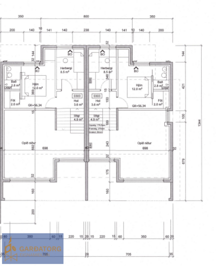
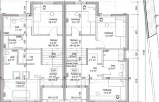
Innra skipulag:
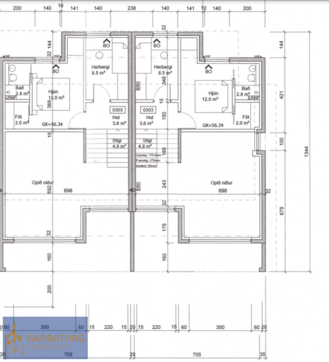
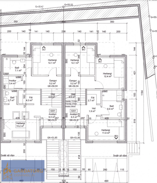
Anddyri, stofa/borðstofa, eldhús, fjögur svefnherbergi, gestasnyrting, baðherbergi og baðherbergi innaf hjónaherbergi, þvottahús og innbyggður bílskúr.
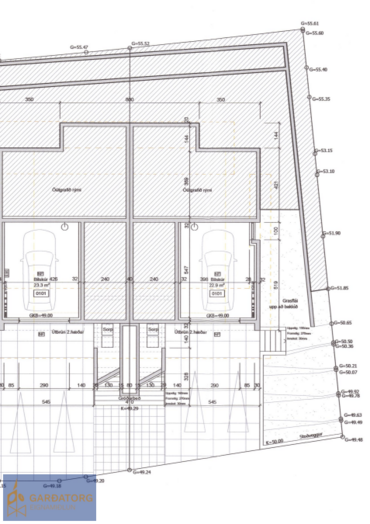
Samtals 224,7 fm, þar af 194,7 fm íbúðarrými og 29,7 fm innbyggður bílskúr.
Auk þess er um ca. 14 fermetra rými við hlið bílskúrs, sem ekki telst með í fermetratölunni.
Innangengt er úr bílskúr, gegnum þetta rými, upp í íbúðarrýmið.
Heildarstærð hússins er því um 239 fermetrar að meðtöldu því rými.
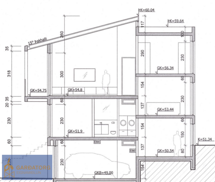
Lausn með pallasamsetningu skapar opið, bjart og einstaklega skemmtilegt rými þar sem hvert svæði nýtur sín. Skipulagið tryggir bæði tengingu og aðgreiningu milli rýma þar sem svefnherbergin eru aðeins afskekkt. Samverurýmið, stofa, borðstofa og eldhús myndar bjart og rúmgott rými með stórum gluggum og útsýni yfir vatnið. Sjón er sögu ríkari.
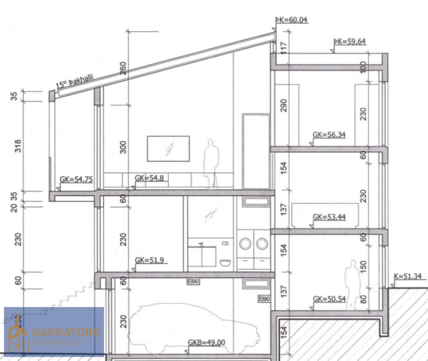
Pallaskipulag:
Pallur 1 – Innkoma / Forstofa / Svalir:
Rúmgóð forstofa, forstofuherbergi, sér snyrting og fataherbergi.
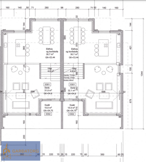
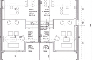
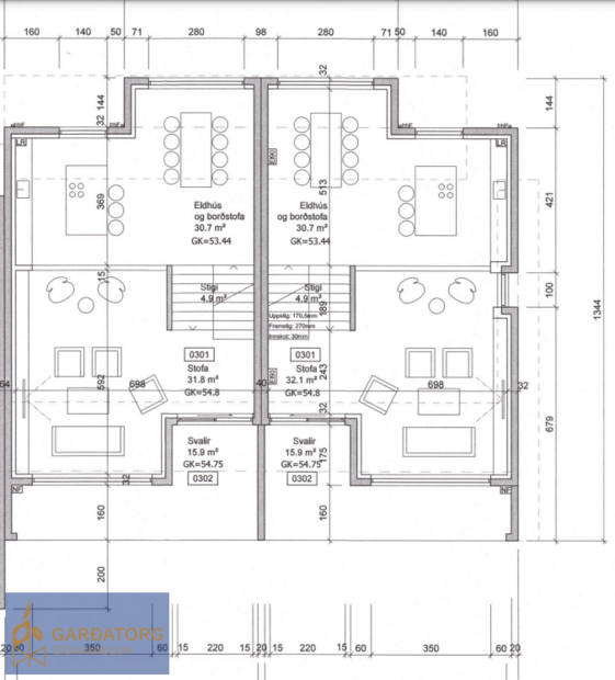
Pallur 2 – Eldhús / Borðstofa:
Bjart eldhús og borðstofa í opnu rými.
Pallur 3 – Stofa / Svalir / Útsýni:
Stofa með mikilli lofthæð og útgengi á suðursvalir með stórbrotnu útsýni yfir Urriðavatn.
Pallur 4 – Svefnherbergi / Hjónaherbergi:
Hjónaherbergi með fataherbergi og sér baðherbergi, annað svefnherbergi.
Pallur -1 – Svefnherbergi, baðherbergi og þvottahús.
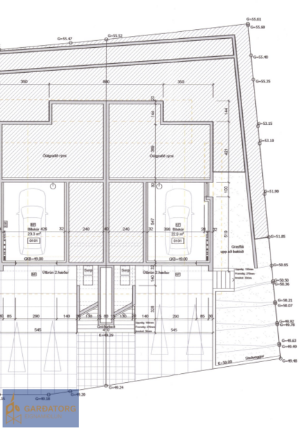
Jarðhæð -2 – Geymsla og bílskúr:
Rúmgóð geymsla (utan fermetratölu eignar). Innangengt í bílskúr.
Frágangur og lóð:
Húsið skilast fullbúið að utan:
Hellulagt bílaplan með hitalögnum í stígum
Gluggar ál/tré með góðri einangrun
Þak steypt að hluta og að hluta úr timbursperrum
Tvívirkt loftræstikerfi innsteypt í loftaplötur, inn og útloftun.
Lóð frágengin
Staðsetning:
Urriðaholt er rólegt og fjölskylduvænt hverfi í Garðabæ þar sem náttúra og mannlíf mætast. Göngufæri við Urriðaskóla, útivistarsvæði og náttúruperlur eins og Urriðavatn og Heiðmörk.
Urriðaholt er fyrsta hverfi landsins sem hlotið hefur vistvottun samkvæmt BREEAM Communities staðli.
Upplýsingar veitir:
Sigurður Tyrfingsson
Löggiltur fasteignasali og húsasmíðameistari
Sími: 898-3708 · Netfang: sigurdur@gardatorg.is
Garðatorg eignamiðlun, Lyngási 11, Garðabæ
Skilalýsing:
Húsið skilast fullbúið að utan sem innan.
Innréttingar, gólfefni og flísar eru frá MOOD INTERIORS Síðumúla 28, Reykjavík, vandaðar ítalskar vörur frá Scavolini – Regola.
Innréttingar í eldhúsi, baðherbergjum, fataskápum og þvottahúsi eru allar frá Scavolini. Miele-tæki frá Eyrvík: innbyggð eldhúsvifta í borði, innbyggð uppþvottavél og ísskápur, ofn og örbylgjuofn.
Harðparket á gólfum fyrir utan gólf á blautrýmun sem eru golf flísalögð. Frágengin lóð, hellulagt bílaplan með hitalögn,
Tvívirkt loftræsting inn og út kerfi er inn steypt í loftaplötu, stokkar og niður tekinn loft óþörf, skilast tilbúið til notkunar með mótor.
Tæki og búnaður að viðurkenndri gerð. Baðherbergi er flísalagt, gólf og veggir ásamt innréttingu og tækjum. Baðherbergi innaf hjónaherbergi, flísar á gólfum og veggjum. Gesta-snyrting flísalagt gólf. Þvottahús flísalagt gólf. Forstofa, flísalagt gólf. Loft í stofu eru fullbúin, hljóðdúkur með innfelldri lýsingu.
Að utan verður húsið múrhúðað með salla og einangrað að innan. Gluggar eru ál/tré. Stærð húsa er samkvæmt skráningatöflu hönnuða ( á ábyrgð hönnuða ) Það athugist að 3D myndir eru til að gefa vísbendingar af útliti og skipulagi hússins, sama á við um lóðauppdrátt.
Burðarvirki: Sökklar, plötur, útveggir og berandi veggir hússins eru steinsteyptir og jarnbentir.
Útveggir: Veggir eru einangraðir að innan og múrhúðaðir. Steyptir milliveggir verða slípaðir fyrir sparsl.
Gluggar/hurðir og gler: Gluggar eru Ál/tré að innan og litað ál að utan, gerjaðir með tvöföldu gleri. Bílskúrshurðin er ál, einangruð.
Þak: Þakvirkið er steinsteypt og jarnbent og að hluta til úr timbursperrum, heilklætt, þakpappi eða PVC dúk. Þakið er einangrað í timburhlutanum, steypti hlutinn er einangraður og fullfrágengin.
Milliveggir: Léttir milliveggir hlaðnir úr létt steypu.
Loft: Timburloft eru einangruð með raka-sperru með rafmagnsgrind, dúkur.
Steypt loft einangruð að utan verðu.
Hitakerfi: Ofn í bílskúr, að öðru leiti eru gólfhitalagnir lagðar ofan á steypta plötu og Anhydrit flotílögn lögð yfir. Stofninntök komin og hitakerfi fullbúið.
Raflagna-kerfi: Fúll frágengið.
Loftræsting: Loftræstirör eru inn steypt samkvæmt teikningu. Vélræst loft-ræsting með inn og út-sogi.
Svalir: Fljótandi glerhandrið.
Lóð: skilast fullbúin.
Byggingin skal að öðru leyti uppfylla öll ákvæði byggingareglugerðar. Sérstaklega er bent á mannvirkjalög í þessu sambandi.
Húsið skal að öðru leyti byggt og því skilað í samræmi við lög og reglur varðandi nýbyggingar.
Allir aðkeyptir byggingarhlutar sem notaðir verða í byggingunni munu vera af viðurkenndri gerð
Frágangur og útfærslur verði í samræmi við teikningar og hönnun hússins.
Afhending: Verkáætlun. Stefnt er að framkvæmdum ljúki eigi síðar en apríl 2026.
Dragist afhending vegna orsaka sem seljandi ræður ekki við t.d. v. verkfalla eða veðurs, hamfara eða annarra slíkra atriða mun seljandi ekki greiða sérstakar bætur vegna þess til kaupanda, heldur munu afhendingargreiðslur skv. kaupsamningi dragast sem seinkunn nemur.
Keldugata 6 er glæsilegt fjölskylduvænt raðhús á pöllum með frábæru útsýni yfir Urriðavatn, 5 svefnherbergi. Húsið skilast fullbúið að innan með innréttingum, tækjum og gólfefnum í mjög góðum gæðum. Lóð frágengin. Hér er um að ræða eign þar sem ekkert hefur verið til sparað í hönnun, efnisvali og frágangi. Skipulag og flæði rýma er frábært. Ef sjón er sögu ríkari, þá á það við hér.
Miele-tæki frá Eyrvík: innbyggð eldhúsvifta í borði, innbyggð uppþvottavél og ísskápur, ofn og örbylgjuofn.
Innréttingar, gólfefni og flísar eru frá MOOD INTERIORS Síðumúla 28, Reykjavík, vandaðar ítalskar vörur frá Scavolini – Regola.
Innréttingar í eldhúsi, baðherbergjum, fataskápum og þvottahúsi eru allar frá Scavolini og bera merki ítalsks hönnunarstíls og gæða.
Flísar eru ítalskar, valdar í samræmi við heildarhönnun og gæðaviðmið verkefnisins.
Innra skipulag:
Anddyri, stofa/borðstofa, eldhús, fjögur svefnherbergi, gestasnyrting, baðherbergi og baðherbergi innaf hjónaherbergi, þvottahús og innbyggður bílskúr.
Samtals 224,7 fm, þar af 194,7 fm íbúðarrými og 29,7 fm innbyggður bílskúr.
Auk þess er um ca. 14 fermetra rými við hlið bílskúrs, sem ekki telst með í fermetratölunni.
Innangengt er úr bílskúr, gegnum þetta rými, upp í íbúðarrýmið.
Heildarstærð hússins er því um 239 fermetrar að meðtöldu því rými.
Lausn með pallasamsetningu skapar opið, bjart og einstaklega skemmtilegt rými þar sem hvert svæði nýtur sín. Skipulagið tryggir bæði tengingu og aðgreiningu milli rýma þar sem svefnherbergin eru aðeins afskekkt. Samverurýmið, stofa, borðstofa og eldhús myndar bjart og rúmgott rými með stórum gluggum og útsýni yfir vatnið. Sjón er sögu ríkari.
Pallaskipulag:
Pallur 1 – Innkoma / Forstofa / Svalir:
Rúmgóð forstofa, forstofuherbergi, sér snyrting og fataherbergi.
Pallur 2 – Eldhús / Borðstofa:
Bjart eldhús og borðstofa í opnu rými.
Pallur 3 – Stofa / Svalir / Útsýni:
Stofa með mikilli lofthæð og útgengi á suðursvalir með stórbrotnu útsýni yfir Urriðavatn.
Pallur 4 – Svefnherbergi / Hjónaherbergi:
Hjónaherbergi með fataherbergi og sér baðherbergi, annað svefnherbergi.
Pallur -1 – Svefnherbergi, baðherbergi og þvottahús.
Jarðhæð -2 – Geymsla og bílskúr:
Rúmgóð geymsla (utan fermetratölu eignar). Innangengt í bílskúr.
Frágangur og lóð:
Húsið skilast fullbúið að utan:
Hellulagt bílaplan með hitalögnum í stígum
Gluggar ál/tré með góðri einangrun
Þak steypt að hluta og að hluta úr timbursperrum
Tvívirkt loftræstikerfi innsteypt í loftaplötur, inn og útloftun.
Lóð frágengin
Staðsetning:
Urriðaholt er rólegt og fjölskylduvænt hverfi í Garðabæ þar sem náttúra og mannlíf mætast. Göngufæri við Urriðaskóla, útivistarsvæði og náttúruperlur eins og Urriðavatn og Heiðmörk.
Urriðaholt er fyrsta hverfi landsins sem hlotið hefur vistvottun samkvæmt BREEAM Communities staðli.
Upplýsingar veitir:
Sigurður Tyrfingsson
Löggiltur fasteignasali og húsasmíðameistari
Sími: 898-3708 · Netfang: sigurdur@gardatorg.is
Garðatorg eignamiðlun, Lyngási 11, Garðabæ
Skilalýsing:
Húsið skilast fullbúið að utan sem innan.
Innréttingar, gólfefni og flísar eru frá MOOD INTERIORS Síðumúla 28, Reykjavík, vandaðar ítalskar vörur frá Scavolini – Regola.
Innréttingar í eldhúsi, baðherbergjum, fataskápum og þvottahúsi eru allar frá Scavolini. Miele-tæki frá Eyrvík: innbyggð eldhúsvifta í borði, innbyggð uppþvottavél og ísskápur, ofn og örbylgjuofn.
Harðparket á gólfum fyrir utan gólf á blautrýmun sem eru golf flísalögð. Frágengin lóð, hellulagt bílaplan með hitalögn,
Tvívirkt loftræsting inn og út kerfi er inn steypt í loftaplötu, stokkar og niður tekinn loft óþörf, skilast tilbúið til notkunar með mótor.
Tæki og búnaður að viðurkenndri gerð. Baðherbergi er flísalagt, gólf og veggir ásamt innréttingu og tækjum. Baðherbergi innaf hjónaherbergi, flísar á gólfum og veggjum. Gesta-snyrting flísalagt gólf. Þvottahús flísalagt gólf. Forstofa, flísalagt gólf. Loft í stofu eru fullbúin, hljóðdúkur með innfelldri lýsingu.
Að utan verður húsið múrhúðað með salla og einangrað að innan. Gluggar eru ál/tré. Stærð húsa er samkvæmt skráningatöflu hönnuða ( á ábyrgð hönnuða ) Það athugist að 3D myndir eru til að gefa vísbendingar af útliti og skipulagi hússins, sama á við um lóðauppdrátt.
Burðarvirki: Sökklar, plötur, útveggir og berandi veggir hússins eru steinsteyptir og jarnbentir.
Útveggir: Veggir eru einangraðir að innan og múrhúðaðir. Steyptir milliveggir verða slípaðir fyrir sparsl.
Gluggar/hurðir og gler: Gluggar eru Ál/tré að innan og litað ál að utan, gerjaðir með tvöföldu gleri. Bílskúrshurðin er ál, einangruð.
Þak: Þakvirkið er steinsteypt og jarnbent og að hluta til úr timbursperrum, heilklætt, þakpappi eða PVC dúk. Þakið er einangrað í timburhlutanum, steypti hlutinn er einangraður og fullfrágengin.
Milliveggir: Léttir milliveggir hlaðnir úr létt steypu.
Loft: Timburloft eru einangruð með raka-sperru með rafmagnsgrind, dúkur.
Steypt loft einangruð að utan verðu.
Hitakerfi: Ofn í bílskúr, að öðru leiti eru gólfhitalagnir lagðar ofan á steypta plötu og Anhydrit flotílögn lögð yfir. Stofninntök komin og hitakerfi fullbúið.
Raflagna-kerfi: Fúll frágengið.
Loftræsting: Loftræstirör eru inn steypt samkvæmt teikningu. Vélræst loft-ræsting með inn og út-sogi.
Svalir: Fljótandi glerhandrið.
Lóð: skilast fullbúin.
Byggingin skal að öðru leyti uppfylla öll ákvæði byggingareglugerðar. Sérstaklega er bent á mannvirkjalög í þessu sambandi.
Húsið skal að öðru leyti byggt og því skilað í samræmi við lög og reglur varðandi nýbyggingar.
Allir aðkeyptir byggingarhlutar sem notaðir verða í byggingunni munu vera af viðurkenndri gerð
Frágangur og útfærslur verði í samræmi við teikningar og hönnun hússins.
Afhending: Verkáætlun. Stefnt er að framkvæmdum ljúki eigi síðar en apríl 2026.
Dragist afhending vegna orsaka sem seljandi ræður ekki við t.d. v. verkfalla eða veðurs, hamfara eða annarra slíkra atriða mun seljandi ekki greiða sérstakar bætur vegna þess til kaupanda, heldur munu afhendingargreiðslur skv. kaupsamningi dragast sem seinkunn nemur.
Í lögum um fasteignakaup nr. 40/2002 er kveðið á um ríka skoðunarskyldu kaupenda á fasteignum. Vill því Garðatorg eignamiðlun skora á væntanlega kaupendur að kynna sér vel ástand fasteigna fyrir kauptilboðsgerð og leita til þar til bærra sérfræðinga um nánari skoðun ef með þarf.
Gjöld sem kaupandi þarf að standa straum af vegna kaupanna:
1. Stimpilgjald af kaupsamningi - 0.8% af heildarfasteignamati / 1.6% fyrir lögaðila. (0.4% við fyrstu kaup einstaklinga).
2. Þinglýsingagjald af kaupsamningi, veðskuldabréfi, veðleyfi o.fl.- kr. 2.700 af hverju skjali.
3. Lántökugjald lánastofnunar
4. Umsýsluþóknun til fasteignasölu, sbr.kauptilboð