Löggiltir fasteignasalar innan Félags fasteignasala:
Páll Þórólfsson
Guðbjörg Guðmundsdóttir
Jason Kristinn Ólafsson
Sverrir Pálmason
Vista
svg

52

svg

47  Skoðendur

svg

Skráð  22. jan. 2026

fjölbýlishús

Áshamar 26 (502)

221 Hafnarfjörður

128.900.000 kr.

930.686 þ.kr./m2
Fasteignanúmer

F2525099

Fasteignamat

42.800.000 kr.

Brunabótamat

0 kr.

Áhvílandi

0 kr.

Arion banki – Reikna lán
Upplýsingar
svg
Byggt 2025
svg
138,5 m²
svg
4 herb.
svg
2 baðherb.
svg
3 svefnh.
svg
Bílastæði
Opið hús: 7. febrúar 2026 kl. 12:00 til 13:00

OPIÐ HÚS FRÁ 12-13 Á LAUGARDAGINN 7 FEBRÚAR DAGRÚN D. LGFS. VERÐUR Á STAÐNUM -8661763 / DAGRUN@BETRISTOFAN.IS

Lýsing

Betri Stofan fasteignasala kynnir nýtt glæsilegt fimm hæða lyftuhús við Áshamar 24-26 í Hamranesi, Hafnarfirði. Um er að ræða tveggja, þriggja og fjögrra herbergja íbúðir þar sem flestum íbúðum fylgir sér bílastæði í lokaðri bílageymslu.

Bókið skoðun:
Þórir Skarphéðinsson lögmaður og löggiltur fasteignasali í síma 844 9591 / thorir@betristofan.is
Telma Rut Frímannsdóttir, Aðstoðarmaður fasteignasala í síma 772-3555 - eða telma@betristofan.is

Smellið hér fyrir heimasíðu verkefnisins og lausar íbúðir

Íbúðirnar skilast fullbúnar með gólfefnum. Votrými skilast flísalögð.

ATH myndir geta verið af annari íbúð og eru ætlaðar til viðmiðunnar.

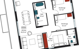
Íbúð 502: Fjögurra herbergja íbúð. 138,5 fermetrar. Tvö bílastæði í kjallara.

Allur frágangur, uppbygging og orkunotkun hússins tekur mið af leiðbeinandi stigakröfum Svansins.

Nánar um íbúðirnar
Innréttingar
frá HTH, annars vegar spónlagðar og hinsvegar með hvítu yfirborði lögðu Melamini.
Eldhústæki: Allur búnaður er frá AEG. Spanhelluborð með 4 hellum, blástursofn með stáláferð, gufugleypir/eyjuháfur eftir því sem við á. Stáleldhúsvaskur með einu hólfi. Hitastýrð einnar handar blöndunartæki frá Grohe.
Baðherbergi: Vegghengt salerni, sturta með flísalögðum sturtubotni. Allur búnaður er frá Grohe.
Svefnherbergi: Fataskápar eru í svefnherbergjum.
Geymslur fylgja öllum íbúðum.
Merkt bílastæði í bílageymslu fylgir flestum íbúðum.
Lagnaleið fyrir mögulega rafhleðslutengingu er við hvert bílastæði.
 
Sjá skilalýsingu: Skilalýsing
 
Byggingaraðili húsins er Eykt ehf.
Eykt ehf er traustur verktaki til fjölda ára: Sjá nánar um verktakan (www.eykt.is)
 
Hönnun:
Arkitekt: T.ark – Teiknistofan Arkitektar
Burðarþol og lagnir: Teknik Verkfræðistofa
Raflagnir: Voltorka
Lóð: Landhönnun

Kaupandi greiðir skipulagsgjald af endanlegu brunabótamati eignarinnar.
 
Frábær staðsetning þar sem stutt er í helstu þjónustu og falleg útivistarsvæði.
 
Nánari upplýsingar veita:
Þórir Skarphéðinsson lögmaður og löggiltur fasteignasali í síma 844 9591 / thorir@betristofan.is
Telma Rut Frímannsdóttir, Aðstoðarmaður fasteignasala í síma 772-3555 - eða telma@betristofan.is


Gjöld sem kaupandi þarf að standa straum af ef að kaupum verður:
1. Stimpilgjald af fasteignamati fasteignar er 0.8%, en 0,4% fyrir fyrstu kaup og 1,6% fyrir lögaðila.  
2. Þinglýsingargjald: kaupsamningi, skuldabréfi, veðleyfi, afsali o.s.frv. er kr. 3.800 af hverju skjali.
3. Lántökukostnaður samkvæmt verðskrá viðkomandi lánastofnunar.
4. Umsýslugjald til fasteignasölu skv. gjaldskrá.

Skoðunarskylda kaupanda:
Í lögum um fasteignakaup nr. 40/2002 er kveðið á um ríka skoðunarskyldu kaupenda á fasteignum. Betri Stofan fasteignasala bendir væntanlegum kaupendum á að kynna sér vel ástand fasteigna við skoðun og fyrir tilboðsgerð og ef þurfa þykir að leita til sérfræðinga um nánari ástandsskoðun.

Betri Stofan Fasteignasala

Betri Stofan Fasteignasala

Borgartúni 30, 105 Reykjavík
phone
Betri Stofan Fasteignasala

Betri Stofan Fasteignasala

Borgartúni 30, 105 Reykjavík
phone