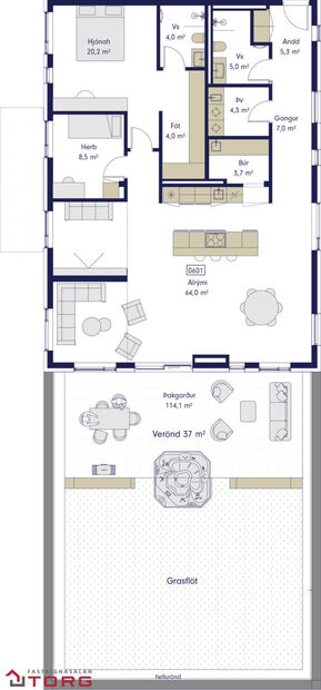
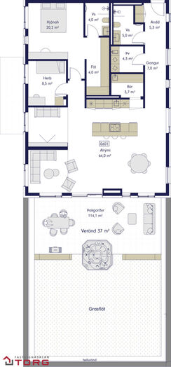
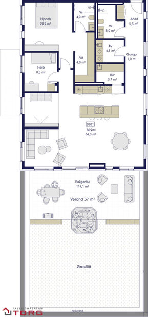
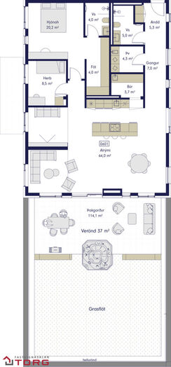
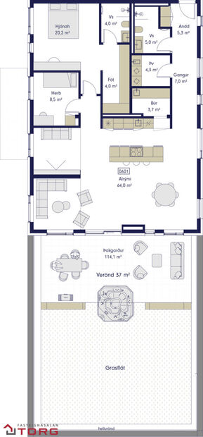
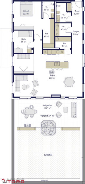
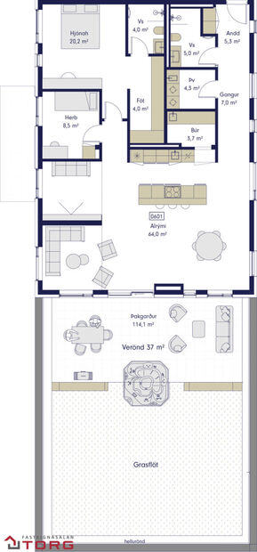
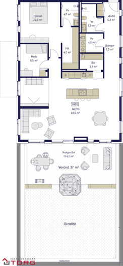
Upplýsingar
181,3 m²
4 herb.
2 baðherb.
2 svefnh.
Þvottahús
Bílskúr
Sameiginl. inngangur
Bílastæði
Lyfta
Lýsing
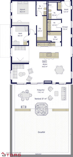
Fasteignasalan TORG kynnir: Nýjar íbúðir á Heklureit að Laugavegur 170 í Reykjavík. Um er að ræða glæsilega íbúð á 6. hæð með þakgarði og möguleika á heitum potti. Íbúðin er merkt 601. Íbúðin er með 3 svefnherbergjum, 2 baðherbergjum, þvottahúsi, búri innaf eldhúsi, stofa og eldhús í opnu rými með rennihurð út á rúmgóðan þakgarð. Bílskúr í bílageymslu fylgir með íbúðinni ásamt geymslu og 2 stæði í bílageymslu sem fylgja íbúðinni, merkt B05 og B06. Allar nánari upplýsingar veitir Ragnar Guðmundsson, fasteignasali í GSM: 844-6516 eða ragnar@fstorg.is
Sjá hér nánar heimasíða fyrir Heklureitinn
Sækja hér söluyfirlit
Nánari upplýsingar: Í eldhúsi er eyja, borðplötur ásamt bakplötu úr Quarts steini, sérframleiddur frá Santamargherita á Ítalíu. Vönduð tæki frá Siemens, sem koma úr StudioLine gerðinni, en hún býður uppá úrval glæsilegra tækja sem gera eldamennskuna sérlega þægilega og ánægjuríka. Öll tæki hvort sem er fyrir eldhús eða baðherbergi eru valin með tilliti til gæða og endingar.
Hafstudio og Studio Homestead koma að hönnun innréttinga og eru þær sérsmíðaðar af ítalska fyrirtækinu Cubo Design úr Miton línunni þeirra. Kaupendur hafa tækifæri til að velja mismunandi liti og áferðir fyrir innréttingar sem og flísar á baðherbergi, komi þeir tímanlega að borði.
Íbúðirnar á efri hæðum, hafa einstakt útsýni til fjalla og yfir borgina.
Húsið er klætt með mismunandi litaðri álklæðningu ásamt Bambus sem gefur því lifandi yfirbragð og þarfnast lítils viðhalds.
Miðlæg staðsetning tryggir gott aðgengi að helstu umferðaræðum sem sparar tíma og peninga.
Örstutt í helstu stofnbrautir eins og Sæbraut, Kringlumýrabraut og Miklubraut.
Skipulag: Deiliskipulagið að reitnum eru fimm byggingar frá Laugavegi 168-174 sem verður byggt í áföngum. Fyrstu húsin sem nú er í byggingu eru Laugavegur 168 og Laugavegur 170.
Skipulagið tekur mið af því að hámarka gæði staðsetningarinnar, hvað varðar skjólið frá holtinu, útsýnið sem er í allar áttir og sérstaklega í átt að Esjunni, vestur yfir borgina og austur í fjallahringinn. Einnig til suðurs í átt að Perlunni.
Götumynd verður endurbyggð í Brautarholti, Nóatúni og við Laugaveg. Við Laugaveginn verða þjónustu- og verslunarrými þar sem áætlað er að borgarlínan muni ganga framhjá. Nálægð við þjónustu og samgöngur gefur möguleika á bíllausum lífstíl en í kjallara verða bílastæðahús þar sem hægt er að aka út hvort sem er út á Laugaveginn eða Nóatún
Hönnun: Að hönnun húsanna á Heklureitnum koma tvær arkitektastofur, Teikna teiknistofa arkitekta og THG arkitektar. Var það gert til þess að auka fjölbreytnina í hönnuninni og sá önnur stofan um innra skipulag á meðan hin einbeitir sér að því að sjá um ytra útlit með því að skapa tilbreytni í uppbroti klæðninganna með litum og efnisvali. Um landslagshönnun sér síðan Lilja Filippusdóttir hjá Lilium teiknistofu.
Áhersla var lögð á að hvert hús hefði sinn karakter og sérkenni en eru síðan bundin saman með sameinandi þáttum í landslagshönnuninni. Til að hámarka birtu stallast húsið niður til suðurs, það ásamt gólfsíðum gluggum í flestum íbúðum eykur birtu innan íbúða.
Myndir tölvugerðar og aðeins til að gefa góða mynd af íbúðum. Sjá nánar skilalýsingu*
Allar nánari upplýsingar veitir Ragnar Guðmundsson, fasteignasali í GSM: 844-6516 eða ragnar@fstorg.is
Sjá hér nánar heimasíða fyrir Heklureitinn
Sækja hér söluyfirlit
Nánari upplýsingar: Í eldhúsi er eyja, borðplötur ásamt bakplötu úr Quarts steini, sérframleiddur frá Santamargherita á Ítalíu. Vönduð tæki frá Siemens, sem koma úr StudioLine gerðinni, en hún býður uppá úrval glæsilegra tækja sem gera eldamennskuna sérlega þægilega og ánægjuríka. Öll tæki hvort sem er fyrir eldhús eða baðherbergi eru valin með tilliti til gæða og endingar.
Hafstudio og Studio Homestead koma að hönnun innréttinga og eru þær sérsmíðaðar af ítalska fyrirtækinu Cubo Design úr Miton línunni þeirra. Kaupendur hafa tækifæri til að velja mismunandi liti og áferðir fyrir innréttingar sem og flísar á baðherbergi, komi þeir tímanlega að borði.
Íbúðirnar á efri hæðum, hafa einstakt útsýni til fjalla og yfir borgina.
Húsið er klætt með mismunandi litaðri álklæðningu ásamt Bambus sem gefur því lifandi yfirbragð og þarfnast lítils viðhalds.
Miðlæg staðsetning tryggir gott aðgengi að helstu umferðaræðum sem sparar tíma og peninga.
Örstutt í helstu stofnbrautir eins og Sæbraut, Kringlumýrabraut og Miklubraut.
Skipulag: Deiliskipulagið að reitnum eru fimm byggingar frá Laugavegi 168-174 sem verður byggt í áföngum. Fyrstu húsin sem nú er í byggingu eru Laugavegur 168 og Laugavegur 170.
Skipulagið tekur mið af því að hámarka gæði staðsetningarinnar, hvað varðar skjólið frá holtinu, útsýnið sem er í allar áttir og sérstaklega í átt að Esjunni, vestur yfir borgina og austur í fjallahringinn. Einnig til suðurs í átt að Perlunni.
Götumynd verður endurbyggð í Brautarholti, Nóatúni og við Laugaveg. Við Laugaveginn verða þjónustu- og verslunarrými þar sem áætlað er að borgarlínan muni ganga framhjá. Nálægð við þjónustu og samgöngur gefur möguleika á bíllausum lífstíl en í kjallara verða bílastæðahús þar sem hægt er að aka út hvort sem er út á Laugaveginn eða Nóatún
Hönnun: Að hönnun húsanna á Heklureitnum koma tvær arkitektastofur, Teikna teiknistofa arkitekta og THG arkitektar. Var það gert til þess að auka fjölbreytnina í hönnuninni og sá önnur stofan um innra skipulag á meðan hin einbeitir sér að því að sjá um ytra útlit með því að skapa tilbreytni í uppbroti klæðninganna með litum og efnisvali. Um landslagshönnun sér síðan Lilja Filippusdóttir hjá Lilium teiknistofu.
Áhersla var lögð á að hvert hús hefði sinn karakter og sérkenni en eru síðan bundin saman með sameinandi þáttum í landslagshönnuninni. Til að hámarka birtu stallast húsið niður til suðurs, það ásamt gólfsíðum gluggum í flestum íbúðum eykur birtu innan íbúða.
Myndir tölvugerðar og aðeins til að gefa góða mynd af íbúðum. Sjá nánar skilalýsingu*
Allar nánari upplýsingar veitir Ragnar Guðmundsson, fasteignasali í GSM: 844-6516 eða ragnar@fstorg.is