Upplýsingar
Byggt 2007
212 m²
5 herb.
2 baðherb.
4 svefnh.
Þvottahús
Bílskúr
Lýsing
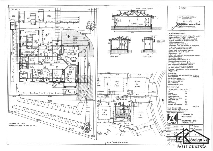
Kjöreign ehf., fasteignasala, Ármúla 21, Reykjavík, sími 533-4040 kynnir nýlegt vandað einbýlishús á einni hæð með stórum bílskúr á frábærum stað við Stórakrika, Mosfellsbæ. Birt heildarstærð er 212,0 fm.
Lýsing. Forstofa, forstofuherbergi, hol/sjónvarpsstofa, gestasnyrting, eldhús, stofa, 4 svefnherbergi, fataherbergi innaf hjónaherberginu, geymsla og þvottahús. Innbyggður stór bílskúr
Nánari lýsing. Rúmgóð fostofa með gólfflísum. Rúmgott forstofuherbergi. Mjög rúmgott hol og sjónvarpsstofa í miðrými hússins. Tvöföld hurð með gleri inn í stofuna. Stofan er með dyr út á hellulagða stétt í garðinum. Sérlega rúmgott eldhús með stórri ljósri viðarinnréttingu úr eik og eyju. Steinn í borðplötum. Eldshúsgólf er flísalagt. Dyr eru úr eldhúsinu út á sólpall. Gestasnyrting inn af holinu án tækja. Tvö samliggjandi barnaherbergi, annað með skáp. Hjónaherbergi með fataherbergi innaf. Baðherbergi með gluggum. Baðker og sturtuklefi í baðherberginu sem er allt flísalagt, innrétting. Gengið er úr íbúðinni inn í góða geymslu og þvottahús. Þvottahúsið er með innréttingu og útihurð. Harðparket er á stofu, sjónvarpsstofu og herbergjunum. Auðvelt er að breyta herbergjaskipan og sameina stofur.
Mikið útsýni er úr eldhúsi og herbergjum til norðurs og vestur.
Bílskúrinn. Innangengt er í bílskúrinn úr geymslunni. Bílskúrinn er rúmgóður með gluggum á báðum hliðum og hliðarhurð. Góð lofthæð.
Stærðir. Birtar stærðir, húsið er skráð 170,8 fm. og bílskúrinn er skráður 41,2 fm. Birt heildarstærð er alls 212,0 fm.
Lóðin. Lóðin er talin vera 846,3 fm. Lóðin er fullfrágengin með gróðri, stétt og palli. Góð upphituð bílastæði að framanverðu.
Ýmislegt um húsið. Góð lofthæð er í húsinu. Innihurðir eru háar. Gluggar eru íslenskir, karmar „oregon pine“ og hurðir og opnanleg fög úr „mahogoný“. Fallegt útsýni er frá húsinu. Rólegt umhverfi. Stutt er í ósnortna náttúru og gönguleiðir. Stutt er í skóla, leikskóla, verslun og heilsugæslu. Sömu eigendur frá byggingu hússins.
Einstakt tækifæri að kaupa vandað og vel skipulagt nýlegt hús á einni hæð á frábærum stað í Mosfellsbæ.
Upplýsingar gefa sölumenn Kjöreignar ehf., í síma 533-4040 eða á kjoreign@kjoreign.is
Dan Wiium lögm. og lögg. fasteignasali gsm. 896-4013 eða dan@kjoreign.is
Ásta María Benónýsdóttir lögg. fasteignasali gsm. 897-8061 eða asta@kjoreign.is
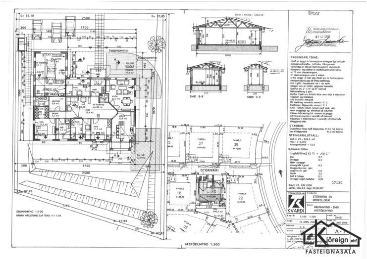
Lýsing. Forstofa, forstofuherbergi, hol/sjónvarpsstofa, gestasnyrting, eldhús, stofa, 4 svefnherbergi, fataherbergi innaf hjónaherberginu, geymsla og þvottahús. Innbyggður stór bílskúr
Nánari lýsing. Rúmgóð fostofa með gólfflísum. Rúmgott forstofuherbergi. Mjög rúmgott hol og sjónvarpsstofa í miðrými hússins. Tvöföld hurð með gleri inn í stofuna. Stofan er með dyr út á hellulagða stétt í garðinum. Sérlega rúmgott eldhús með stórri ljósri viðarinnréttingu úr eik og eyju. Steinn í borðplötum. Eldshúsgólf er flísalagt. Dyr eru úr eldhúsinu út á sólpall. Gestasnyrting inn af holinu án tækja. Tvö samliggjandi barnaherbergi, annað með skáp. Hjónaherbergi með fataherbergi innaf. Baðherbergi með gluggum. Baðker og sturtuklefi í baðherberginu sem er allt flísalagt, innrétting. Gengið er úr íbúðinni inn í góða geymslu og þvottahús. Þvottahúsið er með innréttingu og útihurð. Harðparket er á stofu, sjónvarpsstofu og herbergjunum. Auðvelt er að breyta herbergjaskipan og sameina stofur.
Mikið útsýni er úr eldhúsi og herbergjum til norðurs og vestur.
Bílskúrinn. Innangengt er í bílskúrinn úr geymslunni. Bílskúrinn er rúmgóður með gluggum á báðum hliðum og hliðarhurð. Góð lofthæð.
Stærðir. Birtar stærðir, húsið er skráð 170,8 fm. og bílskúrinn er skráður 41,2 fm. Birt heildarstærð er alls 212,0 fm.
Lóðin. Lóðin er talin vera 846,3 fm. Lóðin er fullfrágengin með gróðri, stétt og palli. Góð upphituð bílastæði að framanverðu.
Ýmislegt um húsið. Góð lofthæð er í húsinu. Innihurðir eru háar. Gluggar eru íslenskir, karmar „oregon pine“ og hurðir og opnanleg fög úr „mahogoný“. Fallegt útsýni er frá húsinu. Rólegt umhverfi. Stutt er í ósnortna náttúru og gönguleiðir. Stutt er í skóla, leikskóla, verslun og heilsugæslu. Sömu eigendur frá byggingu hússins.
Einstakt tækifæri að kaupa vandað og vel skipulagt nýlegt hús á einni hæð á frábærum stað í Mosfellsbæ.
Upplýsingar gefa sölumenn Kjöreignar ehf., í síma 533-4040 eða á kjoreign@kjoreign.is
Dan Wiium lögm. og lögg. fasteignasali gsm. 896-4013 eða dan@kjoreign.is
Ásta María Benónýsdóttir lögg. fasteignasali gsm. 897-8061 eða asta@kjoreign.is