Löggiltir fasteignasalar innan Félags fasteignasala:
Björn Guðmundsson
Berglind Jónasardóttir
Greta Huld Mellado
Vista
svg

1082

svg

881  Skoðendur

svg

Skráð  23. jan. 2026

fjölbýlishús

Múlasíða 5 - 304 K

603 Akureyri

48.900.000 kr.

543.333 þ.kr./m2
Fasteignanúmer

F2149237

Fasteignamat

48.000.000 kr.

Brunabótamat

46.800.000 kr.

Áhvílandi

0 kr.

Arion banki – Reikna lán
Upplýsingar
svg
Byggt 1987
svg
90 m²
svg
3 herb.
svg
1 baðherb.
svg
2 svefnh.
svg
Þvottahús
svg
Útsýni
svg
Sameiginl. inngangur
svg
Laus strax

Lýsing

    

Fasteignasalan Byggð 464-9955 - Einkasala 

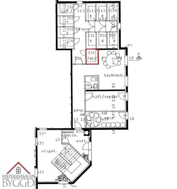
Múlasíða 5 - 304 (K) 

** Eignin er laus til afhendingar við samningsgerð **


Um er að ræða bjarta þriggja herbergja íbúð á 3. hæð í fjölbýlishúsi. Svalir til vesturs með góðu útsýni. 

Eignin er skráð 90 fm. auk geymslu í sameign. Eignin skiptist í forstofu, þvottahús og geymslu, baðherbergi, tvö svefnherbergi, eldhús og stofu. 

Forstofa með flísum á gólfi og opnu fatahengi. 
Þvottahús og geymsla er innaf forstofu, dúkur á gólfi, vaskur ásamt efri skápum og stæði fyrir þvottavél og þurrkara. Geymslan er fyrir innan þvottahús í opnu rými með opnanlegum glugga, þar eru hillur. 
Baðherbergi með dúk á gólfi og flísar á veggjum að hluta. Innrétting við vask, baðkar með sturtutækjum og opnanlegur gluggi á baði. 
Svefnherbergin eru tvö, bæði eru þau með dúk á gólfum og fataskápum. 
Eldhús með dúk á gólfi, flísar milli efri og neðri skápa, uppþvottavél fylgir og opnalegur gluggi. 
Stofa með parket á gólfi, einnig er parket á gangi. Gluggar til tveggja átta úr stofu. Útgengi út á svalir til vesturs með góðu útsýni. 
Auk geymslu innan íbúðar þá er lítil sér geymsla í sameign ásamt hlutdeild í sameiginlegum rýmum í sameign. 

Annað: 
- Snyrtilegur stigagangur, málaður og nýtt teppi lagt á stigagang 2021
- Húsið síðast málað að utan árið 2017 og þakrennur yfirfarnar og lagfærðar á norðurhlið 2016
- Ljósleiðari er kominn inn og tengdur.
- Útidyrahurð og mynddyrasými 2025
- Svalahurð hefur verið endurnýjuð.  
- Parket orðið lélegt, sér vel á því. 
- Stutt í leik- og grunnskóla. 
- Stutt í verslunarkjarna á Norðurtorgi.


Gjöld sem kaupandi þarf að standa straum af vegna kaupanna:  
1. Stimpilgjald af kaupsamningi - 0.8% af heildarfasteignamati / 1.6% fyrir lögaðila.    (0.4% við fyrstu kaup einstaklinga m.v. að lágmarki 50% eignarhlut).
2. Þinglýsingagjald af kaupsamningi, veðskuldabréfi, veðleyfi o.fl.- kr. 2.700 af hverju skjali.
3. Lántökugjald lánastofnunar -almennt 0,5-1,0% af höfuðstól skuldabréfs (nánari upplýsingar m.a. á heimasíðum lánastofnanna).
4. Umsýsluþóknun til fasteignasölu, sbr.kauptilboð. 


Frekari upplýsingar:
bjorn@byggd.is
greta@byggd.is
olafur@byggd.is

Skipagötu 16 á 2. hæð.
S:464 9955 


 

Byggð fasteignasala

Byggð fasteignasala

Skipagata 16, 600 Akureyri
phone
Byggð fasteignasala

Byggð fasteignasala

Skipagata 16, 600 Akureyri
phone