Upplýsingar
Verðsaga
Byggt 2005
94,8 m²
3 herb.
1 baðherb.
3 svefnh.
Þvottahús
Sérinngangur
Hjólastólaaðgengi
Lýsing
Laus strax.
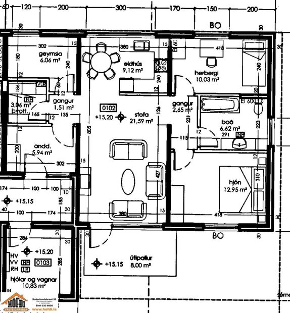
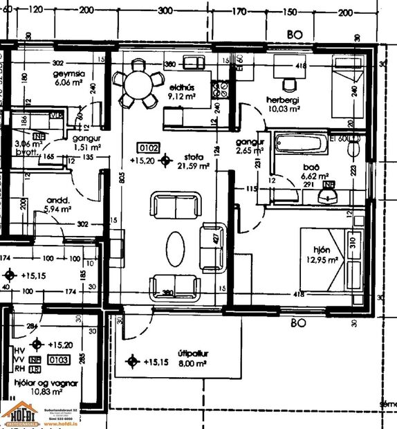
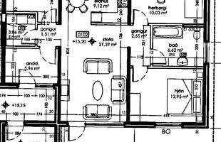
Góð 3ja - 4ra herbergja íbúð á jarðhæð með sérinngangi við Fífumóa 13-15 á Selfossi. Sér inngangur og stór verönd með skjólveggum. Sér þvottahús. Gott aðgengi, gengið er beint inn. Vel hægt að nýta sem 4 ra herbergja. Samkvæmt skráningu Þjóðskrár íslands er íbúðin 94,8 fm. Eignin er í útleigu og er hægt að yfirtaka leigusamninng. Nettó er í göngufæri sem og öll helsta þjónasta.
Forstofa : Flísar á gólfi og fataskápur
Þvottaherbergi : Flísar á gólfi og innrétting.
Geymsla : Parket á gólfi, gluggi, hægt að nýta sem herbergi ef vill.
Eldhús : Opið í stofu, parket á gólfi, góð innrétting og tæki.
Stofa : Parket á gólfi og útgangur út á stóran afgirtan sólpall.
Herbergi : Parket á gólfi og skápur.
Baðherbergi : Flísar á gólfi og veggjum, nýr rúmgóður sturtuklefi, upphengt klósett og innrétting.
Hjónaherbergi : parket á gólfi og skápar.
Annað : fyrir framan inngang er sameiginleg geymsla.
Upplýsingar veitir : Ásmundur Skeggjason fasteignasali, as@hofdi.is, Gsm 895 3000.
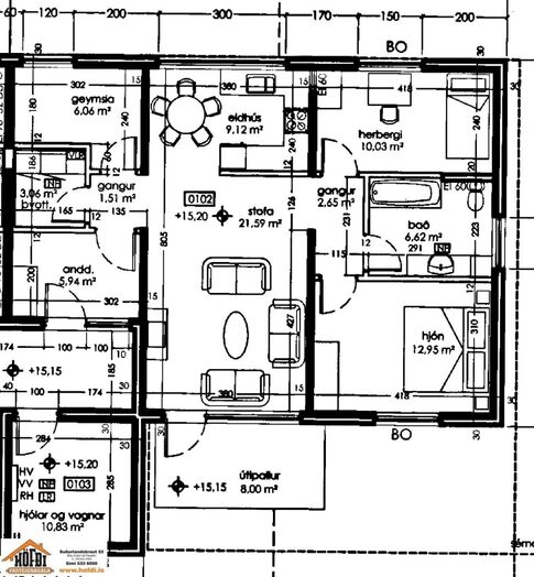
Góð 3ja - 4ra herbergja íbúð á jarðhæð með sérinngangi við Fífumóa 13-15 á Selfossi. Sér inngangur og stór verönd með skjólveggum. Sér þvottahús. Gott aðgengi, gengið er beint inn. Vel hægt að nýta sem 4 ra herbergja. Samkvæmt skráningu Þjóðskrár íslands er íbúðin 94,8 fm. Eignin er í útleigu og er hægt að yfirtaka leigusamninng. Nettó er í göngufæri sem og öll helsta þjónasta.
Forstofa : Flísar á gólfi og fataskápur
Þvottaherbergi : Flísar á gólfi og innrétting.
Geymsla : Parket á gólfi, gluggi, hægt að nýta sem herbergi ef vill.
Eldhús : Opið í stofu, parket á gólfi, góð innrétting og tæki.
Stofa : Parket á gólfi og útgangur út á stóran afgirtan sólpall.
Herbergi : Parket á gólfi og skápur.
Baðherbergi : Flísar á gólfi og veggjum, nýr rúmgóður sturtuklefi, upphengt klósett og innrétting.
Hjónaherbergi : parket á gólfi og skápar.
Annað : fyrir framan inngang er sameiginleg geymsla.
Upplýsingar veitir : Ásmundur Skeggjason fasteignasali, as@hofdi.is, Gsm 895 3000.
Ár
Fasteignamat
Kaupverð
Stærð
Fermetraverð
4. nóv. 2022
34.400.000 kr.
54.000.000 kr.
94.8 m²
569.620 kr.
14. ágú. 2014
18.550.000 kr.
17.000.000 kr.
94.8 m²
179.325 kr.
Byggt á upplýsingum úr Þjóðskrá Íslands frá 2006-2026