Upplýsingar
Byggt 1943
87,7 m²
4 herb.
1 baðherb.
2 svefnh.
Þvottahús
Útsýni
Sameiginl. inngangur
Lýsing
Valborg fasteignasala kynnir í einkasölu huggulega hæð við Skúlaskeið 24, 220 Hafnarfirði.
Fjórbýli þar sem tvær og tvær íbúðir deila inngangi og sameign.
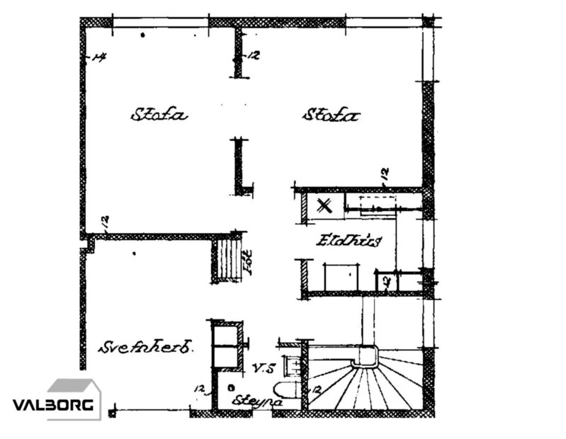
Eignin telur í dag tvö herbergi, tvær stofur, eldhús, baðherbergi, geymslu ásamt þvottahúsi í sameign.
Sameign er í kjallara en umrædd íbúð á miðhæð hússins.
Eignin er 87,7 m² samkvæmt skráningu Þjóðskrár Íslands.
Skemmtilega staðsett eign sem er með útsýni yfir útivistarperluna Hellisgerði.
Sjá staðsetningu hér.
Lýsing eignar:
Anddyri er sameiginlegt með efrið hæð. Innangengt niður í sameign úr anddyri.
Forstofuhol sem tengir saman flestar vistarverur eignarinnar. Skápur og fatahengi, parket á gólfi.
Baðherbergi með handlaug, wc, sturtu, flísar á gólfi og veggjum. Gluggi til norðurs.
Svefnherbergi með nýlegum fataskáp, parket á gólfi. Gluggi til norðurs.
Eldhús með endurnýjaðri innréttingu. Efri og neðri skápar. Helluborð, vifta, ofn í vinnuhæð, tengi fyrir uppþvottavél, pláss fyrir 2ja mtr ísskáp. Gluggi til vesturs.
Stofur eru tvær en hægt væri að gera svefnherbergi úr annarri. Parket á báðum. Gluggar til suðurs að Hellisgerði og einnig til vesturs úr borðstofu.
Stigi úr borðstofu niður í herbergi í kjallara. Skráð sem geymsla en gæti nýst sem svefnherbergi, sjónvarpsherbergi eða skrifstofa. Málað gólf. Gluggi í suðurs. Þaðan er innangengt í sameign í kjallara.
Geymsla 7,8 m2 í kjallara en þar er einnig þvottahús.
Geymsla undir stiga er í sameign, óupphituð, og aðgengileg að utanverðu.
Pallur er fyrir aftan húsið en utan við bakgarð er nokkuð ósnortin náttúra.
Samkvæmt nýju deiluskipulagi verður ekki byggt á gamla saltfiskreitnum fyrir aftan húsið.
Eign sem þessar hafa verið mjög eftirsóttar og stoppa yfirleitt stutt.
Miðbær Hafnarfjarðar í göngufæri, sem og fallegar gönguleiðir.
Nánari upplýsingar veita:
Gunnar Biering Agnarsson, löggiltur fasteignasali, í síma 823-3300, tölvupóstur gunnar@valborgfs.is.
Forsendur söluyfirlits:
Söluyfirlit er samið af fasteignasala í samræmi við ákvæði laga nr. 70/2015. Þær upplýsingar sem fram koma í söluyfirliti þessu eru sóttar í opinberar skrár, til seljanda sjálfs og eftir atvikum til húsfélags. Seljandi veitir upplýsingar um eign í samræmi við upplýsingaskyldu laga um fasteignakaup nr. 40/2002. Fasteignasali sannreynir að þær upplýsingar séu réttar með sjónskoðun á eigninni. Fasteignasali getur ekki fullyrt um ástand og eiginleika þeirra hluta fasteigna sem ekki eru aðgengilegir og sjást ekki berum augum, t.d. lagnir, dren, skólp og þak.
Um skoðunar- og aðgæsluskyldu:
Í lögum um fasteignakaup nr. 40/2002 er kveðið á um ríka skoðunarskyldu kaupenda á fasteignum. Valborg ehf. fasteignasala bendir væntanlegum kaupendum á að kynna sér vel ástand fasteigna við skoðun og fyrir tilboðsgerð og ef þurfa þykir að leita til sérfræðinga um nánari ástandsskoðun.
Gjöld sem kaupandi þarf að standa straum af vegna kaupanna:
1. Stimpilgjald af kaupsamningi sem er hlutfall af fasteignamati. Stimpilgjald er 0,8% fyrir einstaklinga (0,4% við fyrstu kaup) og 1,6% fyrir lögaðila.
2. Þinglýsingargjald af kaupsamningi, veðskuldabréfum, veðleyfum o.fl. Þinglýsingargjald er kr. 3.800,- fyrir hvert skjal.
3. Lántökugjald lánastofnunar. Um lántökugjald vísast í gjaldskrá viðkomandi lánveitanda.
4. Umsýsluþóknun fasteignasölu skv. gjaldskrá.
5. Ef um nýbyggingu er að ræða greiðir kaupandi skipulagsgjald, 0,3% af brunabótamáti, þegar það er lagt á.
Fjórbýli þar sem tvær og tvær íbúðir deila inngangi og sameign.
Eignin telur í dag tvö herbergi, tvær stofur, eldhús, baðherbergi, geymslu ásamt þvottahúsi í sameign.
Sameign er í kjallara en umrædd íbúð á miðhæð hússins.
Eignin er 87,7 m² samkvæmt skráningu Þjóðskrár Íslands.
Skemmtilega staðsett eign sem er með útsýni yfir útivistarperluna Hellisgerði.
Sjá staðsetningu hér.
Lýsing eignar:
Anddyri er sameiginlegt með efrið hæð. Innangengt niður í sameign úr anddyri.
Forstofuhol sem tengir saman flestar vistarverur eignarinnar. Skápur og fatahengi, parket á gólfi.
Baðherbergi með handlaug, wc, sturtu, flísar á gólfi og veggjum. Gluggi til norðurs.
Svefnherbergi með nýlegum fataskáp, parket á gólfi. Gluggi til norðurs.
Eldhús með endurnýjaðri innréttingu. Efri og neðri skápar. Helluborð, vifta, ofn í vinnuhæð, tengi fyrir uppþvottavél, pláss fyrir 2ja mtr ísskáp. Gluggi til vesturs.
Stofur eru tvær en hægt væri að gera svefnherbergi úr annarri. Parket á báðum. Gluggar til suðurs að Hellisgerði og einnig til vesturs úr borðstofu.
Stigi úr borðstofu niður í herbergi í kjallara. Skráð sem geymsla en gæti nýst sem svefnherbergi, sjónvarpsherbergi eða skrifstofa. Málað gólf. Gluggi í suðurs. Þaðan er innangengt í sameign í kjallara.
Geymsla 7,8 m2 í kjallara en þar er einnig þvottahús.
Geymsla undir stiga er í sameign, óupphituð, og aðgengileg að utanverðu.
Pallur er fyrir aftan húsið en utan við bakgarð er nokkuð ósnortin náttúra.
Samkvæmt nýju deiluskipulagi verður ekki byggt á gamla saltfiskreitnum fyrir aftan húsið.
Eign sem þessar hafa verið mjög eftirsóttar og stoppa yfirleitt stutt.
Miðbær Hafnarfjarðar í göngufæri, sem og fallegar gönguleiðir.
Nánari upplýsingar veita:
Gunnar Biering Agnarsson, löggiltur fasteignasali, í síma 823-3300, tölvupóstur gunnar@valborgfs.is.
Forsendur söluyfirlits:
Söluyfirlit er samið af fasteignasala í samræmi við ákvæði laga nr. 70/2015. Þær upplýsingar sem fram koma í söluyfirliti þessu eru sóttar í opinberar skrár, til seljanda sjálfs og eftir atvikum til húsfélags. Seljandi veitir upplýsingar um eign í samræmi við upplýsingaskyldu laga um fasteignakaup nr. 40/2002. Fasteignasali sannreynir að þær upplýsingar séu réttar með sjónskoðun á eigninni. Fasteignasali getur ekki fullyrt um ástand og eiginleika þeirra hluta fasteigna sem ekki eru aðgengilegir og sjást ekki berum augum, t.d. lagnir, dren, skólp og þak.
Um skoðunar- og aðgæsluskyldu:
Í lögum um fasteignakaup nr. 40/2002 er kveðið á um ríka skoðunarskyldu kaupenda á fasteignum. Valborg ehf. fasteignasala bendir væntanlegum kaupendum á að kynna sér vel ástand fasteigna við skoðun og fyrir tilboðsgerð og ef þurfa þykir að leita til sérfræðinga um nánari ástandsskoðun.
Gjöld sem kaupandi þarf að standa straum af vegna kaupanna:
1. Stimpilgjald af kaupsamningi sem er hlutfall af fasteignamati. Stimpilgjald er 0,8% fyrir einstaklinga (0,4% við fyrstu kaup) og 1,6% fyrir lögaðila.
2. Þinglýsingargjald af kaupsamningi, veðskuldabréfum, veðleyfum o.fl. Þinglýsingargjald er kr. 3.800,- fyrir hvert skjal.
3. Lántökugjald lánastofnunar. Um lántökugjald vísast í gjaldskrá viðkomandi lánveitanda.
4. Umsýsluþóknun fasteignasölu skv. gjaldskrá.
5. Ef um nýbyggingu er að ræða greiðir kaupandi skipulagsgjald, 0,3% af brunabótamáti, þegar það er lagt á.