Upplýsingar
Verðsaga
Byggt 1990
244,8 m²
7 herb.
4 baðherb.
5 svefnh.
Þvottahús
Bílskúr
Útsýni
Opið hús: 4. febrúar 2026
kl. 17:30
til 18:00
Opið hús: Lækjarhjalli 2, 200 Kópavogur. Eignin verður sýnd MIÐ 4. FEB á milli kl. 17:30 og kl. 18:00.
Lýsing
Aðalsteinn Bjarna lgf. & Margrét Rós lgf. hjá TORG fasteignasölu kynna í sölu myndarlegt parhús á tveimur hæðum ásamt tvöföldum bílskúr á 780 m2 lóð við Lækjarhjalla 2 í Kópavogi. Um er að ræða vel staðsett eign með fallegum afgirtum garði, tvennum svölum með fallegu útsýni og bílskúr sem býður upp á útleigumöguleika. Hér er því um að ræða eign á frábærum stað og afar rúmgott sérbýli á stórri lóð með tvo raunhæfa útleigumöguleika, en einnig frábært fjölskylduhús fyrir þá sem vilja nýta alla eignina. Allar nánari upplýsingar veita Aðalsteinn s. 773-3532 / adalsteinn@fstorg.is og Margrét s. 856-5858 / margret@fstorg.is *** SMELLTU HÉR TIL AÐ SÆKJA SÖLUYFIRLIT ***
Birt heildarstærð eignar samkvæmt skv. fasteignaskrá HMS er 244,8 m² og skiptist í 202,8 m² parhús á tveimur hæðum ásamt 42 m² bílskúr sem stendur sér á lóð.
Lýsing eignar:
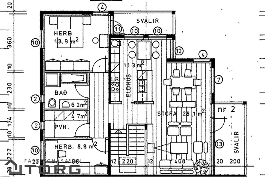
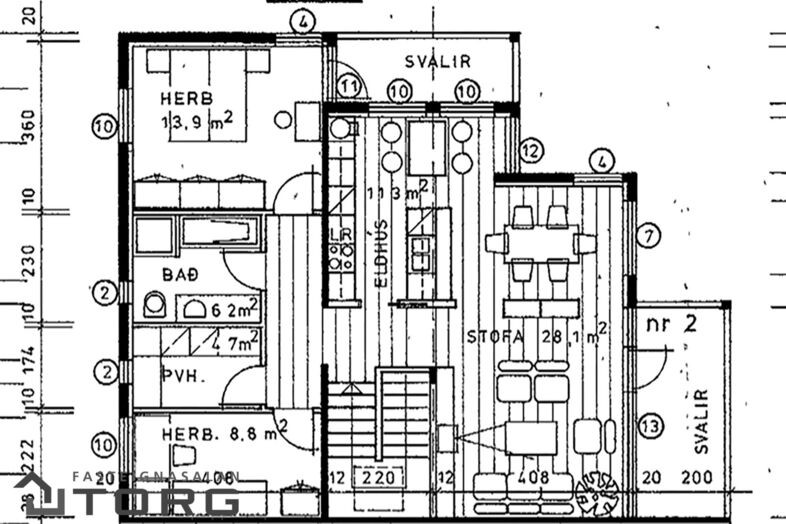
Komið er inn um aðalinngang á neðri hæð sem skiptist í stofu með útgengi á verönd og herbergi inn af því, gestasalerni, lagnaherbergi, tvö svefnherbergi, þvottaherbergi og baðherbergi við hliðar inngang. Hluta neðri hæðar má auðveldlega loka af frá aðalíbúð (sjá mynd) og leigja með sérinngangi á norð-austurhlið. Á efri hæð er svo rúmgott alrými með mikilli lofthæð og glugga á tvo vegu sem rúmar opið eldhús, borðstoðu og stofu ásamt útgengi á svalir til suð-vesturs. Inn af alrými er svefnherbergi, baðherbergi og hjónaherbergi með útgengi á svalir til suð-austurs. Bílskúrinn er með tvær bílskúrshurðir, baðherbergi með sturtu og allar lagnir til staðar fyrir eldhúseiningu.
Nánari skipting og lýsing á eignarhlutum:
NEÐRI HÆÐ
Forstofa er með vönduðum skápum og flísum á gólfi við inngang á suð-austur hlið.
Lagnaherbergi er inn af forstofu með hitagrind og stýringu fyrir heitan pott.
Gestasalerni er við forstofugang með vaskaskáp, veggskáp og salerni.
Sjónvarpsherbergi er rúmgott inn af forstofugangi með gegnheilu harðviðarparketi, stórum gluggum og útgengi út á verönd og garð.
Verönd er timburklædd með heitum potti og opin út í afgirtan garð.
Herbergi (skrifstofa) er inn af sjónvarpsherbergi með gegnheilu harðviðarparketi
Gangur sem tengir saman aðrar vistaverur neðri hæðar með gegnheilu harðviðarparketi og stiga sem liggur upp á efri hæð.
Svefnherbergi I er rúmgott með góðum glugga, vönduðum fataskáp og gegnheilu harðviðarparketi.
Svefnherbergi II er rúmgott með glugga á tvo vegu, vönduðum fataskáp og gegnheilu harðviðarparketi.
Þvottaherbergi er með innréttingu með efri og neðri skápum, borðplötu og vaski ásamt glugga með opnanlegu fagi og dúk á gólfi.
Baðherbergi (auka) er með flísum hátt og lágt, vaskaskáp, veggskáp og upphengdu salerni ásamt "walk inn" sturtu með hurð úr hertu gleri.
Forstofa #2 er við auka inngang á norð-austurhlið og eru flísar á gólfi.
Hol (við stiga) er með gegnheilu harðviðarparketi
Stigi á milli hæða er steyptur með ásettu gegnheilu harðviðarparketi og snyrtilegu hvítu handriði.
EFRI HÆÐ
Alrými er bjart og rúmgott með aukinni lofthæð og stórum gluggum sem rúmar mjög auðveldlega eldhús, borðstofu og setustofu.
Eldhús er með vandaðri sérsmíðaðri innréttingu og nægu skápaplássi í svörtum lit og fallegum við með marmaraflísar á milli skápa og innbyggðri lýsingu. Eldunareyja er með áföstum borðkrók sem rúmar 4-5 stóla.
Setustofa er við glugga hjá svölum og borðstofa er sett hinum megin við útgang á svalir, nær eldunareyju.
Svalir eru rúmgóðar (10 m2) og snúa til suð-vesturs. Harðviðarflísar eru á svalagólfi.
Gangur er við hliðina á stiga og tengir saman aðrar vistaverur efri hæðar með gegnheilu harðviðarparketi.
Svefnherbergi III er rúmgott með góðum glugga, vönduðum fataskáp og gegnheilu harðviðarparketi.
Svefnherbergi IV (hjón) er mjög rúmgott með glugga á tvo vegu og útgengi á suður svalir ásamt vönduðum fataskáp og gegnheilu harðviðarparketi.
Svalir við hjónaherbergi snúa til suð-austurs.
Baðherbergi (aðal) er með fallegum og vönduðum innréttingum, upphengdu salerni, baðkari með sturtu og nægu skápaplássi. Allt flísalagt hátt og lágt með vönduðum flísum.
BÍLSKÚR
Tvöfalldur bílskúr er 42 m2 að stærð og er með tveimur bílskúrshurðum (án opnunar). Í bílskúr er baðherbergi með glugga, salerni, vaski, veggskáp og sturtuklefa (notuð tæki fylgja). Búið er að útbúa bílskúrinn undir útleigu með að klæða vegg á bak við bílskúrshurðir.
Stórt bílaplan er við bílskúr sem rúmar alveg fjóra bíla og er uppsett hleðslustöð við bílskúr.
LÓÐ
Heildarstærð lóðar er 780 m2 og er garðurinn bæði gróinn og fallegur ásamt að vera alveg afgirtur með grindverki. Ýmsir möguleikar eru á að nýta lóðina enn betur, t.d. á bak við bílskúr með að setja geymsluskúr.
** HVERS VIRÐI ER ÞÍN EIGN? - SMELLTU HÉR FYRIR FRÍTT VERÐMAT **
Allar nánari upplýsingar veita:
Aðalsteinn Bjarnason - Löggiltur fasteignasali / s.773-3532 / adalsteinn@fstorg.is
Margrét Rós Einarsdóttir - Löggiltur fasteignasali / s.856-5858 / margret@fstorg.is
Um skoðunar- og aðgæsluskyldu:
Í lögum um fasteignakaup nr. 40/2002 er kveðið á um ríka skoðunarskyldu kaupenda á fasteignum. Væntanlegum kaupendum er bent á að kynna sér vel ástand fasteigna við skoðun og fyrir tilboðsgerð og ef þurfa þykir að leita til sérfræðinga um nánari ástandsskoðun. Almennt getur kaupandi ekki borið fyrir sig að ástand eignar sé annað en það sem hann hefði mátt sjá við slíka skoðun.
Forsendur söluyfirlits:
Söluyfirlit er samið af fasteignasala í samræmi við ákvæði laga nr. 70/2015. Þær upplýsingar sem fram koma í söluyfirliti þessu eru sóttar í opinberar skrár, til seljanda sjálfs og eftir atvikum til húsfélags. Seljandi veitir upplýsingar um eign í samræmi við upplýsingaskyldu laga um fasteignakaup nr. 40/2002, og ábyrgist að þær séu réttar. Fasteignasali sannreynir að þær upplýsingar séu réttar með sjónskoðun á eigninni. Fasteignasali getur ekki fullyrt um ástand og eiginleika þeirra hluta fasteigna sem ekki eru aðgengilegir og sjást ekki berum augum, t.d. lagnir, dren, skólp og þak. Það sama á við um staðhæfingar seljanda eignar um viðhald og einstaka framkvæmdir.
Gjöld sem kaupandi þarf að standa straum af vegna kaupanna:
Stimpilgjald af kaupsamningi sem er hlutfall af fasteignamati. Stimpilgjald er 0,8% fyrir einstaklinga (0,4% við fyrstu kaup) og 1,6% fyrir lögaðila.
Þinglýsingargjald af kaupsamningi, veðskuldabréfum, veðleyfum o.fl. Þinglýsingargjald er kr. 2.700,- fyrir hvert skjal.
Lántökugjald lánastofnunar. Um lántökugjald vísast í gjaldskrá viðkomandi lánveitanda.
Umsýsluþóknun fasteignasölu skv. gjaldskrá.
Ef um nýbyggingu er að ræða greiðir kaupandi skipulagsgjald, 0,3% af brunabótamáti, þegar það er lagt á.
Birt heildarstærð eignar samkvæmt skv. fasteignaskrá HMS er 244,8 m² og skiptist í 202,8 m² parhús á tveimur hæðum ásamt 42 m² bílskúr sem stendur sér á lóð.
Lýsing eignar:
Komið er inn um aðalinngang á neðri hæð sem skiptist í stofu með útgengi á verönd og herbergi inn af því, gestasalerni, lagnaherbergi, tvö svefnherbergi, þvottaherbergi og baðherbergi við hliðar inngang. Hluta neðri hæðar má auðveldlega loka af frá aðalíbúð (sjá mynd) og leigja með sérinngangi á norð-austurhlið. Á efri hæð er svo rúmgott alrými með mikilli lofthæð og glugga á tvo vegu sem rúmar opið eldhús, borðstoðu og stofu ásamt útgengi á svalir til suð-vesturs. Inn af alrými er svefnherbergi, baðherbergi og hjónaherbergi með útgengi á svalir til suð-austurs. Bílskúrinn er með tvær bílskúrshurðir, baðherbergi með sturtu og allar lagnir til staðar fyrir eldhúseiningu.
Nánari skipting og lýsing á eignarhlutum:
NEÐRI HÆÐ
Forstofa er með vönduðum skápum og flísum á gólfi við inngang á suð-austur hlið.
Lagnaherbergi er inn af forstofu með hitagrind og stýringu fyrir heitan pott.
Gestasalerni er við forstofugang með vaskaskáp, veggskáp og salerni.
Sjónvarpsherbergi er rúmgott inn af forstofugangi með gegnheilu harðviðarparketi, stórum gluggum og útgengi út á verönd og garð.
Verönd er timburklædd með heitum potti og opin út í afgirtan garð.
Herbergi (skrifstofa) er inn af sjónvarpsherbergi með gegnheilu harðviðarparketi
Gangur sem tengir saman aðrar vistaverur neðri hæðar með gegnheilu harðviðarparketi og stiga sem liggur upp á efri hæð.
Svefnherbergi I er rúmgott með góðum glugga, vönduðum fataskáp og gegnheilu harðviðarparketi.
Svefnherbergi II er rúmgott með glugga á tvo vegu, vönduðum fataskáp og gegnheilu harðviðarparketi.
Þvottaherbergi er með innréttingu með efri og neðri skápum, borðplötu og vaski ásamt glugga með opnanlegu fagi og dúk á gólfi.
Baðherbergi (auka) er með flísum hátt og lágt, vaskaskáp, veggskáp og upphengdu salerni ásamt "walk inn" sturtu með hurð úr hertu gleri.
Forstofa #2 er við auka inngang á norð-austurhlið og eru flísar á gólfi.
Hol (við stiga) er með gegnheilu harðviðarparketi
Stigi á milli hæða er steyptur með ásettu gegnheilu harðviðarparketi og snyrtilegu hvítu handriði.
EFRI HÆÐ
Alrými er bjart og rúmgott með aukinni lofthæð og stórum gluggum sem rúmar mjög auðveldlega eldhús, borðstofu og setustofu.
Eldhús er með vandaðri sérsmíðaðri innréttingu og nægu skápaplássi í svörtum lit og fallegum við með marmaraflísar á milli skápa og innbyggðri lýsingu. Eldunareyja er með áföstum borðkrók sem rúmar 4-5 stóla.
Setustofa er við glugga hjá svölum og borðstofa er sett hinum megin við útgang á svalir, nær eldunareyju.
Svalir eru rúmgóðar (10 m2) og snúa til suð-vesturs. Harðviðarflísar eru á svalagólfi.
Gangur er við hliðina á stiga og tengir saman aðrar vistaverur efri hæðar með gegnheilu harðviðarparketi.
Svefnherbergi III er rúmgott með góðum glugga, vönduðum fataskáp og gegnheilu harðviðarparketi.
Svefnherbergi IV (hjón) er mjög rúmgott með glugga á tvo vegu og útgengi á suður svalir ásamt vönduðum fataskáp og gegnheilu harðviðarparketi.
Svalir við hjónaherbergi snúa til suð-austurs.
Baðherbergi (aðal) er með fallegum og vönduðum innréttingum, upphengdu salerni, baðkari með sturtu og nægu skápaplássi. Allt flísalagt hátt og lágt með vönduðum flísum.
BÍLSKÚR
Tvöfalldur bílskúr er 42 m2 að stærð og er með tveimur bílskúrshurðum (án opnunar). Í bílskúr er baðherbergi með glugga, salerni, vaski, veggskáp og sturtuklefa (notuð tæki fylgja). Búið er að útbúa bílskúrinn undir útleigu með að klæða vegg á bak við bílskúrshurðir.
Stórt bílaplan er við bílskúr sem rúmar alveg fjóra bíla og er uppsett hleðslustöð við bílskúr.
LÓÐ
Heildarstærð lóðar er 780 m2 og er garðurinn bæði gróinn og fallegur ásamt að vera alveg afgirtur með grindverki. Ýmsir möguleikar eru á að nýta lóðina enn betur, t.d. á bak við bílskúr með að setja geymsluskúr.
** HVERS VIRÐI ER ÞÍN EIGN? - SMELLTU HÉR FYRIR FRÍTT VERÐMAT **
Allar nánari upplýsingar veita:
Aðalsteinn Bjarnason - Löggiltur fasteignasali / s.773-3532 / adalsteinn@fstorg.is
Margrét Rós Einarsdóttir - Löggiltur fasteignasali / s.856-5858 / margret@fstorg.is
Um skoðunar- og aðgæsluskyldu:
Í lögum um fasteignakaup nr. 40/2002 er kveðið á um ríka skoðunarskyldu kaupenda á fasteignum. Væntanlegum kaupendum er bent á að kynna sér vel ástand fasteigna við skoðun og fyrir tilboðsgerð og ef þurfa þykir að leita til sérfræðinga um nánari ástandsskoðun. Almennt getur kaupandi ekki borið fyrir sig að ástand eignar sé annað en það sem hann hefði mátt sjá við slíka skoðun.
Forsendur söluyfirlits:
Söluyfirlit er samið af fasteignasala í samræmi við ákvæði laga nr. 70/2015. Þær upplýsingar sem fram koma í söluyfirliti þessu eru sóttar í opinberar skrár, til seljanda sjálfs og eftir atvikum til húsfélags. Seljandi veitir upplýsingar um eign í samræmi við upplýsingaskyldu laga um fasteignakaup nr. 40/2002, og ábyrgist að þær séu réttar. Fasteignasali sannreynir að þær upplýsingar séu réttar með sjónskoðun á eigninni. Fasteignasali getur ekki fullyrt um ástand og eiginleika þeirra hluta fasteigna sem ekki eru aðgengilegir og sjást ekki berum augum, t.d. lagnir, dren, skólp og þak. Það sama á við um staðhæfingar seljanda eignar um viðhald og einstaka framkvæmdir.
Gjöld sem kaupandi þarf að standa straum af vegna kaupanna:
Stimpilgjald af kaupsamningi sem er hlutfall af fasteignamati. Stimpilgjald er 0,8% fyrir einstaklinga (0,4% við fyrstu kaup) og 1,6% fyrir lögaðila.
Þinglýsingargjald af kaupsamningi, veðskuldabréfum, veðleyfum o.fl. Þinglýsingargjald er kr. 2.700,- fyrir hvert skjal.
Lántökugjald lánastofnunar. Um lántökugjald vísast í gjaldskrá viðkomandi lánveitanda.
Umsýsluþóknun fasteignasölu skv. gjaldskrá.
Ef um nýbyggingu er að ræða greiðir kaupandi skipulagsgjald, 0,3% af brunabótamáti, þegar það er lagt á.
Ár
Fasteignamat
Kaupverð
Stærð
Fermetraverð
24. apr. 2019
85.100.000 kr.
87.000.000 kr.
244.8 m²
355.392 kr.
Byggt á upplýsingum úr Þjóðskrá Íslands frá 2006-2026