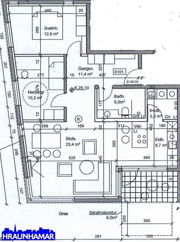
Geislaskarð, 221 Hafnarfjörður