Upplýsingar
Byggt 2004
122 m²
0 herb.
Sérinngangur
Lýsing
Hraunhamar kynnir: Afar gott 14 hesta hesthús á félagssvæði Sörla í Hafnarfirði. (122 fm) Um er að ræða endabil í 3ja húsa lengju. Á svæðinu er verið að byggja eina glæsilegustu reiðhöll landsins með öllu tilheyrandi !
Húsið er steypt, einangrað og klætt að utan með bárujárni. (viðhaldslétt) Stórt gerði og annað minna gerði fylgir. Steypt stétt í kringum húsið með hitalögnum að hluta. Hitaveita.
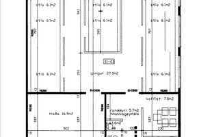
Húsið skiptist m.a. þannig: Hesthús innréttað fyrir 14 hesta, (samkv.gömlu reglugerðinni) nokkrar eins hesta stíur þ.m.t. stóðhestastíur. Plast og ryðfrítt efni í milligerðum. Rúmgóð hlaða með bílskúrshurð. Talía í hlöðu.
Fín lofthæð í hesthúsi og nokkri velux opnanlegir gluggar í lofti. Húsið er bjart og rúmgott enda endabil. Fín járningaraðstaða/baðaðstaða. Góð kaffistofa með snyrtingu innaf. Vandaðar innréttingar.
Virkilega gott hesthús á besta stað í hverfinu. Frábærar reiðleiðir í fögru umhverfi.
Nánari uppl gefur Helgi Jón Harðarson sölustj. s. 893-2233 eða helgi@hraunhamar.is
og Freyja M. Sigurðardóttir lgf. s. 520-7500 eða freyja@hraunhamar.is
Skoðunarskylda:
Í lögum um fasteignakaup nr. 40/2002 er kveðið á um ríka skoðunarskyldu kaupenda á fasteignum. Hraunhamar fasteignasala vill benda væntanlegum kaupendum á að kynna sér vel ástand fasteigna fyrir kauptilboðsgerð og ef þurfa þykir að leita til sérfræðinga fyrir nánari ástandsskoðun.
Gjöld sem kaupandi þarf að standa straum af vegna kaupanna:
1. Stimpilgjald af kaupsamningi, fyrstu kaup (0,4%), almenn kaup (0,8%), lögaðilar (1,6%) af heildarfasteignamati.
2. Þinglýsingargjald af kaupsamningi, veðskuldabréfi, mögulegu veðleyfi o.fl. – kr. 2.700 kr. af hverju skjali.
3. Lántökugjald lánastofnunar er skv. verðskrá viðkomandi lánastofnunar.
4. Umsýslugjald til fasteignasölu skv. þjónustusamningi
Hraunhamar er elsta fasteignasala Hafnarfjarðar, stofnuð 1983.
Hraunhamar, í fararbroddi í rúm 40 ár. – Hraunhamar.is
Smelltu hér til að fá frítt söluverðmat.
Smelltu hér til að fá söluyfirlit sent strax.
Húsið er steypt, einangrað og klætt að utan með bárujárni. (viðhaldslétt) Stórt gerði og annað minna gerði fylgir. Steypt stétt í kringum húsið með hitalögnum að hluta. Hitaveita.
Húsið skiptist m.a. þannig: Hesthús innréttað fyrir 14 hesta, (samkv.gömlu reglugerðinni) nokkrar eins hesta stíur þ.m.t. stóðhestastíur. Plast og ryðfrítt efni í milligerðum. Rúmgóð hlaða með bílskúrshurð. Talía í hlöðu.
Fín lofthæð í hesthúsi og nokkri velux opnanlegir gluggar í lofti. Húsið er bjart og rúmgott enda endabil. Fín járningaraðstaða/baðaðstaða. Góð kaffistofa með snyrtingu innaf. Vandaðar innréttingar.
Virkilega gott hesthús á besta stað í hverfinu. Frábærar reiðleiðir í fögru umhverfi.
Nánari uppl gefur Helgi Jón Harðarson sölustj. s. 893-2233 eða helgi@hraunhamar.is
og Freyja M. Sigurðardóttir lgf. s. 520-7500 eða freyja@hraunhamar.is
Skoðunarskylda:
Í lögum um fasteignakaup nr. 40/2002 er kveðið á um ríka skoðunarskyldu kaupenda á fasteignum. Hraunhamar fasteignasala vill benda væntanlegum kaupendum á að kynna sér vel ástand fasteigna fyrir kauptilboðsgerð og ef þurfa þykir að leita til sérfræðinga fyrir nánari ástandsskoðun.
Gjöld sem kaupandi þarf að standa straum af vegna kaupanna:
1. Stimpilgjald af kaupsamningi, fyrstu kaup (0,4%), almenn kaup (0,8%), lögaðilar (1,6%) af heildarfasteignamati.
2. Þinglýsingargjald af kaupsamningi, veðskuldabréfi, mögulegu veðleyfi o.fl. – kr. 2.700 kr. af hverju skjali.
3. Lántökugjald lánastofnunar er skv. verðskrá viðkomandi lánastofnunar.
4. Umsýslugjald til fasteignasölu skv. þjónustusamningi
Hraunhamar er elsta fasteignasala Hafnarfjarðar, stofnuð 1983.
Hraunhamar, í fararbroddi í rúm 40 ár. – Hraunhamar.is
Smelltu hér til að fá frítt söluverðmat.
Smelltu hér til að fá söluyfirlit sent strax.