Löggiltir fasteignasalar innan Félags fasteignasala:
Eiríkur Svanur Sigfússon
Aron Freyr Eiríksson
Melkorka Guðmundsdóttir
Kristófer Fannar Guðmundsson
Svala Haraldsdóttir
Stefán Rafn Sigurmannsson
Arnór Daði Eiríksson
Upplýsingar
svg
Byggt 2023
svg
157,5 m²
svg
4 herb.
svg
3 baðherb.
svg
3 svefnh.
svg
Þvottahús
svg
Sérinngangur

Lýsing

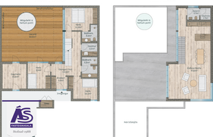
Glæsileg ný 157,5 - 159,7 fm raðhús á tveimur hæðum, alls 7 stk raðhús, við Hjallabraut 45-49 í Hafnarfirði. Frábær staðsetning í rótgrónu hverfi miðsvæðis í Hafnarfirði. 
Húsin skilast fullbúin að utan og innan en án megingólfefna. Votrými verða flísalögð. 

Húsin eru einstaklega vönduð með Free@Home hússtjórnunarkerfi, sjónsteypuveggjum að hluta, vönduðum innréttingum, stórum svölum o.fl. o.fl.


Smelltu hér til að skoða söluvef verkefnisins og laus hús.

Stærðir: 157,5 - 159,7 fm
Herbergi: 4ra herbergja (3 svefnh.)
Verð: 165,8 - 167,8 m.kr.
Afhending: Vor 2025

- Innréttingar frá Brúnás, sýnilegir fletir á innréttingum verða úr Gladstone melamin efni og að innan úr ljósgráum spónaplötum. 
- Borðplötur í eldhúsi verða úr Virgo Quartz steini frá S. Helgasyni.
- Eldhústæki: Vaskur og blöndunartæki verða í innréttingu frá Tengi. Vaskur verður undirlímdur í borðplötu. Einnig mun fylgja helluborð með viftu, ofn með blæstri, örbylgjuofn, innbyggð uppþvottavél með áklæddum fronti og innbyggður kæliskápur. Raftæki sem fylgja eldhúsi koma frá Bræðrunum Ormsson.
- Sjá nánar um skil í skilalýsingu seljanda.

Byggingaraðili er traustur verktaki til fjölda ára: Byggingarfélag Gylfa og Gunnars hf

Bókið skoðun og fáið nánari upplýsingar hjá sölumönnum Ás fasteignasölu: 
Aron Freyr Eiríksson löggiltur fasteignasali s. 772-7376 / aron@as.is
Stefán Rafn Sigurmannsson löggiltur fasteignasali s. 655-7000 / stefan@as.is
Svala Haraldsdóttir löggiltur fasteignasali s. 820-9699 / svala@as.is
Arnór Daði Eiríksson aðstoðarm. fasteignasala s. 777-0939 / arnor@as.is
Eiríkur Svanur Sigfússon löggiltur fasteignasali í s. 862-3377 / eirikur@as.is

Frábær staðsetning þar sem stutt er í helstu þjónustu og falleg útivistarsvæði.

Ás fasteignasala er rótgróið fyrirtæki sem hefur veitt alla almenna þjónustu í fasteignaviðskiptum frá árinu 1988.
www.facebook.com/asfasteignasala
www.instagram.com/as_fasteignasala
www.as.is

img
Aron Freyr Eiríksson
Lögg.fasteignasali innan félags fasteignasala
Ás fasteignasala
Fjarðargötu 17, 220 Hafnarfirði
Ás fasteignasala

Ás fasteignasala

Fjarðargötu 17, 220 Hafnarfirði
phone
img

Aron Freyr Eiríksson

Fjarðargötu 17, 220 Hafnarfirði
Ás fasteignasala

Ás fasteignasala

Fjarðargötu 17, 220 Hafnarfirði
phone

Aron Freyr Eiríksson

Fjarðargötu 17, 220 Hafnarfirði