Upplýsingar
Verðsaga
Byggt 1903
67,1 m²
2 herb.
1 svefnh.
Lýsing
Domusnova, Ingunn Björg og Vilborg kynna nýtt í einkasölu:
Einstaklega fallega og sjarmerandi tveggja herbergja íbúð við Kirkjutorg 6 í hjarta Reykjavíkur.
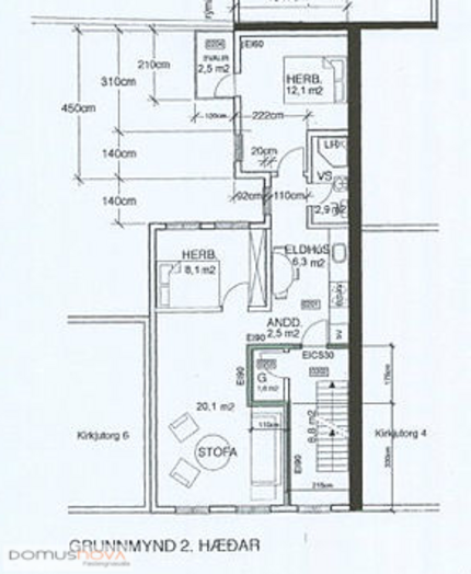
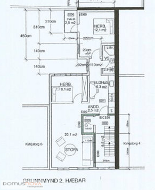
Um er að ræða vel skipulagða og bjarta íbúð á annari hæð í fallegu eldra húsi. Eignin skartar mikilli lofthæð í öllum rýmum sem sjaldgæft er að sjá í eldri húsum. Innra skipulag er eftirfarandi: Rúmgóð stofa, borðstofa og eldhús í sameiginlegu rými, svefnherbergi og baðherbergi. Gólfefni íbúðarinnar er gegnheilt eikarparket á eldhúsi, stofu og borðstofu, kókosteppi er á gangi og svefnherbergi, flisar eru á baðherbergisgólfi. Friðsælt port er baka til við húsið. Skv. skráningu HMS er eignin skráð eru 67,10 fm2.
Staðsetning hússins er einstök, í friðsælli lítilli götu í hjarta Reykjavíkurborgar sem nýtur mikils næðis frá bílaumferð. Dómkirkjan, Alþingishúsið, Ráðhúsið, Iðnó og Reykjavíkurtjörn eru í örstuttu göngufæri ásamt iðandi mannlífi. Einnig eru ótal veitingastaðir, kaffihús, menningarviðburðir, verslanir og fallegar gönguleiðir um hinar sjarmerandi götur miðborgarinnar.
Eignin getur verið laus strax.
Nánari upplýsingar veitir:
Ingunn Björg löggiltur fasteignasali / s.856 3566 / ingunn@domusnova.is
Nánari lýsing:
Gengið er upp teppalagðan stiga á 2. hæð hússins.
Eldhús: Eldhúsið er í alrými með borðstofu/stofu. Innrétting með flísum á milli efri og neðri skápa. Tengi fyrir uppþvottavél og þvottavél. Keramik helluborð.
Stofa/borðstofa með gluggum til norðurs og suðurs. Einstaklega falleg og björt með eikarparketi. Lofthæðin er aukin en hún er um 270 cm. Hægt væri að stúka út auka herbergi frá borðstofu, sbr. teikningu.
Baðherbergi: Endurnýjað fyrir 14 árum að sögn seljanda og er nú flísalagt í hólf og gólf með upphengdu salerni, handklæðaofni og "walk in" sturtu með glervegg.
Svefnherbergi: Lítill gangur með glugga tengir alrýmið við svefnherbergið. Herbergið er einstaklega bjart með svo kölluðum "frönskum svölum" til austurs og eikarparketi á gólfi. Heimilt er að bæta við svölum sem útgengt er á skv. teikningu.
Geymsla: Aðkoma að geymslu er frá porti þar sem vatnsinntak hússins er.
Húsið var byggt árið 1903 en í kringum árið 2000 var allt húsið tekið í gegn bæði að utan sem innan að sögn seljenda.
Um skoðunar- og aðgæsluskyldu:
Í lögum um fasteignakaup nr. 40/2002 er kveðið á um ríka skoðunarskyldu kaupenda á fasteignum. DOMUSNOVA fasteignasala bendir væntanlegum kaupendum á að kynna sér vel ástand fasteigna við skoðun og fyrir tilboðsgerð og ef þurfa þykir að leita til sérfræðinga um nánari ástandsskoðun.
Forsendur söluyfirlits:
Söluyfirlit er samið af fasteignasala í samræmi við ákvæði laga nr. 70/2015. Þær upplýsingar sem fram koma í söluyfirliti þessu eru sóttar í opinberar skrár, til seljanda sjálfs og eftir atvikum til húsfélags. Seljandi veitir upplýsingar um eign í samræmi við upplýsingaskyldu laga um fasteignakaup nr. 40/2002, og ábyrgist að þær séu réttar. Fasteignasali sannreynir að þær upplýsingar séu réttar með sjónskoðun á eigninni. Fasteignasali getur ekki fullyrt um ástand og eiginleika þeirra hluta fasteigna sem ekki eru aðgengilegir og sjást ekki berum augum, t.d. lagnir, dren, skólp og þak. Það sama á við um staðhæfingar seljanda eignar um viðhald og einstaka framkvæmdir.
Gjöld sem kaupandi þarf að standa straum af vegna kaupanna:Stimpilgjald af kaupsamningi sem er hlutfall af fasteignamati. Stimpilgjald er 0,8% fyrir einstaklinga (0,4% við fyrstu kaup) og 1,6% fyrir lögaðila. Þinglýsingargjald af kaupsamningi, veðskuldabréfum, veðleyfum o.fl. Þinglýsingargjald er kr. 2.700,- fyrir hvert skjal. Lántökugjald lánastofnunar. Um lántökugjald vísast í gjaldskrá viðkomandi lánveitanda. Umsýsluþóknun fasteignasölu skv. gjaldskrá. Ef um nýbyggingu er að ræða greiðir kaupandi skipulagsgjald, 0,3% af brunabótamáti, þegar það er lagt á.
Einstaklega fallega og sjarmerandi tveggja herbergja íbúð við Kirkjutorg 6 í hjarta Reykjavíkur.
Um er að ræða vel skipulagða og bjarta íbúð á annari hæð í fallegu eldra húsi. Eignin skartar mikilli lofthæð í öllum rýmum sem sjaldgæft er að sjá í eldri húsum. Innra skipulag er eftirfarandi: Rúmgóð stofa, borðstofa og eldhús í sameiginlegu rými, svefnherbergi og baðherbergi. Gólfefni íbúðarinnar er gegnheilt eikarparket á eldhúsi, stofu og borðstofu, kókosteppi er á gangi og svefnherbergi, flisar eru á baðherbergisgólfi. Friðsælt port er baka til við húsið. Skv. skráningu HMS er eignin skráð eru 67,10 fm2.
Staðsetning hússins er einstök, í friðsælli lítilli götu í hjarta Reykjavíkurborgar sem nýtur mikils næðis frá bílaumferð. Dómkirkjan, Alþingishúsið, Ráðhúsið, Iðnó og Reykjavíkurtjörn eru í örstuttu göngufæri ásamt iðandi mannlífi. Einnig eru ótal veitingastaðir, kaffihús, menningarviðburðir, verslanir og fallegar gönguleiðir um hinar sjarmerandi götur miðborgarinnar.
Eignin getur verið laus strax.
Nánari upplýsingar veitir:
Ingunn Björg löggiltur fasteignasali / s.856 3566 / ingunn@domusnova.is
Nánari lýsing:
Gengið er upp teppalagðan stiga á 2. hæð hússins.
Eldhús: Eldhúsið er í alrými með borðstofu/stofu. Innrétting með flísum á milli efri og neðri skápa. Tengi fyrir uppþvottavél og þvottavél. Keramik helluborð.
Stofa/borðstofa með gluggum til norðurs og suðurs. Einstaklega falleg og björt með eikarparketi. Lofthæðin er aukin en hún er um 270 cm. Hægt væri að stúka út auka herbergi frá borðstofu, sbr. teikningu.
Baðherbergi: Endurnýjað fyrir 14 árum að sögn seljanda og er nú flísalagt í hólf og gólf með upphengdu salerni, handklæðaofni og "walk in" sturtu með glervegg.
Svefnherbergi: Lítill gangur með glugga tengir alrýmið við svefnherbergið. Herbergið er einstaklega bjart með svo kölluðum "frönskum svölum" til austurs og eikarparketi á gólfi. Heimilt er að bæta við svölum sem útgengt er á skv. teikningu.
Geymsla: Aðkoma að geymslu er frá porti þar sem vatnsinntak hússins er.
Húsið var byggt árið 1903 en í kringum árið 2000 var allt húsið tekið í gegn bæði að utan sem innan að sögn seljenda.
Um skoðunar- og aðgæsluskyldu:
Í lögum um fasteignakaup nr. 40/2002 er kveðið á um ríka skoðunarskyldu kaupenda á fasteignum. DOMUSNOVA fasteignasala bendir væntanlegum kaupendum á að kynna sér vel ástand fasteigna við skoðun og fyrir tilboðsgerð og ef þurfa þykir að leita til sérfræðinga um nánari ástandsskoðun.
Forsendur söluyfirlits:
Söluyfirlit er samið af fasteignasala í samræmi við ákvæði laga nr. 70/2015. Þær upplýsingar sem fram koma í söluyfirliti þessu eru sóttar í opinberar skrár, til seljanda sjálfs og eftir atvikum til húsfélags. Seljandi veitir upplýsingar um eign í samræmi við upplýsingaskyldu laga um fasteignakaup nr. 40/2002, og ábyrgist að þær séu réttar. Fasteignasali sannreynir að þær upplýsingar séu réttar með sjónskoðun á eigninni. Fasteignasali getur ekki fullyrt um ástand og eiginleika þeirra hluta fasteigna sem ekki eru aðgengilegir og sjást ekki berum augum, t.d. lagnir, dren, skólp og þak. Það sama á við um staðhæfingar seljanda eignar um viðhald og einstaka framkvæmdir.
Gjöld sem kaupandi þarf að standa straum af vegna kaupanna:
Ár
Fasteignamat
Kaupverð
Stærð
Fermetraverð
5. maí. 2022
41.950.000 kr.
51.900.000 kr.
67.1 m²
773.472 kr.
15. des. 2009
17.400.000 kr.
21.500.000 kr.
67.1 m²
320.417 kr.
Byggt á upplýsingum úr Þjóðskrá Íslands frá 2006-2026