Löggiltir fasteignasalar innan Félags fasteignasala:
Heiðrekur Þór Guðmundsson
Elísabet Kvaran
Karólína Íris Jónsdóttir
Upplýsingar
svg
Byggt 2007
svg
248,9 m²
svg
6 herb.
svg
2 baðherb.
svg
4 svefnh.
svg
Þvottahús
svg
Garður
svg
Bílskúr
svg
Útsýni
svg
Sérinngangur
svg
Bílastæði
svg
Svalir

Lýsing

Viltu fasteignir kynna Árakur 31, 210 Garðabæ. Glæsilegt 5-6 herbergja raðhús á tveimur hæðum með innbyggðum bílskúr

Á sölusíðu eignarinnar getur þú nálgast sölyfirlit og önnur gögn um eignina.
Einnig er hægt að gera tilboð í eignina á sölusíðunni.

Nánari upplýsingar veitir Heiðrekur Guðmundsson, löggiltur fasteignasali í 845-9000 / heidrekur@viltu.is

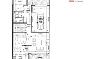
Árakur 31 er skv HMS 248.9 m2 raðhús sem skiptast í 219,5 m2 íbúðarrými og 29,4 m2 innbyggðan bílskúr. 4-5 svefnherbergi.
Eignin skiptist í forstofu, gang/hol, eldhús, stóra stofu/borðstofu, baðherbergi, geymslu/svefnherbergi og bílskúr á neðri hæð. Á efri hæð eru þvottahús, baðherbergi, tvö mjög stór svefnherbergi og hjónasvíta með sér fataherbergi. Auðvelt er að bæta við fjórða svefnherberginu á hæðinni. Frá efri hæð er fallegt útsýni yfir Arnarnesvoginn til Bessastaða. Vandaður ca 100m2 sólpallur til suðurs og heitur pottur. Húsið er vel staðsett á rólegum, vinsælum og fjölskylduvænum stað í Akrahverfinu.

Nánari lýsing
Forstofa: Gengið er inn í rúmgóða forstofu með fatahengi og inngangi í bílskúr og geymslu sem er notuð sem herbergi. Parket á gólfi.
Geymsla: Nýtt sem herbergi í dag. Rúmgott með glugga. Parket á gólfi.
Baðherbergi: Flísalagt í hólf og gólf með sturtuaðstöðu og upphengdu klósetti.
Eldhús: Opið inn í miðrými hússins. Háglans svört innrétting með borðplötum úr steini. Vonduð heimilistæki úr Pininfarina línunni frá Gorenje.
Stofa / borðstofa: Björt og mjög rúmgóð með stórum gluggum. Útgengt sólpall. Parket á gólfi.
Pallur: Frá stofu er gengið á um 100m2 sólpall til suðurs. Heitur pottur og miklir mögleikar til að gera að algjörum sælureit.

Efri hæð: Úr miðrými húss er gengið um steyptan teppalagðan stiga upp á efri hæð.
Sjónvarpsherbergi: Frá stiga er komið inn í miðrými hæðar þaðan sem gengið er inn í aðrar vistarverur. Góð sjónvarpsstofa/fjölskyldurými. Þessu rými er auðvelt að breyta í fjórða svefnherbergið á hæðinni. Frá herberginu er gengið út á svalir. Parket á gólfum.
Herbergi 1: Stórt og rúmgott með parketi á gólfi.
Herbergi 2: Mjög stórt og rúmgott með parketi á gólfi.
Hjónasvíta: Stór og rúmgóð með fataherbergi. Parket á gólfi. Frá hjónasvítu er úttgengt á góðar suður svalir.
Baðherbergi: Gólf og votrými flísalögð. "Labb-inn" sturtuhorn og baðkar. Upphengt salerni, tengi fyrir handklæðaofn.
Þvottahús: Rúmgott með góðri innréttingu með plássi fyrir þvottavél og þurrkara í vinnuhæð. Ræstivaskur. Flísar á gólfi.

Bílskúr: Innangengt frá forstofu.
Bílaplan: Hellulagt bílaplan með hita.

Frábært tækifæri til að eignast fallega og mjög rúmgóða eign í fallegu umhverfi á eftirsóttu og fjölskylduvænum stað í Garðabæ.

Viltu fasteignir bjóða fasta söluþóknun 995.000 kr.
Allt innifalið.
Kynntu þér málið á Viltu.is

Fyrirvarar:

Í lögum um fasteignakaup nr. 40/2002 er kveðið á um ríka skoðunarskyldu kaupenda á fasteignum. Vill seljandi því skora á væntanlega kaupendur að kynna sér vel ástand fasteignarinnar fyrir kauptilboðsgerð og leita til þar til bærra sérfræðinga um nánari skoðun.

Þær upplýsingar sem fram koma í söluyfirliti þessu eru sóttar í opinberar skrár, til seljanda sjálfs og eftir atvikum til húsfélags. Seljandi veitir upplýsingar um eign í samræmi við upplýsingaskyldu laga um fasteignakaup nr. 40/2002.

img
Heiðrekur Þór Guðmundsson
Lögg.fasteignasali innan félags fasteignasala
Viltu fasteignir
Viltu fasteignir

Viltu fasteignir

phone
img

Heiðrekur Þór Guðmundsson

Viltu fasteignir

Viltu fasteignir

phone

Heiðrekur Þór Guðmundsson