Löggiltir fasteignasalar innan Félags fasteignasala:
Sverrir Kristinsson
Kjartan Hallgeirsson
Guðlaugur Ingi Guðlaugsson
Daði Hafþórsson
Gunnar Helgi Einarsson
Gunnar Bergmann Jónsson
Lilja Guðmundsdóttir
Jenný Sandra Gunnarsdóttir
Kári Sighvatsson
Upplýsingar
svg
Byggt 2008
svg
263 m²
svg
6 herb.
svg
2 baðherb.
svg
4 svefnh.
svg
Þvottahús
svg
Bílskúr
svg
Sérinngangur
Opið hús: 5. febrúar 2026 kl. 17:00 til 17:30

Opið hús fimmtudaginn 5. febrúar milli kl. 17:00 og 17:30

Lýsing

Eignamiðlun kynnir:

**Opið hús fimmtudaginn  5. febrúar milli kl. 17:00 og 17:30**

Einstaklega bjart og glæsilegt 263m² parhús þar af 30.6m² innbyggður bílskúr. Fjögur góð svefnherbergi. Virkilega góð fjölskyldu eign með fallegu útsýni yfir borgina. Gott útisvæði með heitum potti, verönd og opnu grænu svæði. 

Smellið hér til að fá söluyfirlit sent strax

Sjá video af eigninni

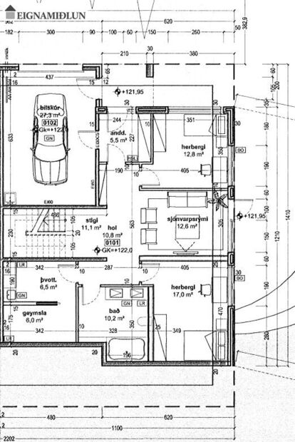
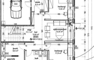
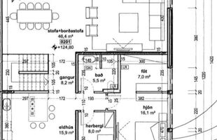
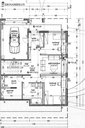
Samkvæmt skráningu HMS er birt flatarmál eignarinnar 263m², flatarmál íbúðarrýmis er 232,4m² og flatarmál geymslu er 30,6m².
Eignin telur forstofu, fjögur svefnherbergi, sjónvarpsrými, tvær stofur, eldhús, tvö baðherbergi, þvottaherbergi/geymslu ásamt innbyggðum bílskúr.

Nánari lýsing: 
Neðri hæð.

Komið er inn í rúmgóða forstofu með fatahengi, flísar á gófi. Frá forstofu er innangengt inn í flísalagðan bílskúr. Tvö rúmgóð svefnherbergi. Á milli herbergja er gott sjónvarpsrými með hurð útí garð, lítið mál að breyta þessu í fimmta svefnherbergið. Rúmgott baðherbergi með baðkari, handklæðaofni, vegghengt salerni, flísar á gólfi og í kringum baðkar. Stórt þvottaherbergi / geymsla á jarðhæð. Innfelld lýsing er á allri jarðhæðinni og harðparket á gólfum. 

Efri hæð.
Steyptur stigi á milli hæða. Þegar komið er upp á hæðina tekur á móti manni fallegt opið alrými sem tengir saman borðstofu, stofu og eldhús. Góð lofthæð á allri hæðinni sem er með innfelldri lýsingu. Eldhúsið er bjart með hvítri eldhúsinnrétting með góðu skápaplássi, spanhelluborð, ofn í vinnuhæð. Útgengt frá eldhúsi á fallega verönd og velhirtan garð sem snýr til suðurs. Borðstofan er með stórum gluggum með fallegu útsýni, útgengt frá borðstofu á svalir. Frá rúmgóðri stofunni er einnig fallegt útsýni, gert er ráð fyrir kamínu í stofu. Stórt hjónaherbergi með fataherbergi innaf, útgengt á verönd frá hjónaherberginu. Ágætis svefnherbergi er við hliðina á hjónaherbergi. Einnig er nýlega uppgert baðherbergi  á hæðinni með sturtu og handklæðaofni.

Lóðin er fallega frágengin með gróðri, pöllum og skjólveggjum. Steypt upphitað bílaplan framan við hús þar sem er pláss fyrir allt að fjóra bíla. Uppsett hleðslustöð fyrir rafmagnsbíla. Aftan við hús í suðurgarði er timburverönd, skjólveggir og heitur pottur (hitaveitu). 

Húsið er á vinsælum stað í Kórahverfinu í Kópavogi þar sem stutt er í náttúruna, golfvöll GKG, göngu og hjólaleiðir sem og alla helstu þjónustu, verslun, leik- og grunnskóla.

Nánari uppl.
Brynjar Þór Sumarliðason löggiltur fasteignasali og viðskiptafræðingur í síma 896 1168 - brynjar@eignamidlun.is

***
Ábyrg þjónusta í áratugi. Eignamiðlun var stofnuð 1957 og er elsta starfandi fasteignasala á Íslandi. Reynsla, heiðarleiki og þekking á fasteignamarkaðnum eru grunnur að farsælum viðskiptum. 

Eignamiðlun Grensásvegi 11, 108 Reykjavík - Opið frá kl. 9-17 mánudaga til fimmtudaga og 9-16 á föstudögum.

Heimasíða Eignamiðlunar

Eignamiðlun á Facebook

Eignamiðlun

Eignamiðlun

Grensásvegi 11, 108 Reykjavík
Eignamiðlun

Eignamiðlun

Grensásvegi 11, 108 Reykjavík