Löggiltir fasteignasalar innan Félags fasteignasala:
Hannes Steindórsson
Bogi Molby Pétursson
Guðrún Antonsdóttir
Heimir Hallgrímsson
Hrafnkell P. H. Pálmason
Viðar Marinósson
Elías Haraldsson
Kristján Þórir Hauksson
Albert Bjarni Úlfarsson
Ragnar Þorsteinsson
Þórey Ólafsdóttir
Andri Freyr Halldórsson
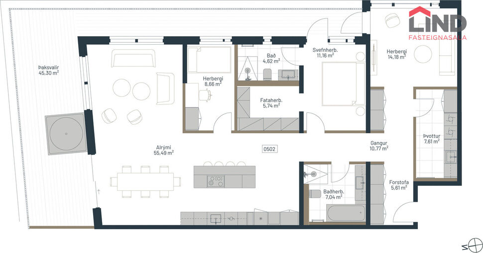
Upplýsingar
166,8 m²
4 herb.
2 baðherb.
3 svefnh.
Þvottahús
Bílastæði
Lyfta
Opið hús: 4. febrúar 2026
kl. 17:00
til 19:00
Opið hús: Hafnarbraut 18, 200 Kópavogur, Eignin verður sýnd miðvikudaginn 4. febrúar 2026 milli kl. 17:00 og kl. 19:00.
Lýsing
Hannes Steindórsson og Gunnar Valsson kynna með stolti:
Nýtt og einstaklega vandað fjölbýlishús við sjávarsíðuna á vestanverðu Kársnesi, nálægt fyrirhugaðri Fossvogsbrú.
Stórkostlegt útsýni til sjávar og fjalla, samfelldur útivistastígur meðfram strandlengjunni.
Allar upplýsingar veita: Hannes Steindórsson s.699-5008 hannes@fastlind.is og Gunnar Valsson s.699-3702 gunnar@fastlind.is
Hér má skoða allar íbúðir.
Húsið er 5.hæða lyftuhús með 52 íbúðum. Áhersla lögð á gott skipulag, björt og vistleg rými.
Sérsmíðaðar innréttingar frá Brúnás, flísar 60x60 Stone Italiana, aukin lofthæð og
hlaðnir milliveggir.
Húsið er klætt að utan með sérhannaðri þýskri álklæðningu. Áltré gluggar,
þykkar ítalskar QUARTZ borðplötur í ljósum lit, Stone Italiana frá S.Helgasyni.
Fullkomið loftskiptakerfi, sjálfstætt fyrir hverja íbúð. Hljóðdúkur í sameign, innfelld tæki, ísskápur og uppþvottavél fylgja. Svört tæki í eldhúsi. Gert er ráð fyrir hleðslustöðvum fyrir rafbíla í bílakjallara. Innfelld lýsing á 5.hæð. Svört tæki í eldhúsi. Eignirnar eru afhendar fullbúnar án gólfefna að undanskyldu baðherbergi og þvottahúsi, þar eru flísar. Á sérafnotareitum og völdum svölum er möguleiki á að koma fyrir rafmagnspotti. Aðgangsstýrð bílageymsla er í kjallara og flestum íbúðum fylgir sérmerkt einkastæði, ýmist eitt eða tvö.
Íbúð 502 er 166,8 fm íbúð á efstu hæð með 45 fm bambusklæddum þaksvölum og einstöku sjávarútsýni. Tvö baðherbergi, hjónasvíta með sér baðherbergi og fataherbergi, útgengt út á svalir.
Tvö rúmgóð svefnherbergi, sér þvottahús, 55 fm alrými, stofa, eldhús og borðstofa. Sérmerkt bílastæði í bílakjallara merkt B18 og geymsla merkt 0010.
Afhending: Apríl 2026
Allar upplýsingar veita: Hannes Steindórsson s.699-5008 hannes@fastlind.is og Gunnar Valsson s.699-3702 gunnar@fastlind.is
Nýtt og einstaklega vandað fjölbýlishús við sjávarsíðuna á vestanverðu Kársnesi, nálægt fyrirhugaðri Fossvogsbrú.
Stórkostlegt útsýni til sjávar og fjalla, samfelldur útivistastígur meðfram strandlengjunni.
Allar upplýsingar veita: Hannes Steindórsson s.699-5008 hannes@fastlind.is og Gunnar Valsson s.699-3702 gunnar@fastlind.is
Hér má skoða allar íbúðir.
Húsið er 5.hæða lyftuhús með 52 íbúðum. Áhersla lögð á gott skipulag, björt og vistleg rými.
Sérsmíðaðar innréttingar frá Brúnás, flísar 60x60 Stone Italiana, aukin lofthæð og
hlaðnir milliveggir.
Húsið er klætt að utan með sérhannaðri þýskri álklæðningu. Áltré gluggar,
þykkar ítalskar QUARTZ borðplötur í ljósum lit, Stone Italiana frá S.Helgasyni.
Fullkomið loftskiptakerfi, sjálfstætt fyrir hverja íbúð. Hljóðdúkur í sameign, innfelld tæki, ísskápur og uppþvottavél fylgja. Svört tæki í eldhúsi. Gert er ráð fyrir hleðslustöðvum fyrir rafbíla í bílakjallara. Innfelld lýsing á 5.hæð. Svört tæki í eldhúsi. Eignirnar eru afhendar fullbúnar án gólfefna að undanskyldu baðherbergi og þvottahúsi, þar eru flísar. Á sérafnotareitum og völdum svölum er möguleiki á að koma fyrir rafmagnspotti. Aðgangsstýrð bílageymsla er í kjallara og flestum íbúðum fylgir sérmerkt einkastæði, ýmist eitt eða tvö.
Íbúð 502 er 166,8 fm íbúð á efstu hæð með 45 fm bambusklæddum þaksvölum og einstöku sjávarútsýni. Tvö baðherbergi, hjónasvíta með sér baðherbergi og fataherbergi, útgengt út á svalir.
Tvö rúmgóð svefnherbergi, sér þvottahús, 55 fm alrými, stofa, eldhús og borðstofa. Sérmerkt bílastæði í bílakjallara merkt B18 og geymsla merkt 0010.
Afhending: Apríl 2026
Allar upplýsingar veita: Hannes Steindórsson s.699-5008 hannes@fastlind.is og Gunnar Valsson s.699-3702 gunnar@fastlind.is