Löggiltir fasteignasalar innan Félags fasteignasala:
Heimir Hafsteinn Eðvarðsson
Árni Björn Erlingsson
Vista
lóð

Hjallholt 26

301 Akranes

4.900.000 kr.

Fasteignanúmer

F2333894

Fasteignamat

3.630.000 kr.

Brunabótamat

0 kr.

Áhvílandi

0 kr.

Arion banki – Reikna lán
Upplýsingar
Verðsaga
svg
0 m²
svg
0 herb.
svg
2 baðherb.
svg
4 svefnh.

Lýsing

Hjallholt 26, 301 Akranes (Sumarhúsalóð við Þórisstaðarvatn með teikningum).

Fasteignaland kynnir:  Sumarhúsalóð  við Hjallholt 26 í landi Þórisstaða í Svínadal.  Um er ræða 9.950 fm eignarlóð með glæsilegu útsýni.

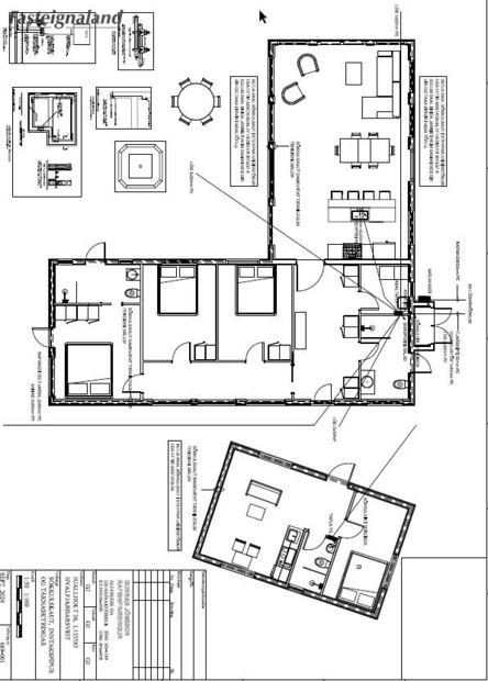
Með eigninni fylgja teikningar fyrir144 fm sumarhúsi og 31 fm gestahúsi.Rafmagnsteikningar og burðarþolsteikningar fylgja einnig. Búið er að greiða byggingarleyfisgjald fyrir hús og gestahús. 

Kalt vatn og rafmagn er á svæðinu.

Upplýsingar gefur:
Heimir Eðvarðsson, löggiltur fasteignasali, s. 893-1485, netfang:  heimir@fasteignaland.is

 

img
Heimir Hafsteinn Eðvarðsson
Lögg.fasteignasali innan félags fasteignasala
Fasteignaland ehf
Skeifunni 2, 108 Reykjavík.
Fasteignaland ehf

Fasteignaland ehf

Skeifunni 2, 108 Reykjavík.
img

Heimir Hafsteinn Eðvarðsson

Skeifunni 2, 108 Reykjavík.
Ár
Fasteignamat
Kaupverð
Stærð
Fermetraverð
25. sep. 2024
2.800.000 kr.
52.500.000 kr.
1 m²
52.500.000 kr.
Byggt á upplýsingum úr Þjóðskrá Íslands frá 2006-2026
Fasteignaland ehf

Fasteignaland ehf

Skeifunni 2, 108 Reykjavík.

Heimir Hafsteinn Eðvarðsson

Skeifunni 2, 108 Reykjavík.