Löggiltir fasteignasalar innan Félags fasteignasala:
Þórarinn Halldór Óðinsson
Upplýsingar
Byggt 1920
169,3 m²
7 herb.
2 baðherb.
4 svefnh.
Þvottahús
Útsýni
Sérinngangur
Lýsing
Nes fasteignasala ehf kynnir í einkasölu eignina:
Skúlagata 14, 310 Borgarnes.
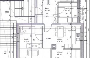
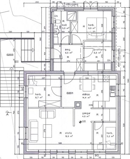
Um er að ræða fallegt og mikið uppgert steinsteypt hús á tveimur hæðum með tveimur íbúðum. Eignin er samtals 169,3 fm að stærð skv. skráningu HMS, þar af er íbúð á neðri hæð 67,4 fm og íbúð á efri hæð 101,9 fm. Íbúð á efri hæð var stækkuð með vandaðri viðbyggingu árið 2021.
Húsið er allt endurnýjað af mikilli smekkvísi og hafa eigendur kappkostað að halda upprunalegu útliti hússins við endurnýjun og efnisval.
Eignin stendur á glæsilegri útsýnislóð í neðri hluta bæjarins, frábær staðsetning, stutt í skóla, íþróttahús og sundlaug.
Skúlagata 14 er sögufrægt hús í Borgarnesi, teiknað af Guðjóni Samúelssyni fyrrum húsameistara ríkisins. Húsið var upphaflega byggt árið 1920 undir starfsemi Sparisjóðs Mýrasýslu, með útibúi á neðri hæð og íbúð sparisjóðsstjóra á efri hæð.
Að húsinu liggja steyptar tröppur. Steyptur skjólveggur er með suðurhlið hússins að Egilsgötu og er fallegt handrið úr áli á skjólvegg og tröppum.
Íbúð á neðri hæð:
Íbúðin skiptist í forstofu, alrými sem samanstendur af borðstofu, stofu og eldhúsi, 2 svefnherbergi, þvottahús og baðherbergi.
Miklar endurbætur hafa verið gerðar á íbúðinni á síðustu árum. Nýlegir bogadregnir gluggar setja mikinn svip á húsið. Allar lagnir endurnýjaðar; rafmagn, neysluvatn, hitalagnir og ofnar. Nýtt gólfefni í alrými og anddyri. Skipt um innréttingu og tæki í eldhúsi. Allar hurðir nýjar, bæði úti og innihurðir, nema á baðherbergi.
Nánari lýsing:
Forstofa: Parket á gólfum, fatahengi.
Eldhús: Parket er á gólfum. Nýleg hvít innrétting. Eldavél með helluborði, bakarofn og uppþvottavél.
BoStofa: Rúmgóð með parket á gólfi. Bogadregnir gluggar setja svip á rýmið. Gengið er úr stofu um tröppur á svefnherbergisgang.
Herbergi: Parket á gólfum og fataskápar.
Þvottahús: Málað gólf.
Baðherbergi: Flísar á gólfi og sturta. Vaskur í lítilli innréttingu.
Íbúð á efri hæð:
Íbúðin skiptist í anddyri/skála, baðherbergi, þvottahús, 2 svefnherbergi, eldhús.
Gengið er í anddyri/skála, þaðan er gengið í baðherbergi, hjónaherbergi og þvottahús. Þessi hluti hæðarinnar er nýbygging með hita í gólfi. Þar innaf, í eldri hluta hæðarinnar, er svefnherbergi, eldhús, stofa og borðstofa.
Nánari lýsing:
Anddyri/skáli: Vinilparket á gólfum, fataskápur og fatahengi.
Baðherbergi: Flísalagt í hólf og gólf. Góð innrétting með speglaskáp, vegghengt salerni og walk-in sturta. Úr baðherbergi er gengt út á sólpall.
Hjónaherbergi: Vinilflísar á gólfi og fataskápar. Gengið um vængjahurð út á sólpall.
Þvottahús: Rúmgott með vinilflísum á gólfi. Mjög góð innrétting fyrir tæki með góðu skápa og vinnuplássi.
Eldhús: Gólfefni (gólfborð) slípað og lakkað. Nýleg innrétting með miklu skápaplássi. Tveir ofnar í innréttingu í vinnuhæð, innbyggð uppþvottavél og helluborð með gufugleypi.
Herbergi: Gólfefni (gólfborð) slípað og lakkað. Nýtt sem skrifstofa.
Stofa/borðstofa: Gólfefni (gólfborð) slípað og lakkað. Rúmgóð og falleg stofa með miklu útsýni.
Sólpallur: Rúmgóður Með háum skjólveggjum og heitum potti. Pallurinn er viðhaldsfrír, klæddur með Terrawood.
Lóðin er skráð 420 fm að stærð í fasteignaskrá en samkvæmt gildandi deiliskipulagi er lóðin 1.015 fm. Mjög skemmtilegt svæði með trjágróðri, stígum og leiktækjum og 9 fm geymsluskúr.
Nánari upplýsingar veitir Þórarinn Halldór Óðinsson Lögg. fasteignasali, í síma 497-0040 eða 865-0350, tölvupóstur thorarinn@fastnes.is.
Nes fasteignasala tekur ekki umsýslugjald af kaupendum.
Kostnaður kaupanda:
Stimpilgjald skv. 5. gr. laga nr. 138/2013 um stimpilgjald, 0,8% af fasteignamati fyrir einstaklinga. 0,4% við fyrstu kaup og 1,6% fyrir lögaðila.
Þinglýsingargjald kr. 3.800,- á hvert skjal.
Lántökugjald lánastofnunar skv. gjaldskrá.
Engin umsýsluþóknun.
Skúlagata 14, 310 Borgarnes.
Um er að ræða fallegt og mikið uppgert steinsteypt hús á tveimur hæðum með tveimur íbúðum. Eignin er samtals 169,3 fm að stærð skv. skráningu HMS, þar af er íbúð á neðri hæð 67,4 fm og íbúð á efri hæð 101,9 fm. Íbúð á efri hæð var stækkuð með vandaðri viðbyggingu árið 2021.
Húsið er allt endurnýjað af mikilli smekkvísi og hafa eigendur kappkostað að halda upprunalegu útliti hússins við endurnýjun og efnisval.
Eignin stendur á glæsilegri útsýnislóð í neðri hluta bæjarins, frábær staðsetning, stutt í skóla, íþróttahús og sundlaug.
Skúlagata 14 er sögufrægt hús í Borgarnesi, teiknað af Guðjóni Samúelssyni fyrrum húsameistara ríkisins. Húsið var upphaflega byggt árið 1920 undir starfsemi Sparisjóðs Mýrasýslu, með útibúi á neðri hæð og íbúð sparisjóðsstjóra á efri hæð.
Að húsinu liggja steyptar tröppur. Steyptur skjólveggur er með suðurhlið hússins að Egilsgötu og er fallegt handrið úr áli á skjólvegg og tröppum.
Íbúð á neðri hæð:
Íbúðin skiptist í forstofu, alrými sem samanstendur af borðstofu, stofu og eldhúsi, 2 svefnherbergi, þvottahús og baðherbergi.
Miklar endurbætur hafa verið gerðar á íbúðinni á síðustu árum. Nýlegir bogadregnir gluggar setja mikinn svip á húsið. Allar lagnir endurnýjaðar; rafmagn, neysluvatn, hitalagnir og ofnar. Nýtt gólfefni í alrými og anddyri. Skipt um innréttingu og tæki í eldhúsi. Allar hurðir nýjar, bæði úti og innihurðir, nema á baðherbergi.
Nánari lýsing:
Forstofa: Parket á gólfum, fatahengi.
Eldhús: Parket er á gólfum. Nýleg hvít innrétting. Eldavél með helluborði, bakarofn og uppþvottavél.
BoStofa: Rúmgóð með parket á gólfi. Bogadregnir gluggar setja svip á rýmið. Gengið er úr stofu um tröppur á svefnherbergisgang.
Herbergi: Parket á gólfum og fataskápar.
Þvottahús: Málað gólf.
Baðherbergi: Flísar á gólfi og sturta. Vaskur í lítilli innréttingu.
Íbúð á efri hæð:
Íbúðin skiptist í anddyri/skála, baðherbergi, þvottahús, 2 svefnherbergi, eldhús.
Gengið er í anddyri/skála, þaðan er gengið í baðherbergi, hjónaherbergi og þvottahús. Þessi hluti hæðarinnar er nýbygging með hita í gólfi. Þar innaf, í eldri hluta hæðarinnar, er svefnherbergi, eldhús, stofa og borðstofa.
Nánari lýsing:
Anddyri/skáli: Vinilparket á gólfum, fataskápur og fatahengi.
Baðherbergi: Flísalagt í hólf og gólf. Góð innrétting með speglaskáp, vegghengt salerni og walk-in sturta. Úr baðherbergi er gengt út á sólpall.
Hjónaherbergi: Vinilflísar á gólfi og fataskápar. Gengið um vængjahurð út á sólpall.
Þvottahús: Rúmgott með vinilflísum á gólfi. Mjög góð innrétting fyrir tæki með góðu skápa og vinnuplássi.
Eldhús: Gólfefni (gólfborð) slípað og lakkað. Nýleg innrétting með miklu skápaplássi. Tveir ofnar í innréttingu í vinnuhæð, innbyggð uppþvottavél og helluborð með gufugleypi.
Herbergi: Gólfefni (gólfborð) slípað og lakkað. Nýtt sem skrifstofa.
Stofa/borðstofa: Gólfefni (gólfborð) slípað og lakkað. Rúmgóð og falleg stofa með miklu útsýni.
Sólpallur: Rúmgóður Með háum skjólveggjum og heitum potti. Pallurinn er viðhaldsfrír, klæddur með Terrawood.
Lóðin er skráð 420 fm að stærð í fasteignaskrá en samkvæmt gildandi deiliskipulagi er lóðin 1.015 fm. Mjög skemmtilegt svæði með trjágróðri, stígum og leiktækjum og 9 fm geymsluskúr.
Nánari upplýsingar veitir Þórarinn Halldór Óðinsson Lögg. fasteignasali, í síma 497-0040 eða 865-0350, tölvupóstur thorarinn@fastnes.is.
Nes fasteignasala tekur ekki umsýslugjald af kaupendum.
Kostnaður kaupanda:
Stimpilgjald skv. 5. gr. laga nr. 138/2013 um stimpilgjald, 0,8% af fasteignamati fyrir einstaklinga. 0,4% við fyrstu kaup og 1,6% fyrir lögaðila.
Þinglýsingargjald kr. 3.800,- á hvert skjal.
Lántökugjald lánastofnunar skv. gjaldskrá.
Engin umsýsluþóknun.