Upplýsingar
Verðsaga
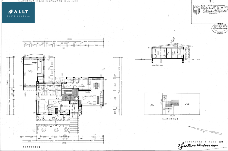
Byggt 1973
195,2 m²
6 herb.
2 baðherb.
3 svefnh.
Þvottahús
Bílskúr
Lýsing
ALLT fasteignasala kynnir í einkasölu eignina:
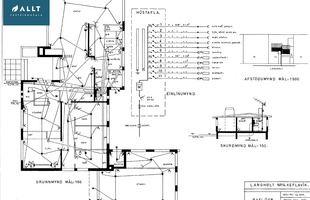
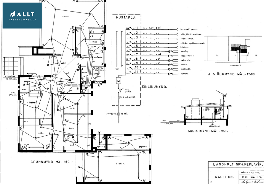
Langholt 14, 230 Reykjanesbær, fastanúmer 208-9766 ásamt öllu því sem eigninni fylgir, þar með talið tilheyrandi lóðar og sameignarréttindi. Eignin er skráð sem hér segir hjá FMR, birt stærð 195.2 fm, þar af er íbúð skráð 138,1m2 og bílskúr er skráður 57,1m2.
Um er að ræða 4ra herbergja einbýlishús ásamt bílskúr á einni hæð á mjög vinsælum stað í Keflavík. Forstofa, gestasalerni, forstofuherbergi, hol, herbergja gangur, hjónaherbergi, stórt svefnherbergi, stofa, borðstofa, eldhús, þvottahús, búr og bílskúr.
*60 fermetra sólpallur bakvið hús, með heitum potti frá Trefjum, gert var ráð fyrir útisturtu og er lögn fyrir niðurfall er undir palli.
*Eignarlóð
*Skipt um glugga í borðstofu og stofu. Nýtt gler og gluggar yfirfarnir í holi, gangi og baðherbergi. Húsið málað að utan 2025
*Skipt um alla glugga í svefnherbergjum, þvottahúsi, eldhúsi 2024
*Bílskúrshurð og hurð í anddyri máluð 2023
*Baðherbergi er með gólfhita það var allt endurnýjað 2019
*Skápar í svefnherbergjum og gólfefni á herbergjagangi og endurnýjað 2018
Söluyfirlit veita:
Halla Vilbergs, nemi til löggildingar fasteignasala í s: 772-7930 eða á halla@allt.is
Unnur Svava Sverrisdóttir lögg. fasteignasali á unnur@allt.is
Nánari lýsing eignar:
Eldhús: Bjart og huggulegt, með kork á gólfi, eldúinnréttingu úr ljósum við með grárri borðplötu
Stofa: Parketlögð, björt og opin, borðstofa inn af stofu
Forstofa: Flísalögð með góðum fataskáp, innangengt í gott svefnherbergi og gestasalerni
Forstofuherbergi: Parketlagt með góðum fataskáp
Hjónaherbergi: Parketlagt með góðum fataskáp
Svefnherbergi: Rúmgott, var áður tvö herbergi, hefur tvo stóra glugga og parket á gólfi
Baðherbergi: Flísalagt í hólf og gólf, walk inn sturta og upphengt klósett, endurnýjað 2019.
Þvottahús: Innangengt úr eldhúsi, með búri og útgengt út á pall
Bílskúr: Rúmgóður með rafmagnshurð að framan og er útgengt út á pall á baklóð.
Vertu tilbúin(n) þegar rétta eignin birtist – skráðu eignina þín í dag og tryggðu þér forskotið.
ALLT fasteignasala er staðsett á eftirfarandi stöðum:
Hafnargötu 91, 230 Reykjanesbæ - Reykjavíkurveg 66, 220 Hafnarfirði
Kostnaður kaupanda:
1. Af gjaldskyldum skjölum skal greiða 0,8% af fasteignamati ef kaupandi er einstaklingur, fyrstukaupendur 0,4% og 1,6% af fasteignamati ef kaupandi er lögaðili.
2. Þinglýsingargjald á hvert skjal er kr. 2.700.
3. Lántökugjald fer eftir verðskrá lánastofnunar hverju sinni.
4. Umsýslugjald til ALLT fasteignasölu er kr. 69.440 m/vsk.
5. Sé um nýbyggingu um að ræða greiðir kaupandi skipulagsgjald, 0,3% af brunabótamati, þegar það er lagt á.
Skoðunar- og aðgæsluskylda kaupanda:
Í lögum um fasteignakaup nr. 40/2002 er kveðið á um ríka skoðunarskyldu kaupenda á fasteignum. ALLT fasteignasala vill beina því til væntanlegs kaupanda að kynna sér ástand fasteignar vel við skoðun og fyrir tilboðsgerð. Ef þurfa þykir er ráðlagt að leita til sérfræðifróðra aðila. Forsendur söluyfirlits: Söluyfirlit þetta er samið af fasteignasala til samræmis við lög um sölu fasteigna og skipa nr. 70/2015. Upplýsingar þær sem koma fram í söluyfirliti þessu eru sóttar í opinberar skrár, frá seljanda og eftir atvikum til húsfélags. Seljandi veitir upplýsingar um eignina til samræmis við upplýsingaskyldu sína sbr. lög um fasteignakaup nr. 40/2002. Fasteignasali sannreynir að upplýsingar séu réttar með sjónskoðun á eigninni. Fasteignasali getur ekki fullyrt um ástand og eiginleika þeirra hluta fasteignar sem ekki eru aðgengilegir og sjást ekki með berum augum, eins og t.d. lagnir, dren, skólp og þak.
Langholt 14, 230 Reykjanesbær, fastanúmer 208-9766 ásamt öllu því sem eigninni fylgir, þar með talið tilheyrandi lóðar og sameignarréttindi. Eignin er skráð sem hér segir hjá FMR, birt stærð 195.2 fm, þar af er íbúð skráð 138,1m2 og bílskúr er skráður 57,1m2.
Um er að ræða 4ra herbergja einbýlishús ásamt bílskúr á einni hæð á mjög vinsælum stað í Keflavík. Forstofa, gestasalerni, forstofuherbergi, hol, herbergja gangur, hjónaherbergi, stórt svefnherbergi, stofa, borðstofa, eldhús, þvottahús, búr og bílskúr.
*60 fermetra sólpallur bakvið hús, með heitum potti frá Trefjum, gert var ráð fyrir útisturtu og er lögn fyrir niðurfall er undir palli.
*Eignarlóð
*Skipt um glugga í borðstofu og stofu. Nýtt gler og gluggar yfirfarnir í holi, gangi og baðherbergi. Húsið málað að utan 2025
*Skipt um alla glugga í svefnherbergjum, þvottahúsi, eldhúsi 2024
*Bílskúrshurð og hurð í anddyri máluð 2023
*Baðherbergi er með gólfhita það var allt endurnýjað 2019
*Skápar í svefnherbergjum og gólfefni á herbergjagangi og endurnýjað 2018
Söluyfirlit veita:
Halla Vilbergs, nemi til löggildingar fasteignasala í s: 772-7930 eða á halla@allt.is
Unnur Svava Sverrisdóttir lögg. fasteignasali á unnur@allt.is
Nánari lýsing eignar:
Eldhús: Bjart og huggulegt, með kork á gólfi, eldúinnréttingu úr ljósum við með grárri borðplötu
Stofa: Parketlögð, björt og opin, borðstofa inn af stofu
Forstofa: Flísalögð með góðum fataskáp, innangengt í gott svefnherbergi og gestasalerni
Forstofuherbergi: Parketlagt með góðum fataskáp
Hjónaherbergi: Parketlagt með góðum fataskáp
Svefnherbergi: Rúmgott, var áður tvö herbergi, hefur tvo stóra glugga og parket á gólfi
Baðherbergi: Flísalagt í hólf og gólf, walk inn sturta og upphengt klósett, endurnýjað 2019.
Þvottahús: Innangengt úr eldhúsi, með búri og útgengt út á pall
Bílskúr: Rúmgóður með rafmagnshurð að framan og er útgengt út á pall á baklóð.
Vertu tilbúin(n) þegar rétta eignin birtist – skráðu eignina þín í dag og tryggðu þér forskotið.
ALLT fasteignasala er staðsett á eftirfarandi stöðum:
Hafnargötu 91, 230 Reykjanesbæ - Reykjavíkurveg 66, 220 Hafnarfirði
Kostnaður kaupanda:
1. Af gjaldskyldum skjölum skal greiða 0,8% af fasteignamati ef kaupandi er einstaklingur, fyrstukaupendur 0,4% og 1,6% af fasteignamati ef kaupandi er lögaðili.
2. Þinglýsingargjald á hvert skjal er kr. 2.700.
3. Lántökugjald fer eftir verðskrá lánastofnunar hverju sinni.
4. Umsýslugjald til ALLT fasteignasölu er kr. 69.440 m/vsk.
5. Sé um nýbyggingu um að ræða greiðir kaupandi skipulagsgjald, 0,3% af brunabótamati, þegar það er lagt á.
Skoðunar- og aðgæsluskylda kaupanda:
Í lögum um fasteignakaup nr. 40/2002 er kveðið á um ríka skoðunarskyldu kaupenda á fasteignum. ALLT fasteignasala vill beina því til væntanlegs kaupanda að kynna sér ástand fasteignar vel við skoðun og fyrir tilboðsgerð. Ef þurfa þykir er ráðlagt að leita til sérfræðifróðra aðila. Forsendur söluyfirlits: Söluyfirlit þetta er samið af fasteignasala til samræmis við lög um sölu fasteigna og skipa nr. 70/2015. Upplýsingar þær sem koma fram í söluyfirliti þessu eru sóttar í opinberar skrár, frá seljanda og eftir atvikum til húsfélags. Seljandi veitir upplýsingar um eignina til samræmis við upplýsingaskyldu sína sbr. lög um fasteignakaup nr. 40/2002. Fasteignasali sannreynir að upplýsingar séu réttar með sjónskoðun á eigninni. Fasteignasali getur ekki fullyrt um ástand og eiginleika þeirra hluta fasteignar sem ekki eru aðgengilegir og sjást ekki með berum augum, eins og t.d. lagnir, dren, skólp og þak.
Vertu tilbúin(n) þegar rétta eignin birtist – Fáðu tilboð í söluferlið - Skráðu eignina þína í dag og tryggðu þér forskotið.
Ár
Fasteignamat
Kaupverð
Stærð
Fermetraverð
1. jún. 2018
39.000.000 kr.
50.500.000 kr.
195.2 m²
258.709 kr.
Byggt á upplýsingum úr Þjóðskrá Íslands frá 2006-2026