Löggiltir fasteignasalar innan Félags fasteignasala:
Páll Þórólfsson
Guðbjörg Guðmundsdóttir
Jason Kristinn Ólafsson
Sverrir Pálmason
Upplýsingar
svg
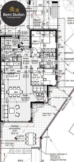
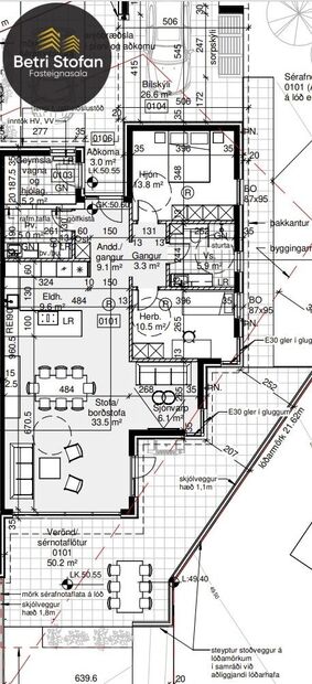
122 m²
svg
4 herb.
svg
1 baðherb.
svg
3 svefnh.
svg
Þvottahús
svg
Sérinngangur
Opið hús: 8. febrúar 2026 kl. 14:00 til 14:30

Sölusýning Aðaltún 2-4 Mosfellsbæ.

Lýsing

Betri Stofan fasteignasala Borgartúni 30 og Atli S. Sigvarðsson fasteignasali kynna nýtt í sölu. Nýtt, sjarmerandi og einstaklega vel hannað parhús á einni hæð í ótrúlega grónu og fallegu umhverfi við Aðaltún Mosfellsbæ, skógi vaxið umhverfi og lækur sem rennur við lóðarmörkin. Arkitekt er Jakob Emil Líndal FAÍ hjá ALARK arkitektum.
Húsið er mjög veglega innréttað og skilast fullbúið með gólfefnum, innréttingar frá HTH og tæki vönduð. 2-3 svefnherbergi, gólfsíðir gluggar í alrýmum sem snúa að fallegu grónu umhverfi. Gólfhiti í öllum gólfum, hljóðdúkur í lofti (góð hljóðvist). Að utan er húsið einangrað og klætt með ál / tré gluggum (þrefalt gler) og er húsið því viðhaldslétt. Lóð er falleg og frágengin, sólpallur til suðurs og stór hellulagt bílaplan með snjóbræðslu. Til afhendingar við kaupsamning.

Nánari lýsing:

Forstofa: Vínylparket á gólfi og góður fataskápur.
Alrými: Opið, stórt og mjög fallegt rými með vínylparketi á gólfi, gólfsíðir gluggar, útgengi á suður verönd / lóð í fallegu grónu umhverfi.
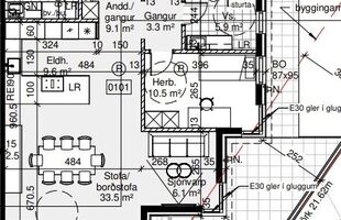
Eldhús: Opið við alrými, þar er glæsileg sérsmíðuð innrétting, mikið skápa og vinnupláss. Vönduð tæki, innbyggð uppþvottavél og ísskápur, spanhelluborð með viftu.
Sjóvarpshol: Opið við alrými, gott rými sem nýtist vel fyrir gott sjónvarp og sófa. Getur einnig nýst sem þriðja svefnherbergið sbr teikningu.
Hjónaherbergi: Stórt og gott herbergi með stórum fataskápum, vínylparket á gólfi.
Svefnherbergi: Gott herbergi með fataskáp og vínylparketi á gólfi. 
Baðherbergi: Fallega innréttað og flísalagt með góðri innréttingu, einhalla sturtu og gleri, handklæðaofni, gluggi er á baðherberginu.
Þvottahús: Flísalagt og sér innan íbúðar.
Geymsla: Sér geymsla með glugga og flísum á gólfi. Innangengt frá innkeyrslu.
Lóð: Mjög falleg og fullfrágengin lóð með hellulögðum stéttum, innkeyrslu með hitalögn og timburveröndum með skjólveggjum. Sjarmerandi gróið umhverfi og lóð til suðurs.
Efnisval: Innréttingar sérsmíðaðar frá HTH. Planka vinylparket í eikarlit á gólfum (slitsterkt og fallegt) lagt án gólflista. Gluggar eru ál / tré með þreföldu gleri frá Húsasmiðjunni. Innihurðir eru hvítar innfelldar.

Þetta er nýtt og sérstaklega sjarmerandi parhús á einni hæð þar sem að engu hefur verið til sparað, í umhverfi sem kemur á óvart. Sjón er sögu ríkari. Stutt er í sundlaug, skóla golfvöll ofl.
Allar nánari upplýsingar veitir Atli S. Sigvarðsson fasteignasali í síma 899-1178 eða atli@betristofan.is 


Gjöld sem kaupandi þarf að standa straum af ef að kaupum verður:
1. Stimpilgjald af fasteignamati fasteignar er 0.8%, en 0,4% fyrir fyrstu kaup og 1,6% fyrir lögaðila.  
2. Þinglýsingargjald: kaupsamningi, skuldabréfi, veðleyfi, afsali o.s.frv. er kr. 3.800 af hverju skjali.
3. Lántökukostnaður samkvæmt verðskrá viðkomandi lánastofnunar.
4. Umsýslugjald til fasteignasölu skv. gjaldskrá.

Skoðunarskylda kaupanda:
Í lögum um fasteignakaup nr. 40/2002 er kveðið á um ríka skoðunarskyldu kaupenda á fasteignum. Betri Stofan fasteignasala bendir væntanlegum kaupendum á að kynna sér vel ástand fasteigna við skoðun og fyrir tilboðsgerð og ef þurfa þykir að leita til sérfræðinga um nánari ástandsskoðun.

Betri Stofan Fasteignasala

Betri Stofan Fasteignasala

Borgartúni 30, 105 Reykjavík
phone
Betri Stofan Fasteignasala

Betri Stofan Fasteignasala

Borgartúni 30, 105 Reykjavík
phone