Upplýsingar
Verðsaga
Byggt 2020
101,9 m²
2 herb.
1 baðherb.
1 svefnh.
Sameiginl. inngangur
Bílastæði
Lyfta
Opið hús: 4. febrúar 2026
kl. 17:00
til 17:30
Opið hús: Valshlíð 10, 102 Reykjavík, Íbúð merkt: 0507. Eignin verður sýnd miðvikudaginn 4. febrúar 2026 milli kl. 17:00 og kl. 17:30.
Lýsing
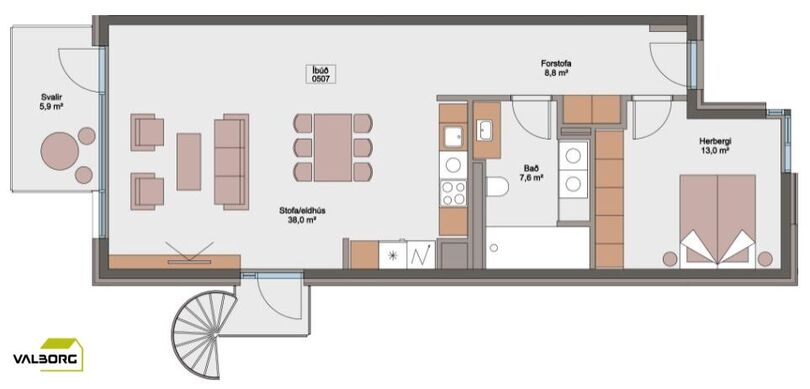
Valborg fasteignasala kynnir einstaklega glæsilega 101,9 fm íbúð á 5. hæð (efstu) við Valshlíð 10. Íbúðin skiptist í stofu/borðstofu, opið eldhús, svefnherbergi, baðherbergi/þvottaherbergi, gang og andyri. Á gólfum er olíuborið viðarparket og flísar á baðherbergi. Í séreign er 55 fm flísalagður þakgarður þar sem er heitur pottur, sturtuklefi og geymsla. Flísalagðar svalir út frá stofu. Í sameign er sér geymsla, stórt stæði í bílageymslu og í sameign sumra er þakskýli og flísalagðar stórar þaksvalir á 5. hæð. Inngangur frá þaksvölum. Gluggatjöld eru rafdrifin. Útsýni. Vönduð og snyrtileg sameign. Þetta er einstök eign á frábærum stað í Hlíðarendahverfinu.
Húsið er hannað af Alark Arkitektum og klætt að utan með álklæðningu og því viðhaldslítið. Gluggarnir eru vandaðir danskir ál-tré gluggar frá Velfac sem hafa það einkenni að vera með hátt einangrunargildi fyrir hita og hljóði. Aukin lofthæð er í öllum ibúðum, gólfsíðir gluggar, vandaðar innréttingar frá JKE design, ljósahönnun frá Lumex, vönduð Miele eldhústæki, quartz borðplötur í eldhúsi og á baði. Inngarður húsanna er einstaklega fallegur og skjólgóður. Gróður og hellulagðir/steyptir gangstígar sem að hluta til eru með hitalögn ásamt lýsingu. Bekkir og leiksvæði með leiktækjum og mjúku undirlagi.
Hjá HMS er íbúðin skráð 81, 2 fm og sérgeymsla í sameign 20,7 fm
Nánari upplýsingar veitir Aðalsteinn Steinþórsson Viðskiptafræðingur - löggiltur fasteignasali, í síma 896-5865, tölvupóstur alli@valborgfs.is.
Forsendur söluyfirlits:
Söluyfirlit er samið af fasteignasala í samræmi við ákvæði laga nr. 70/2015. Þær upplýsingar sem fram koma í söluyfirliti þessu eru sóttar í opinberar skrár, til seljanda sjálfs og eftir atvikum til húsfélags. Seljandi veitir upplýsingar um eign í samræmi við upplýsingaskyldu laga um fasteignakaup nr. 40/2002. Fasteignasali sannreynir að þær upplýsingar séu réttar með sjónskoðun á eigninni. Fasteignasali getur ekki fullyrt um ástand og eiginleika þeirra hluta fasteigna sem ekki eru aðgengilegir og sjást ekki berum augum, t.d. lagnir, dren, skólp og þak.
Um skoðunar- og aðgæsluskyldu:
Í lögum um fasteignakaup nr. 40/2002 er kveðið á um ríka skoðunarskyldu kaupenda á fasteignum. Valborg ehf. fasteignasala bendir væntanlegum kaupendum á að kynna sér vel ástand fasteigna við skoðun og fyrir tilboðsgerð og ef þurfa þykir að leita til sérfræðinga um nánari ástandsskoðun.
Gjöld sem kaupandi þarf að standa straum af vegna kaupanna:
1. Stimpilgjald af kaupsamningi sem er hlutfall af fasteignamati. Stimpilgjald er 0,8% fyrir einstaklinga (0,4% við fyrstu kaup) og 1,6% fyrir lögaðila.
2. Þinglýsingargjald af kaupsamningi, veðskuldabréfum, veðleyfum o.fl. Þinglýsingargjald er kr. 3.100,- fyrir hvert skjal.
3. Lántökugjald lánastofnunar. Um lántökugjald vísast í gjaldskrá viðkomandi lánveitanda.
4. Umsýsluþóknun fasteignasölu skv. gjaldskrá.
5. Ef um nýbyggingu er að ræða greiðir kaupandi skipulagsgjald, 0,3% af brunabótamati, þegar það er lagt á.
Húsið er hannað af Alark Arkitektum og klætt að utan með álklæðningu og því viðhaldslítið. Gluggarnir eru vandaðir danskir ál-tré gluggar frá Velfac sem hafa það einkenni að vera með hátt einangrunargildi fyrir hita og hljóði. Aukin lofthæð er í öllum ibúðum, gólfsíðir gluggar, vandaðar innréttingar frá JKE design, ljósahönnun frá Lumex, vönduð Miele eldhústæki, quartz borðplötur í eldhúsi og á baði. Inngarður húsanna er einstaklega fallegur og skjólgóður. Gróður og hellulagðir/steyptir gangstígar sem að hluta til eru með hitalögn ásamt lýsingu. Bekkir og leiksvæði með leiktækjum og mjúku undirlagi.
Hjá HMS er íbúðin skráð 81, 2 fm og sérgeymsla í sameign 20,7 fm
Nánari upplýsingar veitir Aðalsteinn Steinþórsson Viðskiptafræðingur - löggiltur fasteignasali, í síma 896-5865, tölvupóstur alli@valborgfs.is.
Forsendur söluyfirlits:
Söluyfirlit er samið af fasteignasala í samræmi við ákvæði laga nr. 70/2015. Þær upplýsingar sem fram koma í söluyfirliti þessu eru sóttar í opinberar skrár, til seljanda sjálfs og eftir atvikum til húsfélags. Seljandi veitir upplýsingar um eign í samræmi við upplýsingaskyldu laga um fasteignakaup nr. 40/2002. Fasteignasali sannreynir að þær upplýsingar séu réttar með sjónskoðun á eigninni. Fasteignasali getur ekki fullyrt um ástand og eiginleika þeirra hluta fasteigna sem ekki eru aðgengilegir og sjást ekki berum augum, t.d. lagnir, dren, skólp og þak.
Um skoðunar- og aðgæsluskyldu:
Í lögum um fasteignakaup nr. 40/2002 er kveðið á um ríka skoðunarskyldu kaupenda á fasteignum. Valborg ehf. fasteignasala bendir væntanlegum kaupendum á að kynna sér vel ástand fasteigna við skoðun og fyrir tilboðsgerð og ef þurfa þykir að leita til sérfræðinga um nánari ástandsskoðun.
Gjöld sem kaupandi þarf að standa straum af vegna kaupanna:
1. Stimpilgjald af kaupsamningi sem er hlutfall af fasteignamati. Stimpilgjald er 0,8% fyrir einstaklinga (0,4% við fyrstu kaup) og 1,6% fyrir lögaðila.
2. Þinglýsingargjald af kaupsamningi, veðskuldabréfum, veðleyfum o.fl. Þinglýsingargjald er kr. 3.100,- fyrir hvert skjal.
3. Lántökugjald lánastofnunar. Um lántökugjald vísast í gjaldskrá viðkomandi lánveitanda.
4. Umsýsluþóknun fasteignasölu skv. gjaldskrá.
5. Ef um nýbyggingu er að ræða greiðir kaupandi skipulagsgjald, 0,3% af brunabótamati, þegar það er lagt á.
Ár
Fasteignamat
Kaupverð
Stærð
Fermetraverð
25. nóv. 2021
6.930.000 kr.
329.500.000 kr.
414.7 m²
794.550 kr.
Byggt á upplýsingum úr Þjóðskrá Íslands frá 2006-2026