Upplýsingar
Verðsaga
Byggt 2001
107,9 m²
4 herb.
1 baðherb.
3 svefnh.
Þvottahús
Sérinngangur
Laus strax
Lýsing
Hraunhamar fasteignasala kynnir: Vel skipulagða og mikið endurnýjaða fjögurra-fimm herbergja íbúð með sérinngangi á þessum vinsæla stað við Þrastarás 14 í Áslandshverfinu í Hafnarfirði. Skóli og leikskóli í göngufæri.
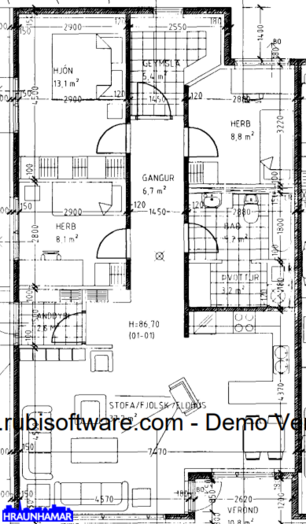
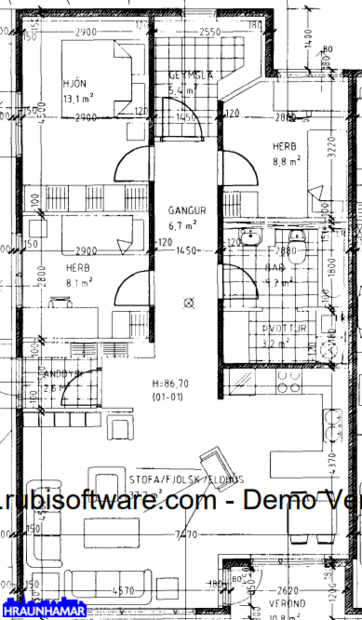
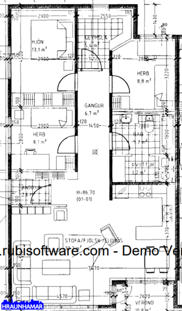
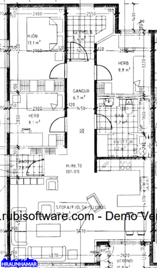
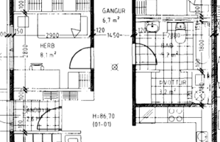
Íbúðin er skráð 107,9 fm skv. HMS þar af er 3,9 fm geymsla í sameign.
- Laus strax
- Sérinngangur
- Þrjú góð svefnherbergi
- Geymsla með glugga innan íbúðar sem hægt væri að nýta sem herbergi
- Nýtt parket, eldhúsinnrétting og baðherbergi
Nánari lýsing eignar:
Flísalögð forstofa.
Hol.
Eldhús, borðstofa og stofa í opnu alrými.
Ný innrétting í eldhúsi og ný eldunartæki.
Frá stofu er útgengt á hellulagða verönd/sérafnotaflöt.
Nýuppgert flísalagt baðherbergi. Hvít innrétting með handlaug, upphengt salerni og walk-in sturta. Inn af baðherbergi er þvottahús.
Þrjú góð svefnherbergi, öll með fataskáp.
Geymsla innan íbúðar með glugga. Væri hægt að nýta sem svefnherbergi.
Sér geymsla í sameign.
Sameiginleg hjóla og vagnageymsla. Næg bílastæði eru við húsið, búið er að setja upp rafhleðslustöðvar.
Rúmgóð íbúð sem búið er að taka í gegn að miklu leyti. Laus strax við kaupsamning. Frábært staðsetning í nálægð við vinsælar gönguleiðir og í göngufæri við Áslandsskóla og leikskólann Tjarnarás.
Allar nánari upplýsingar veitir:
Glódís Helgadóttir, löggiltur fasteignasali í s. 659-0510 glodis@hraunhamar.is
Skoðunarskylda:
Í lögum um fasteignakaup nr. 40/2002 er kveðið á um ríka skoðunarskyldu kaupenda á fasteignum. Hraunhamar fasteignasala vill benda væntanlegum kaupendum á að kynna sér vel ástand fasteigna fyrir kauptilboðsgerð og ef þurfa þykir að leita til sérfræðinga fyrir nánari ástandsskoðun.
Gjöld sem kaupandi þarf að standa straum af vegna kaupanna:
1. Stimpilgjald af kaupsamningi, fyrstu kaup (0,4%), almenn kaup (0,8%), lögaðilar (1,6%) af heildarfasteignamati.
2. Þinglýsingargjald af kaupsamningi, veðskuldabréfi, mögulegu veðleyfi o.fl. – kr. 3.800 af hverju skjali.
3. Lántökugjald lánastofnunar er skv. verðskrá viðkomandi lánastofnunar.
4. Umsýslugjald til fasteignasölu skv. þjónustusamningi
Hraunhamar er elsta fasteignasala Hafnarfjarðar, stofnuð 1983.
Hraunhamar, í fararbroddi í rúm 40 ár. – Hraunhamar.is
Smelltu hér til að fá frítt söluverðmat.
Smelltu hér til að fá söluyfirlit sent strax.
Íbúðin er skráð 107,9 fm skv. HMS þar af er 3,9 fm geymsla í sameign.
- Laus strax
- Sérinngangur
- Þrjú góð svefnherbergi
- Geymsla með glugga innan íbúðar sem hægt væri að nýta sem herbergi
- Nýtt parket, eldhúsinnrétting og baðherbergi
Nánari lýsing eignar:
Flísalögð forstofa.
Hol.
Eldhús, borðstofa og stofa í opnu alrými.
Ný innrétting í eldhúsi og ný eldunartæki.
Frá stofu er útgengt á hellulagða verönd/sérafnotaflöt.
Nýuppgert flísalagt baðherbergi. Hvít innrétting með handlaug, upphengt salerni og walk-in sturta. Inn af baðherbergi er þvottahús.
Þrjú góð svefnherbergi, öll með fataskáp.
Geymsla innan íbúðar með glugga. Væri hægt að nýta sem svefnherbergi.
Sér geymsla í sameign.
Sameiginleg hjóla og vagnageymsla. Næg bílastæði eru við húsið, búið er að setja upp rafhleðslustöðvar.
Rúmgóð íbúð sem búið er að taka í gegn að miklu leyti. Laus strax við kaupsamning. Frábært staðsetning í nálægð við vinsælar gönguleiðir og í göngufæri við Áslandsskóla og leikskólann Tjarnarás.
Allar nánari upplýsingar veitir:
Glódís Helgadóttir, löggiltur fasteignasali í s. 659-0510 glodis@hraunhamar.is
Skoðunarskylda:
Í lögum um fasteignakaup nr. 40/2002 er kveðið á um ríka skoðunarskyldu kaupenda á fasteignum. Hraunhamar fasteignasala vill benda væntanlegum kaupendum á að kynna sér vel ástand fasteigna fyrir kauptilboðsgerð og ef þurfa þykir að leita til sérfræðinga fyrir nánari ástandsskoðun.
Gjöld sem kaupandi þarf að standa straum af vegna kaupanna:
1. Stimpilgjald af kaupsamningi, fyrstu kaup (0,4%), almenn kaup (0,8%), lögaðilar (1,6%) af heildarfasteignamati.
2. Þinglýsingargjald af kaupsamningi, veðskuldabréfi, mögulegu veðleyfi o.fl. – kr. 3.800 af hverju skjali.
3. Lántökugjald lánastofnunar er skv. verðskrá viðkomandi lánastofnunar.
4. Umsýslugjald til fasteignasölu skv. þjónustusamningi
Hraunhamar er elsta fasteignasala Hafnarfjarðar, stofnuð 1983.
Hraunhamar, í fararbroddi í rúm 40 ár. – Hraunhamar.is
Smelltu hér til að fá frítt söluverðmat.
Smelltu hér til að fá söluyfirlit sent strax.
Ár
Fasteignamat
Kaupverð
Stærð
Fermetraverð
19. jún. 2025
68.950.000 kr.
61.500.000 kr.
10101 m²
6.089 kr.
Byggt á upplýsingum úr Þjóðskrá Íslands frá 2006-2026