Upplýsingar
Verðsaga
Byggt 2024
111,7 m²
4 herb.
1 baðherb.
3 svefnh.
Þvottahús
Sérinngangur
Lýsing
ALLT fasteignasala kynnir í einkasölu bjarta og fallega 4 herbergja íbúð í tveggja hæða fjölbýli við Hrafnaborg 3 í Vogum á Vatnsleysuströnd. Hrafnaborg 3, 190 Vogar, nánar tiltekið eign merkt 01-02, birt stærð 111.7 fm.
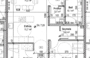
Íbúðin, sem er á jarðhæð, er rúmgóð og vel skipulögð með sérinngangi, góðri lofthæð, sér þvottahúsi og geymslu innan íbúðar.
Allar innréttingar eru frá Voke III, raftæki frá Electrolux og AEG. Harðparket frá Agli Árnasyni er á gólfum í alrýmum og svefnherbergjum, en flísar á baðherbergi og í þvottahúsi. Í húsinu er sameiginleg hjóla- og vagnageymsla.
Íbúð 102 er á neðri hæð hússins, samtals um 111,7 fm, með þremur svefnherbergjum og einu baðherbergi. Stofa, borðstofa og eldhús eru í sameiginlegu opnu rými með fallegri eldhúsinnréttingu. Útgengt er úr stofu á pall/sérafnotareit. Rúmgott þvottahús og geymsla eru innan íbúðar.
Húsið er steinsteypt og klætt að utan með álklæðningu og timbri. Lóð er þökulögð og bílastæði malbikuð.
10 íbúðir í húsinu og 20 bílastæði í sameign.
Nánari upplýsingar veitir
Elín Frímannsdóttir Löggiltur fasteignasali, í síma 560-5521, tölvupóstur elin@allt.is.
Vertu tilbúin(n) þegar rétta eignin birtist – skráðu eignina þín í dag og tryggðu þér forskotið.
ALLT fasteignasala er staðsett á eftirfarandi stöðum:
Hafnargötu 62, 230 Reykjanesbæ - Reykjavíkurveg 66, 220 Hafnarfirði
Kostnaður kaupanda:
1. Af gjaldskyldum skjölum skal greiða 0,8% af fasteignamati ef kaupandi er einstaklingur, fyrstukaupendur 0,4% og 1,6% af fasteignamati ef kaupandi er lögaðili.
2. Þinglýsingargjald á hvert skjal er kr. 3.800.
3. Lántökugjald fer eftir verðskrá lánastofnunar hverju sinni.
4. Umsýslugjald til ALLT fasteignasölu er kr. 69.440 m/vsk.
5. Sé um nýbyggingu um að ræða greiðir kaupandi skipulagsgjald, 0,3% af brunabótamati, þegar það er lagt á.
Skoðunar- og aðgæsluskylda kaupanda:
Í lögum um fasteignakaup nr. 40/2002 er kveðið á um ríka skoðunarskyldu kaupenda á fasteignum. ALLT fasteignasala vill beina því til væntanlegs kaupanda að kynna sér ástand fasteignar vel við skoðun og fyrir tilboðsgerð. Ef þurfa þykir er ráðlagt að leita til sérfræðifróðra aðila. Forsendur söluyfirlits: Söluyfirlit þetta er samið af fasteignasala til samræmis við lög um sölu fasteigna og skipa nr. 70/2015. Upplýsingar þær sem koma fram í söluyfirliti þessu eru sóttar í opinberar skrár, frá seljanda og eftir atvikum til húsfélags. Seljandi veitir upplýsingar um eignina til samræmis við upplýsingaskyldu sína sbr. lög um fasteignakaup nr. 40/2002. Fasteignasali sannreynir að upplýsingar séu réttar með sjónskoðun á eigninni. Fasteignasali getur ekki fullyrt um ástand og eiginleika þeirra hluta fasteignar sem ekki eru aðgengilegir og sjást ekki með berum augum, eins og t.d. lagnir, dren, skólp og þak.
Íbúðin, sem er á jarðhæð, er rúmgóð og vel skipulögð með sérinngangi, góðri lofthæð, sér þvottahúsi og geymslu innan íbúðar.
Allar innréttingar eru frá Voke III, raftæki frá Electrolux og AEG. Harðparket frá Agli Árnasyni er á gólfum í alrýmum og svefnherbergjum, en flísar á baðherbergi og í þvottahúsi. Í húsinu er sameiginleg hjóla- og vagnageymsla.
Íbúð 102 er á neðri hæð hússins, samtals um 111,7 fm, með þremur svefnherbergjum og einu baðherbergi. Stofa, borðstofa og eldhús eru í sameiginlegu opnu rými með fallegri eldhúsinnréttingu. Útgengt er úr stofu á pall/sérafnotareit. Rúmgott þvottahús og geymsla eru innan íbúðar.
Húsið er steinsteypt og klætt að utan með álklæðningu og timbri. Lóð er þökulögð og bílastæði malbikuð.
10 íbúðir í húsinu og 20 bílastæði í sameign.
Nánari upplýsingar veitir
Elín Frímannsdóttir Löggiltur fasteignasali, í síma 560-5521, tölvupóstur elin@allt.is.
Vertu tilbúin(n) þegar rétta eignin birtist – skráðu eignina þín í dag og tryggðu þér forskotið.
ALLT fasteignasala er staðsett á eftirfarandi stöðum:
Hafnargötu 62, 230 Reykjanesbæ - Reykjavíkurveg 66, 220 Hafnarfirði
Kostnaður kaupanda:
1. Af gjaldskyldum skjölum skal greiða 0,8% af fasteignamati ef kaupandi er einstaklingur, fyrstukaupendur 0,4% og 1,6% af fasteignamati ef kaupandi er lögaðili.
2. Þinglýsingargjald á hvert skjal er kr. 3.800.
3. Lántökugjald fer eftir verðskrá lánastofnunar hverju sinni.
4. Umsýslugjald til ALLT fasteignasölu er kr. 69.440 m/vsk.
5. Sé um nýbyggingu um að ræða greiðir kaupandi skipulagsgjald, 0,3% af brunabótamati, þegar það er lagt á.
Skoðunar- og aðgæsluskylda kaupanda:
Í lögum um fasteignakaup nr. 40/2002 er kveðið á um ríka skoðunarskyldu kaupenda á fasteignum. ALLT fasteignasala vill beina því til væntanlegs kaupanda að kynna sér ástand fasteignar vel við skoðun og fyrir tilboðsgerð. Ef þurfa þykir er ráðlagt að leita til sérfræðifróðra aðila. Forsendur söluyfirlits: Söluyfirlit þetta er samið af fasteignasala til samræmis við lög um sölu fasteigna og skipa nr. 70/2015. Upplýsingar þær sem koma fram í söluyfirliti þessu eru sóttar í opinberar skrár, frá seljanda og eftir atvikum til húsfélags. Seljandi veitir upplýsingar um eignina til samræmis við upplýsingaskyldu sína sbr. lög um fasteignakaup nr. 40/2002. Fasteignasali sannreynir að upplýsingar séu réttar með sjónskoðun á eigninni. Fasteignasali getur ekki fullyrt um ástand og eiginleika þeirra hluta fasteignar sem ekki eru aðgengilegir og sjást ekki með berum augum, eins og t.d. lagnir, dren, skólp og þak.
Vertu tilbúin(n) þegar rétta eignin birtist – Fáðu tilboð í söluferlið - Skráðu eignina þína í dag og tryggðu þér forskotið.
Ár
Fasteignamat
Kaupverð
Stærð
Fermetraverð
30. ágú. 2024
55.900.000 kr.
67.500.000 kr.
10102 m²
6.682 kr.
Byggt á upplýsingum úr Þjóðskrá Íslands frá 2006-2026