Upplýsingar
Verðsaga
Byggt 2018
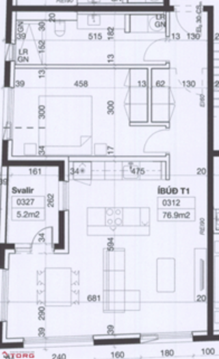
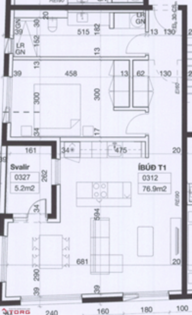
84,5 m²
3 herb.
1 baðherb.
1 svefnh.
Lyfta
Lýsing
TORG FASTEIGNASALA KYNNIR TIL LEIGU: Glæsilegt íbúð á þriðju hæð við Kolagötu 2, Rvk. Íbúðin er tveggja herbergja, með geymslu í sameign. Möguleiki er á að leigja stæði í bílakjallara. Aukin lofthæð og einstaklega vel staðsett í miðbænum.
Íbúðin er laus til afhendingar og skal þriggja mánaða trygging liggja fyrir við gerð leigusamnings.
Nánari upplýsingar veitir Matthildur Sunna Þorláksdóttir lgfs í síma 690 4966 eða matthildur@fstorg.is
Forsendur söluyfirlits:
Söluyfirlit er samið af fasteignasala í samræmi við ákvæði laga nr. 70/2015. Þær upplýsingar sem fram koma í söluyfirliti þessu eru sóttar í opinberar skrár, til seljanda sjálfs og eftir atvikum til húsfélags. Seljandi veitir upplýsingar um eign í samræmi við upplýsingaskyldu laga um fasteignakaup nr. 40/2002. Fasteignasali sannreynir að þær upplýsingar séu réttar með sjónskoðun á eigninni. Fasteignasali getur ekki fullyrt um ástand og eiginleika þeirra hluta fasteigna sem ekki eru aðgengilegir og sjást ekki berum augum, t.d. lagnir, dren, skólp og þak.
Íbúðin er laus til afhendingar og skal þriggja mánaða trygging liggja fyrir við gerð leigusamnings.
Nánari upplýsingar veitir Matthildur Sunna Þorláksdóttir lgfs í síma 690 4966 eða matthildur@fstorg.is
Forsendur söluyfirlits:
Söluyfirlit er samið af fasteignasala í samræmi við ákvæði laga nr. 70/2015. Þær upplýsingar sem fram koma í söluyfirliti þessu eru sóttar í opinberar skrár, til seljanda sjálfs og eftir atvikum til húsfélags. Seljandi veitir upplýsingar um eign í samræmi við upplýsingaskyldu laga um fasteignakaup nr. 40/2002. Fasteignasali sannreynir að þær upplýsingar séu réttar með sjónskoðun á eigninni. Fasteignasali getur ekki fullyrt um ástand og eiginleika þeirra hluta fasteigna sem ekki eru aðgengilegir og sjást ekki berum augum, t.d. lagnir, dren, skólp og þak.
Ár
Fasteignamat
Kaupverð
Stærð
Fermetraverð
21. jan. 2022
60.250.000 kr.
77.100.000 kr.
84.5 m²
912.426 kr.
Byggt á upplýsingum úr Þjóðskrá Íslands frá 2006-2026