Upplýsingar
Byggt 2025
95,4 m²
3 herb.
1 baðherb.
2 svefnh.
Sameiginl. inngangur
Bílastæði
Lyfta
Lýsing
Hraunhamar fasteignasala kynnir með stolti glæsilegar nýjar lúxusíbúðir á besta stað í miðbæ Hafnarfjarðar. Frágangur íbúða er einstaklega vandaður og hugsað út í öll smáatriði. Frábært útsýni er úr flestum íbúðum og með öllum íbúðum fylgja svalir og/eða rúmgóðar þaksvalir.
Bókið einkaskoðun - Sýnum samdægurs.
Helgi s. 893-2233, Hlynur s. 698-2603, Glódís s. 659-0510, Einar s. 888-7979. Eða sendið tölvupóst á sala@hraunhamar.is
- Einstakt útsýni
- Frábær staðsetning.
- Þaksvalir
- Stórir gólfsíðir gluggar
- Loftskiptakerfi.
- Hljóðdúkur í lofti.
- Innfelld lýsing.
- Gólfhiti
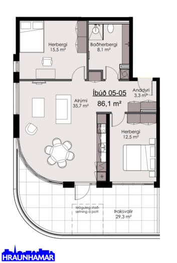
Íbúð 505 er þriggja herbergja íbúð á 5. hæð, skráð 95,4fm þar af er 9,3 fm geymsla. 29,3 fm þaksvalir fylgja eigninni.
Sjá heimasíðu verkefnisins hér.
Lýsing eignar skv. teikningu:
Forstofa með fataskáp.
Eldhús og borðstofa í björtu opnu rými. Útgengt þaðan út á 29 fm þaksvalir.
Eldhús með smekklegri innréttingu frá Voke III, vönduð eldunartæki og steinn á borðum.
Tvö rúmgóð svefnherbergi með fataskápum,
Flísalagt baðherbergi með innréttingu, upphengdu salerni og walk-in sturta með innbyggðum blöndunartækjum. Tengi fyrir þvottavél og þurrkara á baðherbergi.
Geymsla í sameign.
Sérbílastæði í lokuðu bílastæðahúsi.
Íbúðirnar eru sérlega vel innréttaðar með innréttingum frá Voke III og vönduðum eldunartækjum. Innbyggður ísskápur og uppþvottavél fylgja.
Vínyl parket frá Parka á alrými, herbergjum og flísar í votrýmum. Gólfhiti.
Hægt er að kaupa bílastæði á 10 milljónir króna.
Húsið er á besta stað í miðbæ Hafnarfjarðar, í nærumhverfinu er öll helsta þjónusta.
Í nýja Firði verður m.a. nýtt glæsilegt bókasafn Hafnfirðinga, spennandi verslanir, kaffihús og veitingastaðir.
Sjá skilalýsingu íbúða hér.
Byggingaraðili er GG verk.
Bókið skoðun hjá sölumönnum Hraunhamars:
Glódís Helgadóttir, löggiltur fasteignasali, s. 659-0510, glodis@hraunhamar.is
Hlynur Halldórsson, löggiltur fasteignasali, s. 698-2603, hlynur@hraunhamar.is
Helgi Jón Harðarson, sölust. s. 893-2233, helgi@hraunhamar.is
Einar Örn Ágústsson, löggiltur fasteignasali í s. 888-7979, einar@hraunhamar.is
Gjöld sem kaupandi þarf að standa straum af vegna kaupanna:
1. Stimpilgjald af kaupsamningi, fyrstu kaup (0,4%), almenn kaup (0,8%), lögaðilar (1,6%) af heildarfasteignamati.
2. Þinglýsingargjald af kaupsamningi, veðskuldabréfi, mögulegu veðleyfi o.fl. – 3,800 kr. af hverju skjali.
3. Lántökugjald lánastofnunar er skv. verðskrá viðkomandi lánastofnunar.
4. Umsýslugjald til fasteignasölu skv. þjónustusamningi
Hraunhamar er elsta fasteignasala Hafnarfjarðar, stofnuð 1983.
Hraunhamar, í fararbroddi í rúm 40 ár – Hraunhamar.is
Smelltu hér til að fá frítt söluverðmat.
Bókið einkaskoðun - Sýnum samdægurs.
Helgi s. 893-2233, Hlynur s. 698-2603, Glódís s. 659-0510, Einar s. 888-7979. Eða sendið tölvupóst á sala@hraunhamar.is
- Einstakt útsýni
- Frábær staðsetning.
- Þaksvalir
- Stórir gólfsíðir gluggar
- Loftskiptakerfi.
- Hljóðdúkur í lofti.
- Innfelld lýsing.
- Gólfhiti
Íbúð 505 er þriggja herbergja íbúð á 5. hæð, skráð 95,4fm þar af er 9,3 fm geymsla. 29,3 fm þaksvalir fylgja eigninni.
Sjá heimasíðu verkefnisins hér.
Lýsing eignar skv. teikningu:
Forstofa með fataskáp.
Eldhús og borðstofa í björtu opnu rými. Útgengt þaðan út á 29 fm þaksvalir.
Eldhús með smekklegri innréttingu frá Voke III, vönduð eldunartæki og steinn á borðum.
Tvö rúmgóð svefnherbergi með fataskápum,
Flísalagt baðherbergi með innréttingu, upphengdu salerni og walk-in sturta með innbyggðum blöndunartækjum. Tengi fyrir þvottavél og þurrkara á baðherbergi.
Geymsla í sameign.
Sérbílastæði í lokuðu bílastæðahúsi.
Íbúðirnar eru sérlega vel innréttaðar með innréttingum frá Voke III og vönduðum eldunartækjum. Innbyggður ísskápur og uppþvottavél fylgja.
Vínyl parket frá Parka á alrými, herbergjum og flísar í votrýmum. Gólfhiti.
Hægt er að kaupa bílastæði á 10 milljónir króna.
Húsið er á besta stað í miðbæ Hafnarfjarðar, í nærumhverfinu er öll helsta þjónusta.
Í nýja Firði verður m.a. nýtt glæsilegt bókasafn Hafnfirðinga, spennandi verslanir, kaffihús og veitingastaðir.
Sjá skilalýsingu íbúða hér.
Byggingaraðili er GG verk.
Bókið skoðun hjá sölumönnum Hraunhamars:
Glódís Helgadóttir, löggiltur fasteignasali, s. 659-0510, glodis@hraunhamar.is
Hlynur Halldórsson, löggiltur fasteignasali, s. 698-2603, hlynur@hraunhamar.is
Helgi Jón Harðarson, sölust. s. 893-2233, helgi@hraunhamar.is
Einar Örn Ágústsson, löggiltur fasteignasali í s. 888-7979, einar@hraunhamar.is
Gjöld sem kaupandi þarf að standa straum af vegna kaupanna:
1. Stimpilgjald af kaupsamningi, fyrstu kaup (0,4%), almenn kaup (0,8%), lögaðilar (1,6%) af heildarfasteignamati.
2. Þinglýsingargjald af kaupsamningi, veðskuldabréfi, mögulegu veðleyfi o.fl. – 3,800 kr. af hverju skjali.
3. Lántökugjald lánastofnunar er skv. verðskrá viðkomandi lánastofnunar.
4. Umsýslugjald til fasteignasölu skv. þjónustusamningi
Hraunhamar er elsta fasteignasala Hafnarfjarðar, stofnuð 1983.
Hraunhamar, í fararbroddi í rúm 40 ár – Hraunhamar.is
Smelltu hér til að fá frítt söluverðmat.